3 pokoje - blisko do centrum

Warszawa, Włochy, ul. Krańcowa

853 000 zł

14 453 zł/m2

TYLKO U NAS

Mieszkanie na sprzedaż - 59,02 m2, 3 pokoje

Powierzchnia:
59,02 m2
Liczba pokoi:
3 pokoje
Piętro:
1 / 7
Czynsz:
700,00 zł
Typ mieszkania:
Rozkładowe
Stan wykończenia:
Bardzo dobry
Ogrzewanie:
CO miejskie
Rynek:
wtórny
Dostępne od:
01-12-2025
Powierzchnie dodatkowe:
  • balkon klasyczny
Udogodnienia:
  • winda
  • klimatyzacja
Parking:
  • podziemny 2x 44 000 zł
Numer oferty:
63448/MS/MAX

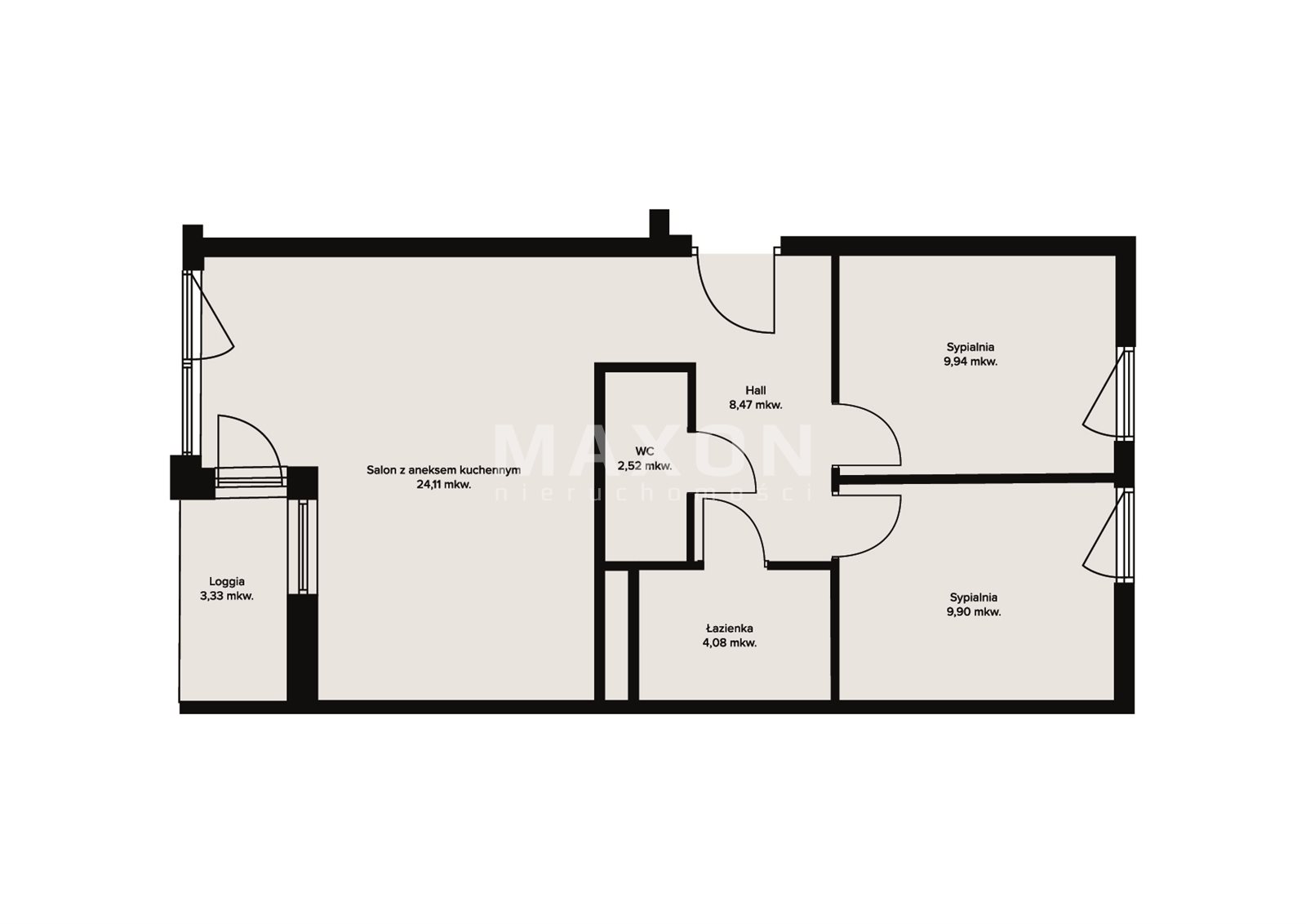
Pomieszczenia

Wysokość:
270 cm
Powierzchnia salonu:
24,00 m2
Rodzaj kuchni:
Aneks
Liczba łazienek:
1
Liczba toalet:
0
Garderoba:
Nie

Budynek

Rodzaj budynku:
Blok
Rok budowy:
2013
Stan budynku:
Bardzo dobry
Materiał konstrukcyjny:
Mieszany
Bezpieczeństwo:
  • domofon
Udogodnienia:
  • siłownia
  • plac zabaw
  • concierge

Opis

Przestronne trzypokojowe mieszkanie z balkonem - Warszawa Włochy, ul Krańcowa.

Dwa miejsca postojowe w garażu podziemnym.  Zakup miejsc nie jest obligatoryjny.

Możliwe jest zakupienie tylko 1 miejsca postojowego.

SZCZEGÓŁY:

  • powierzchnia 59 mkw + balkon,
  • pokój dzienny 24 mkw, z wyjściem na balkon,
  • dwie oddzielne sypialnie (po 10 mkw każda),
  • aneks kuchenny,
  • łazienka z kabiną prysznicową i wc, 
  • 2 miejsca postojowe na parkingu podziemnym

Mieszkanie zostało odświeżone i jest gotowe do zamieszkania.

Aneks kuchenny aktualnie znajduje się w holu mieszkania. Projekt dewelopera przewidywał aneks w salonie (24 mkw.). Nie ma problemu z przywróceniem pierwotnego planu.

STAN PRAWNY: własność z Księgą Wieczystą, grunt uregulowany - możliwość kredytowania zakupu.

Dwa miejsca postojowe w garażu podziemnym w cenie 80 000 zł. 

Zapraszam na prezentację.


Budynek

Nowoczesny budynek na terenie nowego osiedla. 

Osiedle budynków jest ogrodzone i monitorowane.

Lokalizacja

Bardzo dobra lokalizacja! Blisko do komunikacji miejskiej; 3 minuty pieszo do pętli autobusowej.

OKOLICA:
Fort Włochy stanowi klimatyczny teren rekreacyjny (place zabaw, boiska, miejsca do biegania).
WKD Raków oraz PKP Włochy
ODLEGŁOŚCI:
Fort Włochy- 250m
przystanek autobusowy - 100 m
CH Reduta- 1 km
CH Blue City- 1,2 km
SuperSam- 250 m
Biedronka - 450 m
Makro- 1 km
Castorama- 600 m
Przychodnia: Centrum Medyczne Zdrowia - 450 m szkoła podstawowa i boiska sportowe - 150 m apteka - 400 m
przedszkole- 600 m
szkoła podstawowa- 350 m
włoska restauracja - 320 m
Rossmann - 300 m

Lokalizacja nieruchomości na mapie może być przybliżona

Plan

Zapraszamy do kontaktu

Ewa Hołopiak

Ekspert ds. Nieruchomości

Zadzwoń:

Zainteresowała Cię nasza oferta lub szukasz podobnej nieruchomości? Zapraszamy do kontaktu!



Oferty w pobliżu

5-pokojowe mieszkanie na Osiedlu Floryda.
Warszawa, Ochota , al. Aleje Jerozolimskie
2 116 290 zł

15 900 zł/m2

133 m2

5 pokoi

Super lokalizacja bez PCC nowoczesne
Warszawa, Wola , al. Aleje Jerozolimskie
820 000 zł

22 466 zł/m2

37 m2

2 pokoje

Tylko u nas
2 POKOJE BALKON GARAŻ CISZA
Warszawa, Włochy , Batalionu AK "Włochy"
679 000 zł

15 976 zł/m2

43 m2

2 pokoje

0%
3 POKOJE 57,78 mkw. PIERWSZE PIĘTRO M6
Warszawa, Włochy , ul. Tumska
1 253 826 zł

21 700 zł/m2

58 m2

3 pokoje

0%
2 POKOJE KOMPAKTOWE PIERWSZE PIĘTRO M5
Warszawa, Włochy , ul. Tumska
1 071 329 zł

21 700 zł/m2

49 m2

2 pokoje

1/17