2 poziomy - ogródek - las - poddasze

Warszawa, Wawer, ul.Wiązana

1 090 227 zł

13 066 zł/m2

0% PROWIZJI

Mieszkanie na sprzedaż - 83,44 m2, 4 pokoje

Powierzchnia:
83,44 m2
Liczba pokoi:
4 pokoje
Piętro:
0 / 1
Czynsz:
0,00 zł
Typ mieszkania:
Mieszkanie
Stan wykończenia:
Deweloperski
Ogrzewanie:
Gazowe
Rynek:
pierwotny
Dostępne od:
31-10-2026
Powierzchnie dodatkowe:
  • balkon klasyczny
  • taras 5,41 m2
  • ogród 46,20 m2
Udogodnienia:
Parking:
  • naziemny 2x 0 zł
Numer oferty:
63706/MS/MAX

Pomieszczenia

Wysokość:
280 cm
Powierzchnia salonu:
35,42 m2
Rodzaj kuchni:
Aneks
Liczba łazienek:
2
Liczba toalet:
1
Garderoba:
Tak

Budynek

Rodzaj budynku:
Apartamentowiec
Rok budowy:
2026
Stan budynku:
W budowie
Materiał konstrukcyjny:
Mieszany
Bezpieczeństwo:
  • domofon
  • ogrodzony teren
Udogodnienia:

Opis

PROMOCJA !!!

Nowoczesny lokal mieszkalny w zabudowie bliźniaczej – Wawer

0% od Kupującego!
Prosty, ponadczasowy design, prywatne ogródki, duże przeszklenia i funkcjonalne wnętrza – to przestrzeń, w której chce się żyć. Poniższa inwestycja to nowoczesny kompleks 32 segmentów o powierzchni od 78 do 111 m², zaprojektowanych z myślą o wygodzie rodzin i bliskości natury.

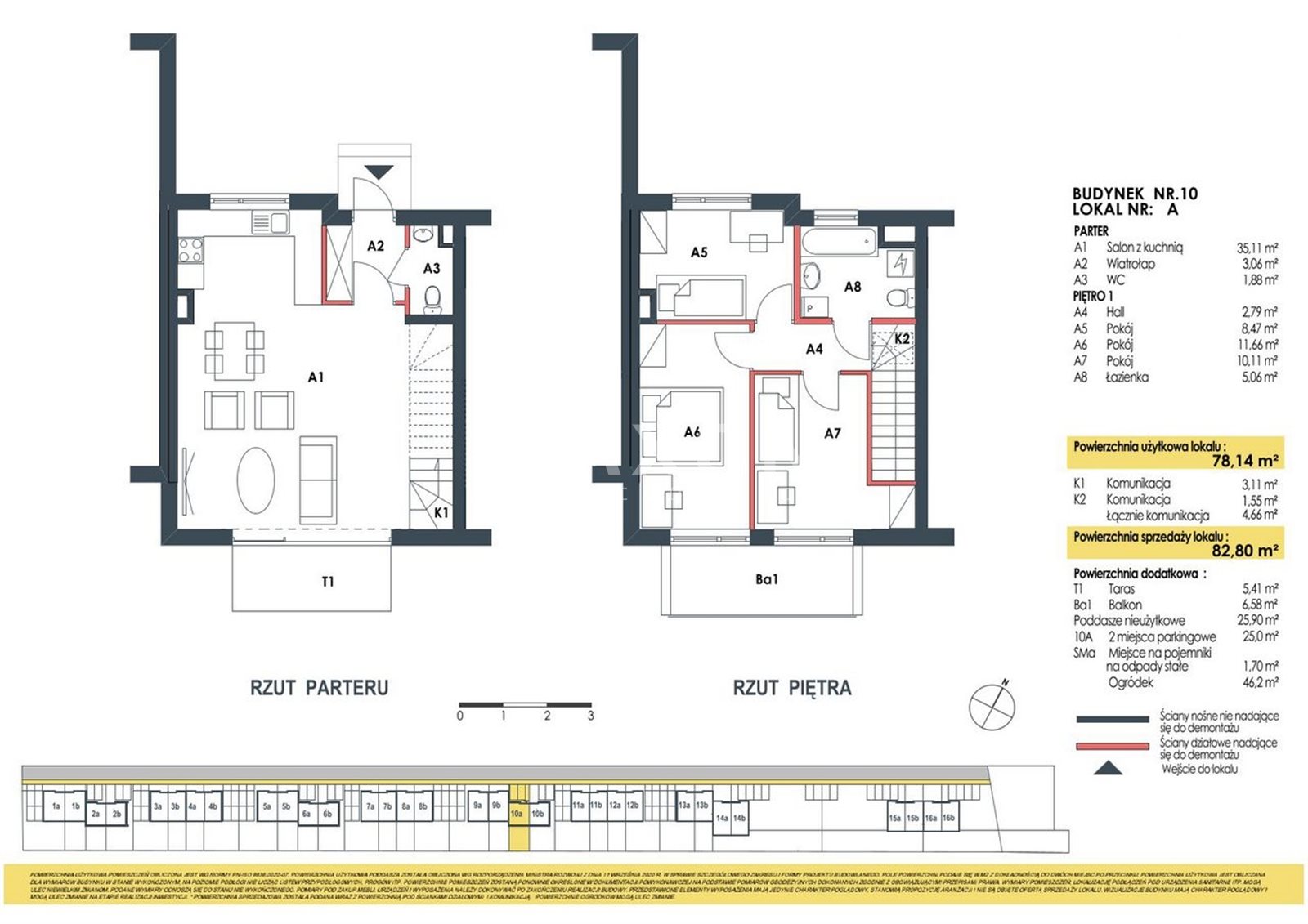
Plan mieszkania:

1. Parter

  • salon z kuchnią 35,42 mkw.
  • wiatrołap 3,08 mkw.
  • WC 1,88 mkw.
  • taras 5,41 mkw.
  • ogródek 46,2 mkw. od strony południowej

2. Piętro

  • 3 pokoje (8,54 mkw., 10,11 mkw., 11,66 mkw.)
  • łazienka 5,32 mkw.
  • hol 2,79 mkw.
  • balkon 6,58 mkw.

3. Poddasze nieużytkowe o powierzchni 25,9 mkw.

Atuty Inwestycji:

  • duże poddasze
  • dwa rodzaje ogrzewania - bezpieczeństwo energetyczne (piec gazowy, pompa ciepła)
  • dwa balkony i taras
  • 2 miejsca postojowe gratis
  • media - prąd, gaz, woda, kanalizacja miejska
  • przestronne ogrody
  • wysokie pomieszczenia 2,8 m
  • panoramiczne okna
  • ładowarka EV (za dopłatą)
  • 20 minut do centrum Warszawy
  • bliskość szkół, przedszkoli, placów zabaw oraz lasu wraz z Parkiem Aktywności Rodzinnej w Wawrze
  • komunikacja miejska 300 m
  • w najbliższej okolicy wszelkie sklepy i usługi
  • rozpoczęcie budowy wrzesień 2025 r., planowane oddanie to IV kwartał 2026 roku.

Zapraszam na spotkanie!


MAXON Nieruchomości jest zewnętrznym biurem sprzedaży dewelopera. Ceny oferowanych nieruchomości są identyczne z cenami jakie oferuje developer. Nasi agenci pomogą wybrać ofertę dopasowaną do Państwa potrzeb i przeprowadzą przez cały proces zakupu nieruchomości. Nie ponosisz żadnych kosztów, możesz tylko zyskać!

Lokalizacja

Lokalizacja nieruchomości na mapie może być przybliżona

Plan

Zapraszamy do kontaktu

Oliwia Szymanek

Specjalista ds. Nieruchomości

Zadzwoń:

Zainteresowała Cię nasza oferta lub szukasz podobnej nieruchomości? Zapraszamy do kontaktu!



Oferty w pobliżu

0%
5 pokoi - poddasz - ogródek - las
Warszawa, Wawer , ul.Wiązana
1 407 091 zł

12 111 zł/m2

116 m2

5 pokoi

0%
4 pokoje - ogródek - poddasze
Warszawa, Wawer , ul.Wiązana
1 213 836 zł

12 550 zł/m2

97 m2

4 pokoje

0%
3 pokoje | 54,75 m² | Balkon 7,80 m² | Wawer
Warszawa, Wawer , ul. Zwoleńska
782 925 zł

14 300 zł/m2

55 m2

3 pokoje

0%
Marysin Wawerski stacja PKP Gocławek 0%
Warszawa, Wawer , ul. Goździków
731 627 zł

16 700 zł/m2

44 m2

2 pokoje

0%
Marysin Wawerski stacja PKP Gocławek 0%
Warszawa, Wawer , ul. Goździków
774 379 zł

16 700 zł/m2

46 m2

2 pokoje

1/10