Śródmieście, kawalerka, po generalnym remoncie

Warszawa, Śródmieście, ul. Ciasna

650 000 zł

28 261 zł/m2

0% PROWIZJI

Mieszkanie na sprzedaż - 23,00 m2, 1 pokój

Powierzchnia:
23,00 m2
Liczba pokoi:
1 pokój
Piętro:
2 / 4
Czynsz:
b.d.
Typ mieszkania:
Mieszkanie
Stan wykończenia:
Bardzo dobry
Ogrzewanie:
CO miejskie
Rynek:
wtórny
Dostępne od:
07-10-2025
Powierzchnie dodatkowe:
  • piwnica
Udogodnienia:
Numer oferty:
63181/MS/MAX

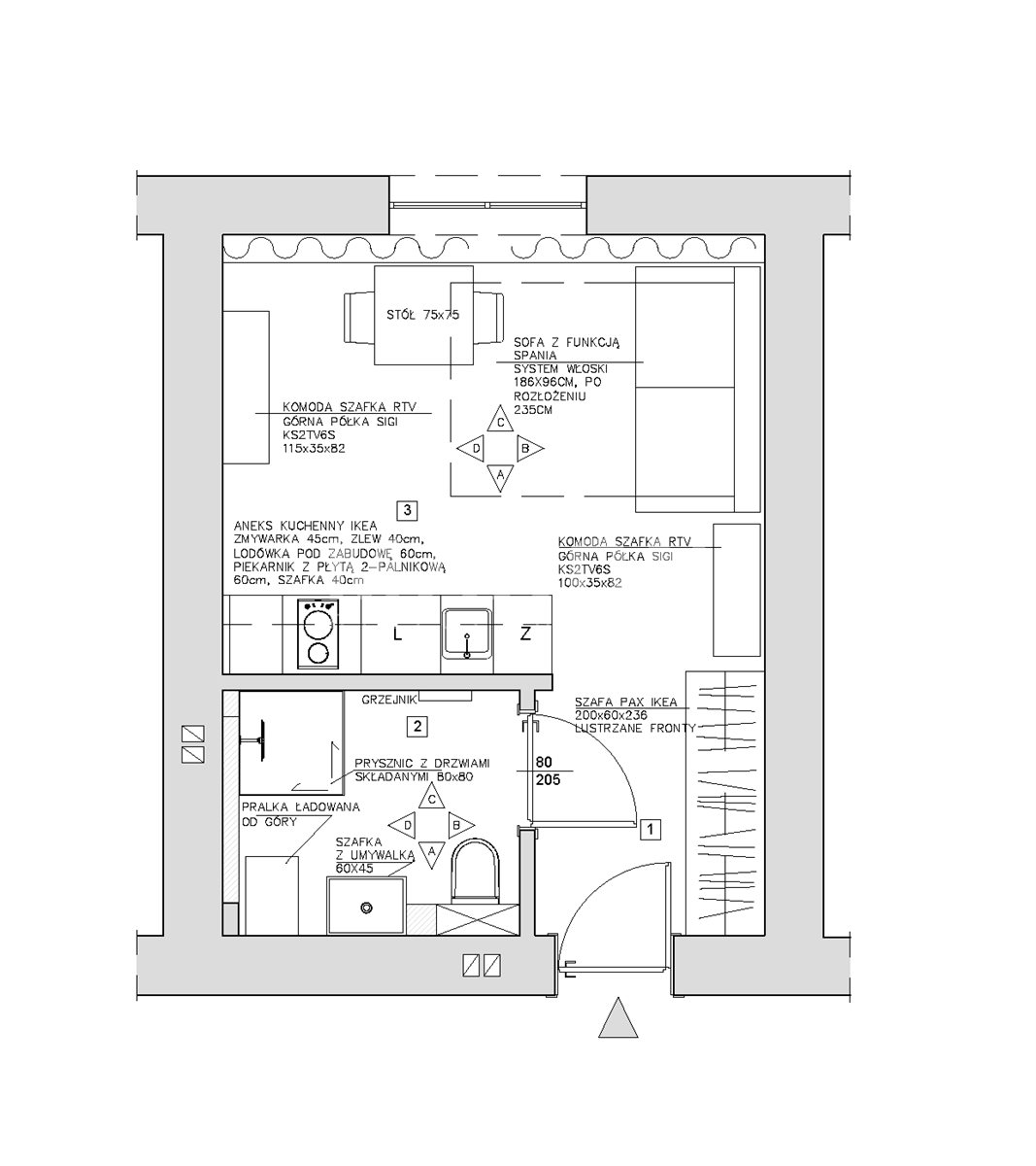
Pomieszczenia

Wysokość:
250 cm
Powierzchnia salonu:
12,00 m2
Rodzaj kuchni:
Aneks
Liczba łazienek:
1
Liczba toalet:
0
Garderoba:
Nie

Budynek

Rodzaj budynku:
Blok
Rok budowy:
1956
Stan budynku:
Bardzo dobry
Materiał konstrukcyjny:
Cegła
Bezpieczeństwo:
  • domofon
  • dzwi / okna antywłamaniowe
Udogodnienia:

Opis

NOWA kawalerka po generalnym remoncie – Warszawa Śródmieście, ul. Ciasna 

📍 Lokalizacja: Warszawa, Śródmieście
🏷 Cena: 650 000 zł
📐 Powierzchnia: 23 m²
🛏 Liczba pokoi: 1
🏢 Piętro: 2 z 4
🚿 Łazienka: 1
🔑 Stan prawny: Własność
✨ Nowe mieszkanie w zabytkowej kamienicy – gotowe do zamieszkania!

Na sprzedaż piękna, kompaktowa kawalerka po generalnym remoncie, położona przy ul. Ciasnej, w samym sercu Warszawy – tuż obok Starego Miasta. Mieszkanie jeszcze nie było zamieszkane, wszystko jest nowe, świeżo wykończone, a w ramach prac wymieniono wszystkie instalacje: elektryczną, wodno-kanalizacyjną oraz grzewczą.

To idealna oferta dla osób ceniących wysoki standard i doskonałą lokalizację lub dla inwestora szukającego nieruchomości pod wynajem.
🛋 Wnętrze i wyposażenie:

  • Pokój dzienny z aneksem kuchennym (12 m²)
  • Nowoczesna łazienka z prysznicem
  • Wysokość pomieszczeń: 250 cm
  • Okna PCV

 

Kuchnia wyposażona w nowe sprzęty:

  • Kuchenka elektryczna
  • Piekarnik
  • Lodówka
  • Zamrażarka
  • Zmywarka
  • Zlewozmywak
  • Nowe meble, w tym zabudowa kuchenna

Łazienka:

  • Prysznic
  • Umywalka
  • WC
  • Grzejnik drabinkowy

🏢 Budynek:
Kamienica z 1956 r. z cegły
Budynek w bardzo dobrym stanie technicznym

piętro 1 z 4 (brak windy)
Domofon, monitoring, teren ogrodzony
Drzwi antywłamaniowe
🌇 Lokalizacja – prestiż i wygoda:

Znakomita lokalizacja w sercu Warszawy – kilka kroków od:

  • Starego Miasta
  • Ogrodu Krasińskich
  • Placu Bankowego
  • Bulwarów Wiślanych

W pobliżu:
Bank, basen, hala sportowa, kort tenisowy, restauracje, szkoła, przedszkole, kościół

Komunikacja: autobus, metro, tramwaje – wszystko w zasięgu ręki!
💼 Dlaczego warto?
✅ Po generalnym remoncie – wszystko NOWE
✅ Wymienione wszystkie instalacje
✅ Gotowe do wprowadzenia lub natychmiastowego wynajmu
✅ Prestiżowa lokalizacja
✅ Świetna inwestycja – wysokie ROI w tej okolicy

Zapraszam serdecznie na prezentację

Lokalizacja

Lokalizacja nieruchomości na mapie może być przybliżona

Plan

Zapraszamy do kontaktu

Agnieszka Piotrowska

Dyrektor Działu Sprzedaży Centrum

Zadzwoń:

Zainteresowała Cię nasza oferta lub szukasz podobnej nieruchomości? Zapraszamy do kontaktu!



Oferty w pobliżu

Tylko u nas
Krok od Starówki - jasne mieszaknie z potencjałem
Warszawa, Śródmieście , ul. Świętojerska
890 000 zł

25 948 zł/m2

34 m2

2 pokoje

Tylko u nas
PENTHOUSE 176,2 MKW. PRZEPIĘKNY WIDOK NA WARSZAWĘ
Warszawa, Śródmieście , ul. Zygmunta Słomińskiego
3 450 000 zł

19 580 zł/m2

176 m2

3 pokoje

Tylko u nas
REZERWACJA
Warszawa, Śródmieście , ul. Grzybowska
800 000 zł

16 642 zł/m2

48 m2

3 pokoje

Tylko u nas
Genialna lokalizacja i inwestycja !!!
Warszawa, Śródmieście , ul. Marszałkowska
699 000 zł

29 707 zł/m2

24 m2

1 pokój

Tylko u nas
4 POKOJOWY APARTAMENT NA JANA PAWŁA II 61
Warszawa, Wola , al. Aleja Jana Pawła II
2 999 999 zł

19 881 zł/m2

151 m2

4 pokoje

1/10