duży ogród PKP 15 min 0 prowizji

mazowieckie, otwocki, Józefów, ul. Sienkiewicza

1 799 000 zł

8 567 zł/m2

TYLKO U NAS 0% PROWIZJI

Dom na sprzedaż - 210,00 m2, 5 pokoi

Powierzchnia:
210,00 m2
Liczba pokoi:
5 pokoi
Rodzaj zabudowy:
Bliźniak
Stan wykończenia:
Stan deweloperski
Rynek:
pierwotny
Udogodnienia:
Numer oferty:
13191/DS/MAX

Pomieszczenia

Powierzchnia salonu:
38,00 m2
Rodzaj kuchni:
Aneks
Powierzchnia kuchni:
17,00 m2
Liczba łazienek:
3
Liczba toalet:
1
Garderoba:
Tak
Komórka:
Nie

Budynek

Rok budowy:
2025
Liczba kondygnacji:
2
Materiał konstrukcyjny:
Cegła
Ogrzewanie:
gazowe
Dach:
Dachówka betonowa
Rodzaj okien:
pcv
Wpis do rejestru zabytków:
Nie
Bezpieczeństwo:
  • alarm
  • domofon
Powierzchnie dodatkowe:
  • balkon klasyczny
  • taras 6,00 m2

Działka i otoczenie

Powierzchnia działki:
398,00 m2
Kształt działki:
Prostokąt
Ogrodzenie:
Mieszane
Droga dojazdowa:
Asfaltowa
Media:
  • prąd: tak
  • gaz: tak
  • woda: Miejska
  • kanalizacja: Miejska

Opis

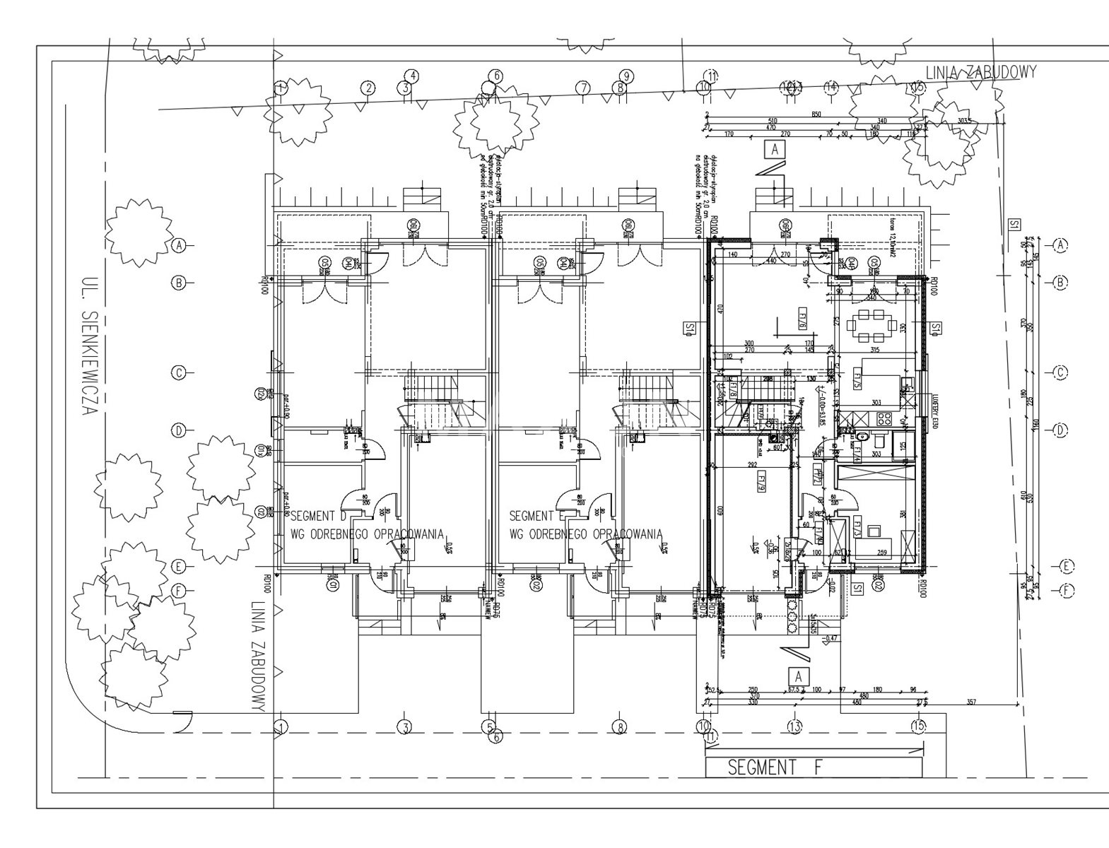
Na sprzedaż przestronny segment w zabudowie szeregowej z garażem, ogródkiem i tarasem, położony na kameralnym osiedlu 6 domów jednorodzinnych. 
To idealne miejsce dla rodzin szukających wysokiej jakości życia w spokojnej, zielonej okolicy z doskonałym dojazdem do Warszawy. Zaledwie kilkanaście minut do granic Warszawy, w sąsiedztwie lasów, szkół, sklepów i komunikacji miejskiej.
Cicha, bezpieczna ulica z pełną infrastrukturą miejską.
✅ Idealna lokalizacja – cisza, zieleń, a jednocześnie szybki dojazd do Warszawy
✅ Przemyślany układ funkcjonalny – idealny dla rodziny
✅ Wysoki standard techniczny i estetyczny
✅ Własny ogród i dwa miejsca wypoczynku (taras + balkon)
✅ Wszystkie media miejskie
🔹 ROZKŁAD POMIESZCZEŃ:
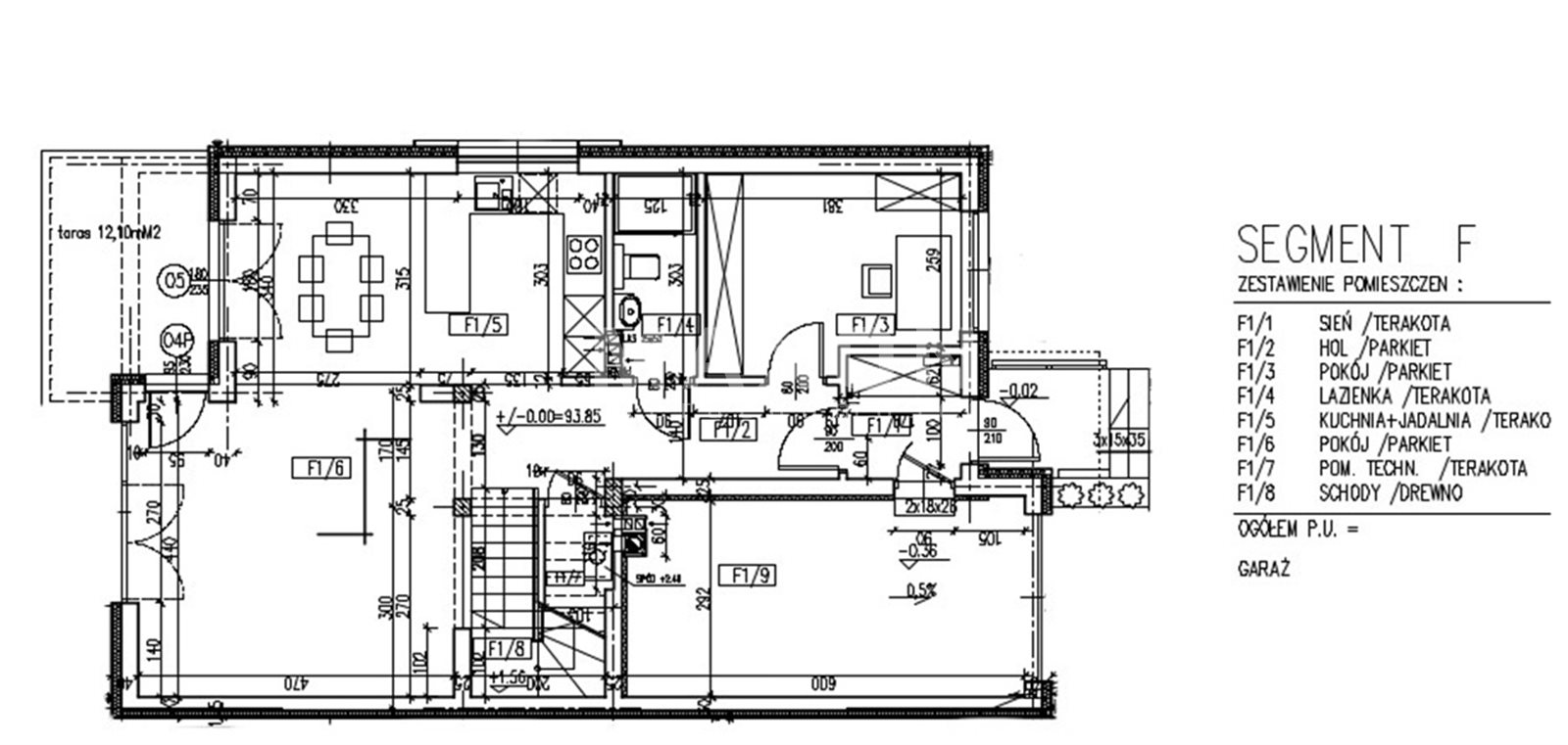
Parter (86,58 m²):
Salon przestronny i jasny 20,82 mkw, z wyjściem na taras
Kuchnia z jadalnią 17 mkw
Gabinet/pokój gościnny 10,54 mkw
Łazienka
Hol, wiatrołap, kotłownia
Garaż w bryle budynku
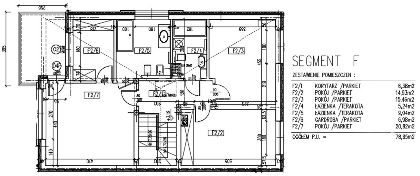
Piętro (78,85 m²):
1 sypialnie 20,82 mkw z łazienką 9 mkw, garderobą 6,98 mkw i balkonem
2 sypialnie (14,93 i 15,46 mkw)
Łazienka 5,24 mk


STANDARD WYKOŃCZENIA:
Budynek wykończony jest w wysokim standardzie z myślą o ekonomicznym i komfortowym użytkowaniu.
Dom wybudowany z pustaka ceramicznego Porotherm, ocieplony styropianem 20 cm.
Ogrzewanie gazowe, podłogowe na całej powierzchni.
Stolarka okienna ze szkleniem trzyszybowym zapewnia wysoką izolacyjność cieplną jak i akustyczną.
Instalacja elektryczna i teletechniczna (światłowód oraz instalacja alarmowa i video).
Podjazdy i tarasy – kostka brukowa
W cenie domy Piec gazowy Viessmann z zasobnikiem.
Teren ogrodzony, brama wjazdowa na pilota
Segment sprzedawany jest stanie deweloperskim zamkniętym. Kupujący nie ponosi opłaty podatku PCC.

📐 METRAŻ:
Pow. całkowita: 205,5 m²
Pow. użytkowa: 165,43 m²
Działka: 398 m²
Garaż: 17,45 m²
Taras: 12,1 m²
Balkon: ok. 9 m²
💡 MEDIA:
Woda miejska
Prąd
Gaz
Kanalizacja miejska
🌳 DLACZEGO WARTO?
✅ Spokojna, zielona okolica
✅ Blisko komunikacji miejskiej, szkół, sklepów
✅ Kameralne, bezpieczne osiedle
✅ Wysoka jakość wykonania
✅ Funkcjonalny projekt domu
📞 Zadzwoń i umów się na prezentację!
To miejsce może stać się Twoim nowym, komfortowym domem.

📞 Zadzwoń, umów się na prezentację i przekonaj się, że takie miejsca naprawdę istnieją!

Lokalizacja

Lokalizacja nieruchomości na mapie może być przybliżona

Plan

Zapraszamy do kontaktu

Anna Skrzywan

Ekspert ds. Nieruchomości

Zadzwoń:

Zainteresowała Cię nasza oferta lub szukasz podobnej nieruchomości? Zapraszamy do kontaktu!



Oferty w pobliżu

Tylko u nas
dom pokoleniowy - SKM -las
Józefów , ul. Długa
2 690 000 zł

6 725 zł/m2

400 m2

7 pokoi

Tylko u nas
3 300 000 zł

9 429 zł/m2

350 m2

9 pokoi

Tylko u nas
Willa w stylu dworkowym Radość
Warszawa, Wawer , Izbicka
3 900 000 zł

9 322 zł/m2

418 m2

7 pokoi

0%
1 390 000 zł

8 445 zł/m2

165 m2

4 pokoje

0%
690 000 zł

7 378 zł/m2

94 m2

4 pokoje

1/28