Dom marzeń na zamkniętym osiedlu, blisko PKP

mazowieckie, legionowski, Legionowo

874 000 zł

10 415 zł/m2

0% PROWIZJI

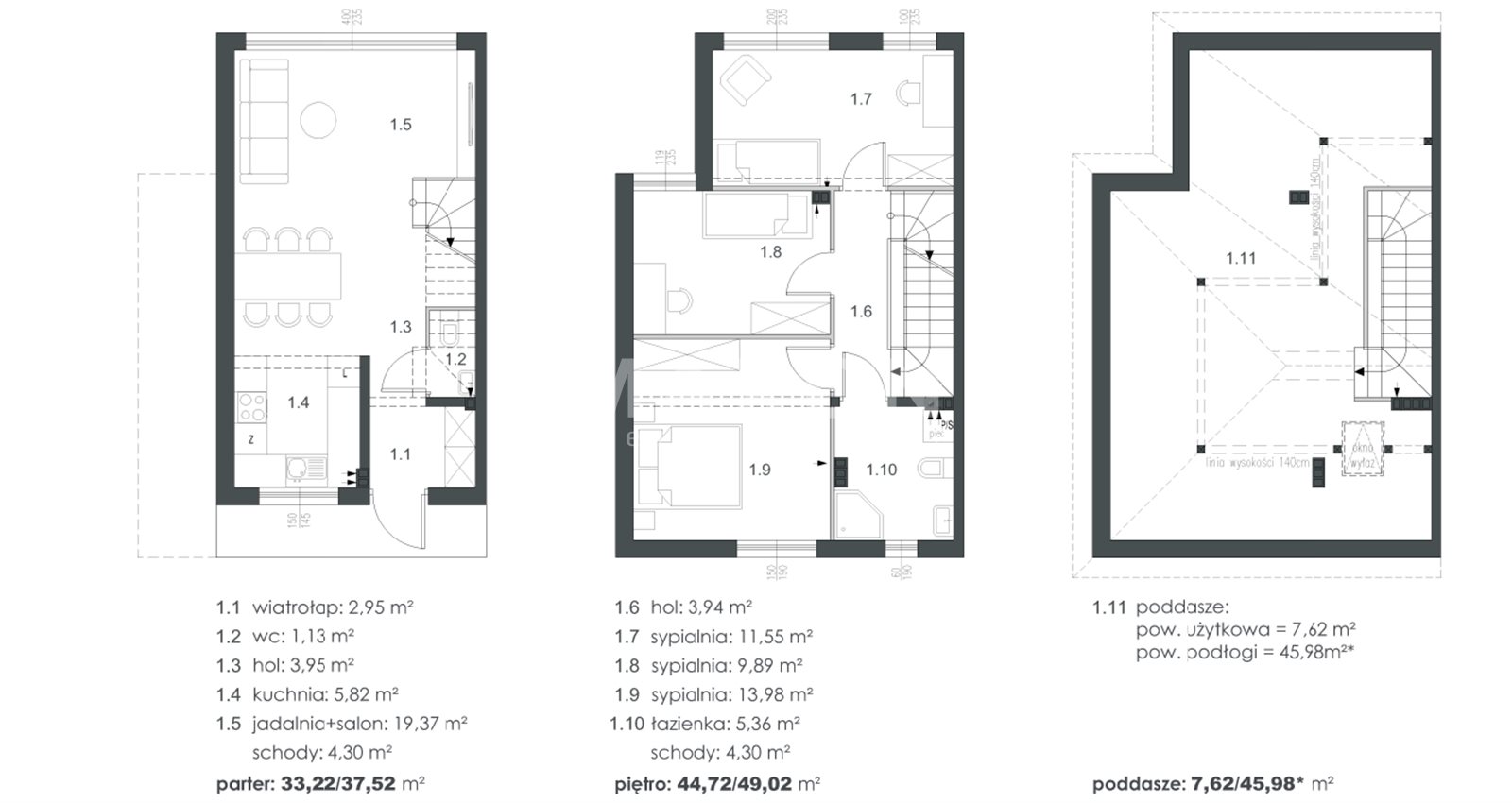
Dom na sprzedaż - 83,92 m2, 4 pokoje

Powierzchnia:
83,92 m2
Liczba pokoi:
4 pokoje
Rodzaj zabudowy:
Bliźniak
Stan wykończenia:
Stan deweloperski
Rynek:
wtórny
Udogodnienia:
Numer oferty:
13133/DS/MAX

Pomieszczenia

Powierzchnia salonu:
19,40 m2
Rodzaj kuchni:
Oddzielna
Powierzchnia kuchni:
5,80 m2
Liczba łazienek:
1
Liczba toalet:
1
Garderoba:
Nie
Komórka:
Nie

Budynek

Rok budowy:
2025
Liczba kondygnacji:
3
Materiał konstrukcyjny:
Beton Komórkowy
Ogrzewanie:
gazowe
Dach:
Dachówka betonowa
Rodzaj okien:
pcv
Wpis do rejestru zabytków:
Nie
Bezpieczeństwo:
  • domofon
Powierzchnie dodatkowe:
  • taras

Działka i otoczenie

Powierzchnia działki:
30,00 m2
Kształt działki:
Prostokąt
Ogrodzenie:
Mieszane
Droga dojazdowa:
Asfaltowa
Media:
  • prąd: tak
  • gaz: tak
  • woda: Miejska
  • kanalizacja: Miejska

Opis

  • dostępnych jest kilka budynków
  • kupujący nie płaci prowizji
  • brak podatku PCC

Oferujemy Państwu domy położone na kameralnym, zamkniętym osiedlu, przy cichej asfaltowej ulicy. Stad wszędzie jest blisko; do sklepów, szpitala, przedszkola, szkoły.

Zaledwie 15 minut do stacji PKP skąd szybko i wygodnie dojedziemy do centrum Warszawy. 3 minuty od nieruchomości znajduje się duży Państwowy las - idealne miejsce na piesze i rowerowe wycieczki. 

Inwestycja realizowana przez dewelopera z wieloletnim doświadczeniem.


Inwestycja:

- osiedle składa się z kilku budynków - każdy znajdzie dom dopasowany do swoich potrzeb 

- budowa już ruszyła - umówmy się na prezentację!

- zakończenie inwestycji planowane na pierwszą połowę 2027 roku

Wysoki standard: 

- w cenie piec gazowy z zasobnikiem, tynki, posadzki, instalacje, parapety wewnętrzne, kostka brukowa i ażurowa,

- ocieplone i otynkowane poddasze,

- możliwość aranżacji ścian działowych oraz rozprowadzenia instalacji "pod klienta",

- dedykowane miejsce postojowe,

- własny niewielki ogródek,

- teren ogrodzony, domofon, brama z siłownikiem.

Media: gaz, prąd, woda, kanalizacja, internet

Lokalizacja

Lokalizacja nieruchomości na mapie może być przybliżona

Plan

Zapraszamy do kontaktu

Marek Dawidowicz

Specjalista ds. Nieruchomości

Zadzwoń:

Zainteresowała Cię nasza oferta lub szukasz podobnej nieruchomości? Zapraszamy do kontaktu!



Oferty w pobliżu

1 599 000 zł

6 663 zł/m2

240 m2

6 pokoi

Tylko u nas
0%
REZERWACJA
Legionowo , ul. Grudzie
999 000 zł

5 533 zł/m2

181 m2

6 pokoi

Tylko u nas
0%
REZERWACJA
Legionowo , ul. Strużańska
999 000 zł

5 372 zł/m2

186 m2

5 pokoi

0%
840 000 zł

8 451 zł/m2

99 m2

4 pokoje

Tylko u nas
0%
GOTOWY DOM, pow.185m 6 pokoi OSTATNI
Legionowo , ul. Strużańska
999 000 zł

5 372 zł/m2

186 m2

6 pokoi

1/7