Lokal usługowy, biuro, parter. Główna ulica.

Warszawa, Wilanów, ul. Wiertnicza

22 600 zł

100 zł/m2

Powierzchnia biurowa na wynajem

Podstawowe

Powierzchnia
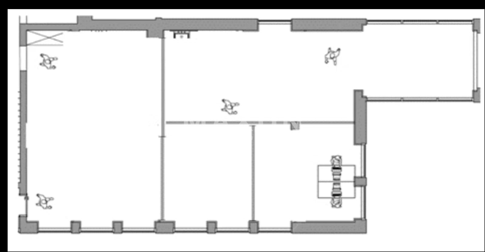
226,00 m2
Piętro
0
Numer oferty
25577/PBW/MAX

Warunki handlowe

Koszty eksploatacyjne m2
25,00
Czynsz m2
100,00 PLN
Min. okres najmu (lata)
2
Parking naziemny - miejsce
600 PLN
Parking podziemny - miejsce
800 PLN

Standard

Klimatyzacja
Wentylacja wymuszona
Otwierane okna
Podwieszane sufity
Podnoszone podłogi
Światłowód
Okablowanie komputer.
Okablowanie elektryczne
Okablowanie telefoniczne

Bezpieczeństwo

Recepcja
Monitoring
Czujniki dymu
Kontrola dostępu
Tryskacze
Alarm
Ochrona

Informacje o budynku

Rok budowy
2025
Pow. biurowa netto
850 m2
Pow. typowego piętra
400 m2
Kondygnacje naziemne
4
Kondygnacje podziemne
1
Winda
Współ. miejsc parking.
50,00

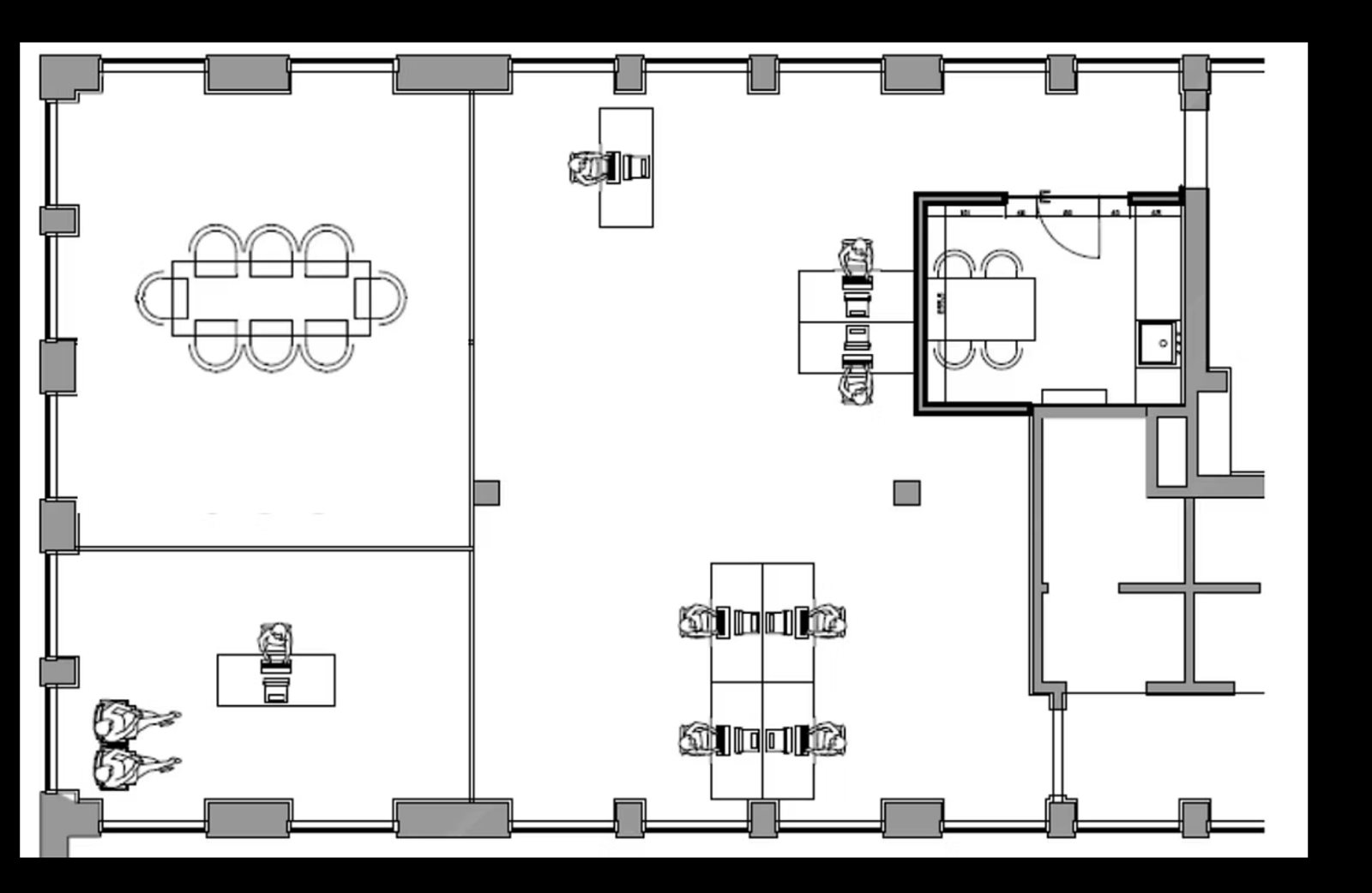
Opis

Idealnie wykończony lokal na parterze nowoczesnego, kameralnego biurowca.
Wilanów Królewski.

Wejście z witryny wychodzącej na ulicę Wiertniczą.

Lokal z wykuszem pełniącym rolę witryny i eleganckiego wejścia bezpośrednio z bramy wychodzącej na ulicę Wiertniczą - główną ulicą przelotową Starego Wilanowa. 

Lokal jest całkowicie nowy, prawie nieużywany, idealnie wykończony, bardzo wysoki standard materiałów i mebli 

  • zaprojektowany przez architekta wnętrz
  • nowoczesne systemy okablowania
  • alarm
  • idealnie wyposażony aneks kuchenny
  • toalety męska, damska i dla niepełnosprawnych
  • klimatyzacja
  • wentylacja
  • oprawa okien - rolety, zasłony
  • szafy, lustra, elementy ozdobne wykonane na wymiar
  • automatyka
  • dostęp do tarasu 14 mkw w części ogrodowej

Jest możliwość zatrzymania mebli widocznych na zdjęciach - do ustalenia.

Koszty najmu:

  • czynsz: 130 zł / 1 mkw
  • koszty eksploatacji: 25 zł / 1 mkw
  • taras: połowa opłat za lokal
  • koszt najmu modułu: ok. 36 148 zł miesięcznie
  • + energia elektryczna (na dachu fotowoltaika)
  • + VAT 23%

Budynek

Kameralny, bardzo nowoczesny budynek biurowy na Wilanowie Królewskim.

Zaprojektowany w postindustrialnym stylu z dbałością o każdy szczegół zarówno w kwestii estetyki, jak i wygody i technologii. 

Wnętrza są zaprojektowane przez architekta wnętrz, bardzo estetyczne i designerskie w stylu skandynawskim.
Dbałość o każdy szczegół: wszystkie elementy wykończeniowe projektowane i wykonane na wymiar.
Dużo dyskretnych i pomysłowych ozdób.

Budynek oferuje lokale biurowo-usługowo-handlowe na parterze oraz nowoczesne biura na piętrach.

Powierzchnia całkowita budynku: 1500 mkw, powierzchnia przestrzeni do indywidualnego wykorzystania dla najemców: 850 mkw.

Posiada wszelkie rozwiązania zapewniające komfort pracy i prestiż dla najemców.

  • klimatyzacja w każdym lokalu 
  • pełne okablowanie komputerowe i elektryczne
  • okna od podłogi do sufitu z możliwością otwierania
  • dużo przeszkleń we wnętrzu
  • wyposażone kuchnie i toalety
  • na wyższych piętrach możliwość indywidualnego ich urządzenia 
  • komfortowe tarasy przynależne do części lokali 
  • mnóstwo zieleni dookoła 
  • nowoczesna winda 
  • szerokie schody
  • przestrzeń recepcyjna

Dookoła budynku ogród oraz miejsca parkingowe.

14 miejsc parkingowych w garażu podziemnym o wygodnych wymiarach i bardzo przystępnym wjeździe.

Lokalizacja

Wspaniały, bardzo prestiżowy rejon Warszawy: Wilanów Królewski.

Główna trasa prowadząca do Południowej obwodnicy Warszawy 

Główna trasa prowadząca do Konstancina Jeziornej

W okolicy:

  • prywatne szkoły i przedszkola (bardzo wiele placówek)
  • domy mieszkalne bardzo dobrze sytuowanych mieszkańców
  • siedziba TVN
  • ambasady 

Komunikacja autobusowa 131 i 180 - popularne linie o gęstym rozkładzie.

Lokalizacja nieruchomości na mapie może być przybliżona

Plan

Zapraszamy do kontaktu

Magda Borys

Doradca ds. nieruchomości komercyjnych

Zadzwoń:

Zainteresowała Cię nasza oferta lub szukasz podobnej nieruchomości? Zapraszamy do kontaktu!



Oferty w pobliżu

Handel, usługi. Witryna, wejście z ulicy, parking.
Warszawa, Wilanów , ul. Wiertnicza
14 950 zł

130 zł/m2

115 m2

Biuro, lokal usługowy, parter. Główna ulica.
Warszawa, Wilanów , ul. Wiertnicza
14 430 zł

130 zł/m2

111 m2

Wysoka powierzchnia na biuro, studio fotograficzne
Warszawa, Wilanów , ul. Wiertnicza
14 640 zł

80 zł/m2

183 m2

Piekne, nowoczesne, wysokie biuro z tarasem 50 mkw
Warszawa, Wilanów , ul. Wiertnicza
8 250 zł

75 zł/m2

110 m2

0%
3 pokoje biurowe. Klimatyczne. Stary Wilanów
Warszawa, Wilanów , Królowej Marysieńki
9 288 zł

108 zł/m2

86 m2

1/20