3 pokoje biurowe. Klimatyczne. Stary Wilanów

Warszawa, Wilanów, Królowej Marysieńki

9 288 zł

108 zł/m2

0% PROWIZJI

Powierzchnia biurowa na wynajem

Podstawowe

Powierzchnia
86,00 m2
Piętro
3
Numer oferty
25675/PBW/MAX

Warunki handlowe

Czynsz m2
108,00 PLN
Min. okres najmu (lata)
2
Parking naziemny - miejsce
421 PLN

Standard

Klimatyzacja
Wentylacja wymuszona
Otwierane okna
Podwieszane sufity
Podnoszone podłogi
Światłowód
Okablowanie komputer.
Okablowanie elektryczne
Okablowanie telefoniczne

Bezpieczeństwo

Recepcja
Monitoring
Czujniki dymu
Kontrola dostępu
Tryskacze
Alarm
Ochrona

Informacje o budynku

Rok budowy
1999
Pow. biurowa netto
2 200 m2
Pow. typowego piętra
440 m2
Kondygnacje naziemne
4
Winda
Dostępne w budynku
brak, kiosk

Budynek

Rodzaj budynku
Biurowiec

Opis

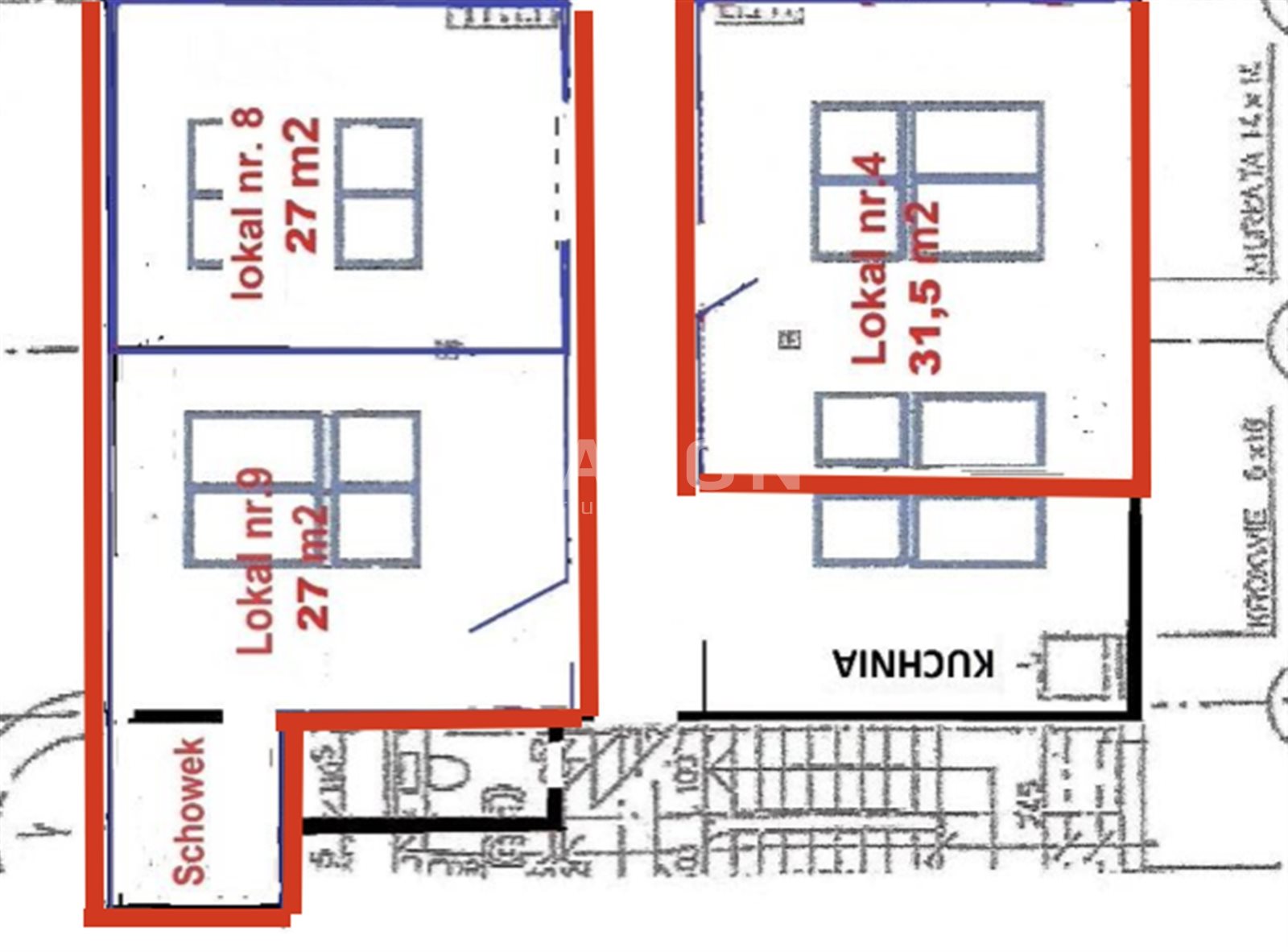
Moduł biurowy składający się z trzech niezależnych pokoi.

Biuro na 3 piętrze. Bardzo klimatyczne, ze skosami i oknami dachowymi.

Pokoje z wejściem ze wspólnego korytarza, z dostępem do toalet i kuchni stanowiących części wspólne dla najemców z piętra.

Przed wydaniem pomieszczeń nowemu najemcy biuro zostanie odświeżone, ściany będą pomalowane, a wykładzina wyprana lub wymieniona w zależności od potrzeb.

Koszty:

Czynsz za moduł: 9248,5 PLN miesięcznie. Czynsz zawiera koszty utrzymania budynku oraz udział w częściach wspólnych.

Dodatkowa opłata: ryczałt za energię elektryczną ok. 700 PLN (8,5 PLN / 1 mkw powierzchni netto)

Budynek

Kameralny budynek biurowy położony w centrum Wilanowa 

Oferuje 2200 m2 powierzchni biurowej, typowe piętro to powierzchnia 440 m2 a minimalny moduł biurowy to 18 mkw.

Standard budynku:

  • 24 godzinna ochrona
  • recepcja
  • klimatyzacja
  • światłowód i okablowanie
  • monitoring
  • winda
  • podwójne niezależne zasilanie elektryczne
  • wytrzymałość stropów 1000 kg/mkw
  • miejsca parkingowe przed budynkiem
  • podwójne niezależne zasilanie elektryczne
  • wytrzymałość stropów 1000 kg/mkw 

Każde z pięter ma dwie toalety i kuchnię dostępne dla najemców z danego piętra.

Dla najemców powierzchni w budynku dostępny jest taras otoczony tujami.

Możliwość wynajęcia sali konferencyjnej w cenie 70 PLN/h + VAT (dla najemców budynku)
Miejsca parkingowe w cenie 421 PLN/m-ce + VAT.


Lokalizacja

Stary Wilanów. Piękna, spokojna okolica.

  • 1 km od Pałacu i Parku Wilanowskiego
  • 8 km od Śródmieścia, lotniska Chopina, Dworca Centralnego
  • Komunikacja autobusowa.
  • Doskonały dojazd do S2.
Lokalizacja nieruchomości na mapie może być przybliżona

Zapraszamy do kontaktu

Magda Borys

Doradca ds. nieruchomości komercyjnych

Zadzwoń:

Zainteresowała Cię nasza oferta lub szukasz podobnej nieruchomości? Zapraszamy do kontaktu!



Oferty w pobliżu

0%
Klimatyczne biuro, 2 pokoje. Stary Wilanów
Warszawa, Wilanów , Królowej Marysieńki
7 085 zł

109 zł/m2

65 m2

0%
Lokal na klinikę Lokal medyczny. Wilanów Królewski
Warszawa, Wilanów , Królowej Marysieńki
16 740 zł

124 zł/m2

135 m2

Handel, usługi. Witryna, wejście z ulicy, parking.
Warszawa, Wilanów , Wilanów Królewski
14 950 zł

130 zł/m2

115 m2

Biuro, lokal usługowy, parter. Główna ulica.
Warszawa, Wilanów , Wilanów Królewski
14 430 zł

130 zł/m2

111 m2

Lokal usługowy, biuro, parter. Główna ulica.
Warszawa, Wilanów , Wilanów Królewski
22 600 zł

100 zł/m2

226 m2

1/14