Biuro w kamienicy w centrum Warszawy

Warszawa, Śródmieście, Chmielna

3 900 zł

81 zł/m2

Lokal biurowy na wynajem

Podstawowe

Powierzchnia
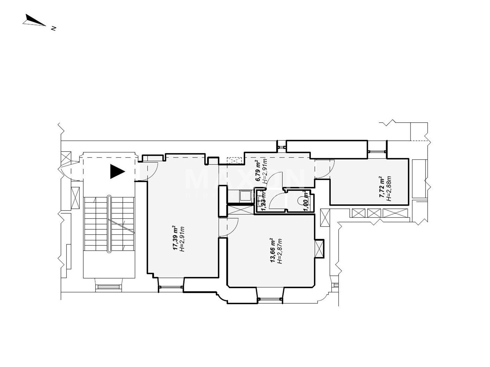
48,00 m2
Liczba pomieszczeń
4
Stan lokalu
Dobry
Piętro
3
Numer oferty
7613/LBW/MAX

Warunki handlowe

Cena miejsca parkingowego podziemnego
ZAPYTAJ O CENĘ
Koszty eksploatacyjne m2
850,00

Standard

Klimatyzacja
Wentylacja wymuszona
Otwierane okna
Podwieszane sufity
Światłowód
Okablowanie komputer.
Okablowanie elektryczne
Okablowanie telefoniczne

Bezpieczeństwo

Czujniki dymu
Kontrola dostępu
Alarm

Media i wyposażenie

Ogrzewanie
CO miejskie
Ciepła woda
Wodociąg miejski
Gaz
Siła
Liczba osobnych toalet
1

Budynek

Rok budowy
1914
Rodzaj budynku
Kamienica
Stan budynku
Bardzo dobry
Winda

Bezpieczeństwo budynku

Monitoring
Ochrona
Recepcja
Domofon

Czynsz zawiera:

Woda
Ogrzewanie
Prąd
Gaz

Opis

Biuro  z klimatem 48m2. w samym Centrum Warszawy.

Czynsz 3.900 zł. netto + opłaty eksploatacyjne 850 zł. netto., plus energia.

Podział powierzchni:

- gabinety: 17, 13, 7 mkw

- aneks kuchenny,

- łazienka z WC

- wysokość pomieszczeń 2,92m

Biuro idealne dla małego start- upu, moze na gabinety dla psychologa, małe biuro ksiegowe lub prawne.

Nieruchomość znajduje się bezppśrednio przy Placu Pięciu Rogów. W okolicy wiele kawiarni i restauracji.

Parking na placu przed Pałacem Kultury lub podziemny na placu Powstańców Warszawy.

Polecam i zapraszam na prezentację.

Lokalizacja

Lokalizacja nieruchomości na mapie może być przybliżona

Plan

Zapraszamy do kontaktu

Izabella Gramburg

Doradca ds. nieruchomości komercyjnych

Zadzwoń:

Zainteresowała Cię nasza oferta lub szukasz podobnej nieruchomości? Zapraszamy do kontaktu!



Oferty w pobliżu

Chmielna kamienica na biuro
Warszawa, Śródmieście , ul. Chmielna
9 500 zł

100 zł/m2

95 m2

4 pokoje

Piękna Kamienica na biuro, kancelarię
Warszawa, Śródmieście , al. Aleje Jerozolimskie
17 730 zł

90 zł/m2

197 m2

7 pokoi

Nowy Świat - 4 pokoje biurowe
Warszawa, Śródmieście , ul. Nowy Świat
8 800 zł

79 zł/m2

112 m2

5 pokoi

biuro w stylowej kamienicy
Warszawa, Śródmieście , Wspólna
17 500 zł

106 zł/m2

165 m2

5 pokoi

Tylko u nas
Lokal w kamienicy, 3 pokoje, Centrum
Warszawa, Śródmieście , ul. Wilcza
4 900 zł

71 zł/m2

69 m2

3 pokoje

1/11