Nowy Świat - 5 pokoi biurowych

Warszawa, Śródmieście, ul. Nowy Świat

8 800 zł

79 zł/m2

Lokal biurowy na wynajem

Podstawowe

Powierzchnia
112,00 m2
Liczba pomieszczeń
5
Stan lokalu
Bardzo dobry
Piętro
1
Numer oferty
7580/LBW/MAX

Warunki handlowe

Cena miejsca parkingowego podziemnego
ZAPYTAJ O CENĘ
Koszty eksploatacyjne m2
30,00

Standard

Klimatyzacja
Wentylacja wymuszona
Otwierane okna
Podwieszane sufity
Światłowód
Okablowanie komputer.
Okablowanie elektryczne
Okablowanie telefoniczne

Bezpieczeństwo

Czujniki dymu
Kontrola dostępu
Alarm

Media i wyposażenie

Ogrzewanie
CO miejskie
Ciepła woda
Wodociąg miejski
Gaz
Siła
Liczba osobnych toalet
2

Budynek

Rok budowy
1956
Rodzaj budynku
Kamienica
Stan budynku
Istniejący
Winda

Bezpieczeństwo budynku

Monitoring
Ochrona
Recepcja
Domofon

Czynsz zawiera:

Woda
Ogrzewanie
Prąd
Gaz

Opis

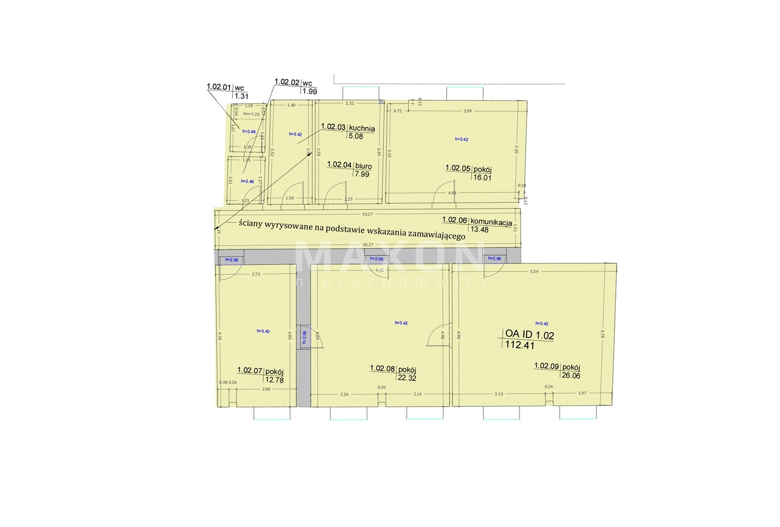
Samodzielny lokal biurowy o pow.  112 m2 w doskonałej lokalizacji. Podział powierzchni:

  • 5 pokoi biurowych- 12 mkw. 22mkw. 26mkw, 16mkw 7 mkw.
  • wyposażona kuchnia 5 mkw.
  • 2 WC,
  • magazynek - archiwum,
  • możliwość podziału dużych pokoi na mniejsze pomieszczenia biurowe,

Bardzo dobry standard wykończenia:

  • Klimatyzacja.
  • Na podłodze wykładzina dywanowa.
  • Sieć komputerowa.


W pobliżu metro - stacja Uniwersytet.

Biuro gotowe do wejścia - zapraszam na prezentację.

Budynek

Kamienica biurowa położona przy ul. Nowy Świat.

Bardzo dobra komunikacja: metro, autobusy.

Lokalizacja

Prestiżowa lokalizacja - ul. Nowy Świat.

Bardzo dobry dostęp do komunikacji miejskiej - autobusy, Metro.

Lokalizacja nieruchomości na mapie może być przybliżona

Plan

Zapraszamy do kontaktu

Dorota Leszczyńska

Dyrektor Działu Komercyjnego

Zadzwoń:

Zainteresowała Cię nasza oferta lub szukasz podobnej nieruchomości? Zapraszamy do kontaktu!



Oferty w pobliżu

Chmielna kamienica na biuro
Warszawa, Śródmieście , ul. Chmielna
9 500 zł

100 zł/m2

95 m2

4 pokoje

Piękna Kamienica na biuro, kancelarię
Warszawa, Śródmieście , al. Aleje Jerozolimskie
17 730 zł

90 zł/m2

197 m2

7 pokoi

biuro w stylowej kamienicy
Warszawa, Śródmieście , Wspólna
17 500 zł

106 zł/m2

165 m2

5 pokoi

ul. Wiejska - biuro, klimatyzacja, 8 gabinetów
Warszawa, Śródmieście , Wiejska
12 500 zł

76 zł/m2

165 m2

8 pokoi

Tylko u nas
Lokal po remoncie-biuro,kancelaria,gabinet
Warszawa, Śródmieście , ul. Wilcza
8 000 zł

113 zł/m2

71 m2

3 pokoje

1/13