Prestiż i elegancja, biuro na Chmielnej

Warszawa, Śródmieście, Chmielna

13 200 zł

99 zł/m2

Lokal biurowy na wynajem

Podstawowe

Powierzchnia
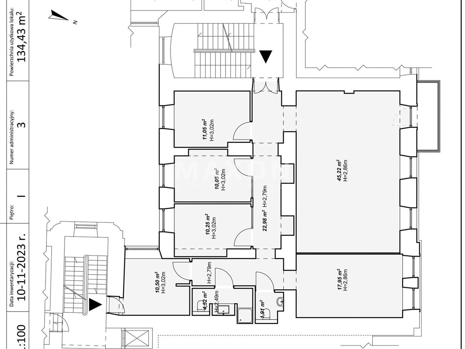
134,00 m2
Liczba pomieszczeń
10
Stan lokalu
Bardzo dobry
Piętro
1
Numer oferty
7612/LBW/MAX

Warunki handlowe

Cena miejsca parkingowego podziemnego
ZAPYTAJ O CENĘ
Koszty eksploatacyjne m2
2200,00

Standard

Klimatyzacja
Wentylacja wymuszona
Otwierane okna
Podwieszane sufity
Światłowód
Okablowanie komputer.
Okablowanie elektryczne
Okablowanie telefoniczne

Bezpieczeństwo

Czujniki dymu
Kontrola dostępu
Alarm

Media i wyposażenie

Ogrzewanie
CO miejskie
Ciepła woda
Wodociąg miejski
Gaz
Siła
Liczba osobnych toalet
2

Budynek

Rok budowy
1914
Rodzaj budynku
Kamienica
Stan budynku
Bardzo dobry
Winda

Bezpieczeństwo budynku

Monitoring
Ochrona
Recepcja
Domofon

Czynsz zawiera:

Woda
Ogrzewanie
Prąd
Gaz

Opis

Do wynajęcia lokal 134m2. idealnie nadający się na biuro prawnicze, notrialne, księgowe, ale tez agnecję reklamową, małą szkołę językową, fundacje.

Czynsz najmu 13.200 zł. netto/mc. plus koszty eksploatacji 2.200zł/mc. Dodatkowo płatna energia elektryczna  wg. zużycia.

Układ powierzchni; 
- duży open space 45m2
- gabinety: 11, 10 10, 17 mkw
- WC i WC z toaletą i prysznicem

- balkon w pokoju 45mkw

Wejście do lokalu z reprezentacyjnej klatki schodowej, w bramie prowadzącej na podwórze należącej do właściciela kamienicy.

Nieruchomość znajduje się w bezpośrednim sąsiedztwie Placu Pięciu Rogów.

Dostępne od 1.05.

Zapraszam do kontaktu telefonicznego w celu bliższego zapoznania się z ofertą

Parkingi przy Pałacu Kultury, lub w podziemnym przy Placu Powstańców Warszawy.

Lokalizacja

Lokalizacja nieruchomości na mapie może być przybliżona

Plan

Zapraszamy do kontaktu

Izabella Gramburg

Doradca ds. nieruchomości komercyjnych

Zadzwoń:

Zainteresowała Cię nasza oferta lub szukasz podobnej nieruchomości? Zapraszamy do kontaktu!



Oferty w pobliżu

Biuro w kamienicy w centrum Warszawy
Warszawa, Śródmieście , ul. Chmielna
3 900 zł

81 zł/m2

48 m2

4 pokoje

Chmielna kamienica na biuro
Warszawa, Śródmieście , ul. Chmielna
9 500 zł

100 zł/m2

95 m2

4 pokoje

Piękna Kamienica na biuro, kancelarię
Warszawa, Śródmieście , al. Aleje Jerozolimskie
17 730 zł

90 zł/m2

197 m2

7 pokoi

biuro w stylowej kamienicy
Warszawa, Śródmieście , Wspólna
17 500 zł

106 zł/m2

165 m2

5 pokoi

Nowy Świat - 4 pokoje biurowe
Warszawa, Śródmieście , ul. Nowy Świat
8 800 zł

79 zł/m2

112 m2

5 pokoi

1/6