Lokal przy stacji Metra Świętokrzyska

Warszawa, Śródmieście, ul. Bagno

1 242 000 zł

27 000 zł/m2

0% PROWIZJI

Lokal biurowy na sprzedaż

Podstawowe

Powierzchnia
46,00 m2
Liczba pomieszczeń
3
Cena m2
27 000,00 PLN
Rynek Pierwotny
Stan lokalu
Dobry
Piętro
3
Liczba pięter
14
Numer oferty
1310/LBS/MAX

Standard

Klimatyzacja
Wentylacja wymuszona
Otwierane okna
Podwieszane sufity
Podnoszone podłogi
Światłowód
Okablowanie komputer.
Okablowanie elektryczne
Okablowanie telefoniczne

Bezpieczeństwo

Czujniki dymu
Kontrola dostępu
Tryskacze
Alarm

Media i wyposażenie

Ogrzewanie
CO miejskie
Ciepła woda
Wodociąg miejski
Gaz
Siła
Liczba osobnych toalet
1

Budynek

Rok budowy
2009
Rodzaj budynku
Apartamentowiec
Stan budynku
Idealny
Winda

Bezpieczeństwo budynku

Monitoring
Ochrona
Recepcja
Teren ogrodzony
Domofon

Opis

Prestiżowy budynek apartamentowo-biurowy położony w ścisłym Śródmieściu. Na parterze elegancka recepcja i stanowisko ochrony. Budynek położony jest przy wejściu do stacji Metra Świętokrzyska.
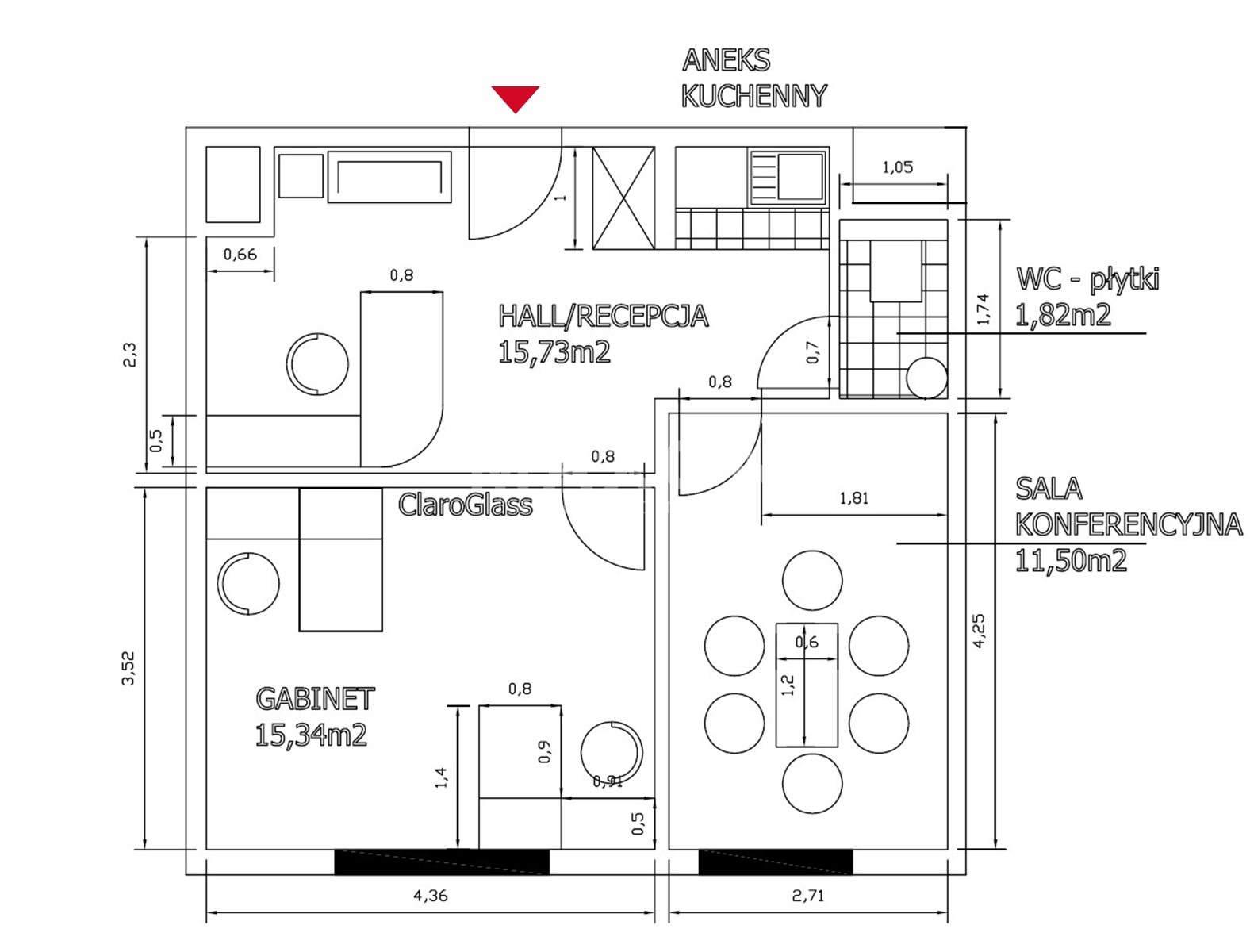
Do sprzedania samodzielny lokal oferowany na cele biurowe o powierzchni 46 m2.

Podział powierzchni:

  • recepcja 15 mkw.
  • pokój 15 mkw.
  • pokój 11 mkw.
  • Aneks kuchenny
  • WC


W bardzo wielu lokalach w budynku prowadzona jest działalność gospodarcza - wykorzystywane są jako siedziby kancelarii prawnych, agencji reklamowych i innych firm wymagających prestiżowego biura w centralnej lokalizacji.

Budynek

Prestiżowy budynek apartamentowy z częścią biurową, położony w ścisłym Śródmieściu. Na parterze elegancka recepcja oraz stanowisko ochrony. Budynek położony jest przy wejściu do stacji metra Świętokrzyska.

Lokalizacja

Lokalizacja nieruchomości na mapie może być przybliżona

Plan

Zapraszamy do kontaktu

Dorota Leszczyńska

Dyrektor Działu Komercyjnego

Zadzwoń:

Zainteresowała Cię nasza oferta lub szukasz podobnej nieruchomości? Zapraszamy do kontaktu!



Oferty w pobliżu

Tylko u nas
Aleje Ujazdowskie - lokal na biuro
Warszawa, Śródmieście , Al. Ujazdowskie
2 560 000 zł

25 780 zł/m2

99 m2

4 pokoje

Tylko u nas
Lokal biurowy w doskonałej lokalizacji
Warszawa, Wola , al. Aleja Jana Pawła II
1 970 000 zł

17 828 zł/m2

111 m2

7 pokoi

Tylko u nas
0%
Przestrzeń z duszą / zabytkowa kamienica / METRO
Warszawa, Praga-Północ , ul. Targowa
1 990 000 zł

17 653 zł/m2

113 m2

4 pokoje

Inwestycja Powiśle: 18 Pomieszczeń, Śródmieście
Warszawa, Śródmieście , ul. Górnośląska
3 900 000 zł

12 226 zł/m2

319 m2

18 pokoi

0%
LOKAL BIUROWY PRZY METRZE "PŁOCKA"
Warszawa, Wola , ul. Płocka
4 465 000 zł

9 474 zł/m2

471 m2

30 pokoi

1/10