Dwupoziomowe mieszkanie w rejonie Pl. Szembeka

Warszawa, Praga-Południe, ul. Zamieniecka

2 900 zł

67 zł/m2

TYLKO U NAS

Mieszkanie na wynajem - 43,10 m2, 2 pokoje

Powierzchnia:
43,10 m2
Liczba pokoi:
2 pokoje
Piętro:
4 / 5
Typ mieszkania:
Wielopoziomowe
Stan wykończenia:
Dobry
Ogrzewanie:
CO miejskie
Dostępne od:
25-07-2025
Powierzchnie dodatkowe:
  • taras
  • taras 7,00 m2
Udogodnienia:
  • winda
Numer oferty:
27448/MW/MAX

Struktura kosztów

Czynsz administracyjny
Dodatkowo płatny (776 zł)
Ogrzewanie
W czynszu administracyjnym
Woda
W czynszu administracyjnym
Prąd
Dodatkowo płatny
Gaz
Dodatkowo płatny
Internet
Indywidualna umowa
TV kablowa / sat.
Indywidualna umowa
Kaucja:
3676,00

Pomieszczenia

Wysokość:
260 cm
Powierzchnia salonu:
18,00 m2
Rodzaj kuchni:
Otwarta
Liczba łazienek:
1
Liczba toalet:
0
Garderoba:
Tak

Wyposażenie

Umeblowanie:
Tak
Wyposażenie kuchni:
kuchenka gazowa, lodówka, meble, meble w zabudowie kuchennej, okap, piekarnik gazowy, zlewozmywak
Wyposażenie łazienki:
pralka, prysznic, umywalka, wc

Budynek

Rodzaj budynku:
Blok
Rok budowy:
2003
Stan budynku:
Dobry
Materiał konstrukcyjny:
Mieszany
Bezpieczeństwo:
  • domofon
  • monitoring
  • ogrodzony teren
Udogodnienia:

Opis

Nietuzinkowe, funkcjonalne 2 poziomowe mieszkanie idealne dla pary lub singla.

Bardzo ciekawa propozycja dla osób ceniących sobie oryginalne nieruchomości.

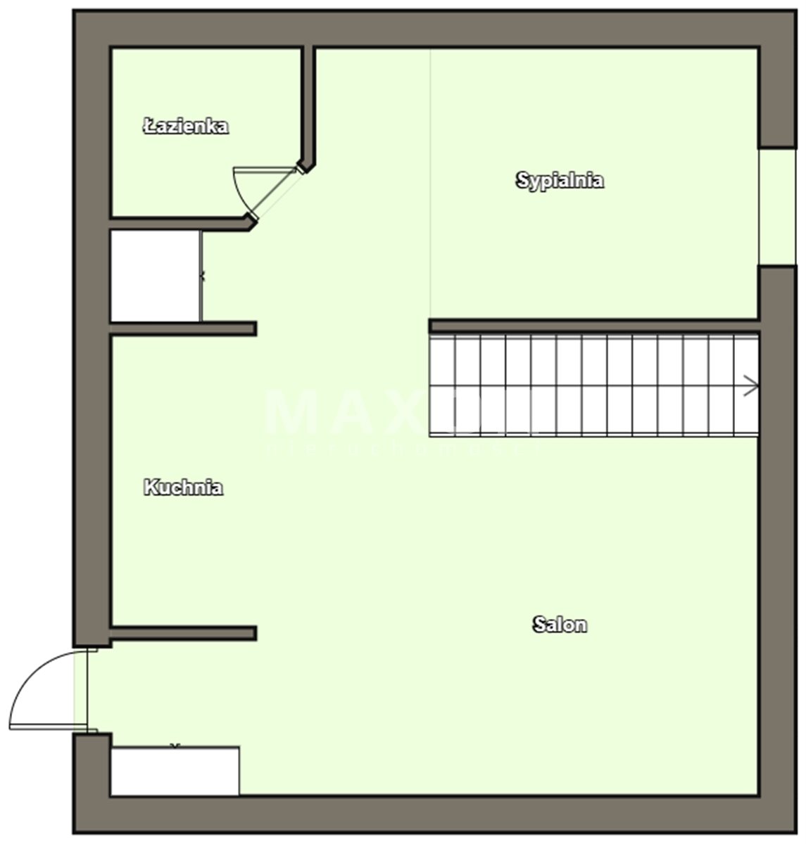
Poziom pierwszy to salon połączony z otwartą kuchnią, osobny gabinet i łazienka z prysznicem. 
Pojemne szafy w zabudowie oraz dużó miejsca do przechowywania.

Z salonu schody prowadzą na antresolę, gdzie zaaranżowano sypialnię z wyjściem na wyjątkowy taras, jedyny w całym budynku. Na antresoli zamykana garderoba z oknem.

Kuchnia wyposażona w niezbędne sprzęty AGD oraz zestaw naczyń.

Dodatkowo płatny czynsz administracyjny w wysokości 776 zł oraz opłaty za prąd i gaz.

Dogodna lokalizacja, świetna komunikacja z każdym punktem miasta.

Mieszkanie mieści się na 4 piętrze budynku (z windą) z 2000 roku.

WYMAGANA UMOWA NAJMU OKAZJONALNEGO

Budynek

Budynek (z windą) z 2000 roku.Dostęp do budynku za pomocą kodu.

Lokalizacja

Grochów-Witolin, ulica Zamieniecka, niedaleko Centrum Handlowego Szembeka i Parku Znicza. W pobliżu bogata infrastruktura handlowa, usługowa i placówki medyczne.Blisko przystanki autobusowe i tramwajowe przy ul. Zamienieckiej i Grochowskiej.

1,5 km do Ronda Wiatraczna.

Lokalizacja nieruchomości na mapie może być przybliżona

Plan

Zapraszamy do kontaktu

Beata Wróblewska

Ekspert ds. Nieruchomości

Zadzwoń:

Zainteresowała Cię nasza oferta lub szukasz podobnej nieruchomości? Zapraszamy do kontaktu!



Oferty w pobliżu

Tylko u nas
Nowa Cena - Mieszkanie przy Placu Szembeka
Warszawa, Praga-Południe , ul. Osowska
2 850 zł

75 zł/m2

38 m2

2 pokoje

3 oddzielne pokoje, oddzielna kuchnia
Warszawa, Praga-Południe , ul. Ignacego Domeyki
5 200 zł

69 zł/m2

75 m2

3 pokoje

Tylko u nas
Nowe, nowoczesne 3 pokoje w kamienicy
Warszawa, Praga-Południe , ul. Grochowska
5 000 zł

81 zł/m2

62 m2

3 pokoje

2 pokoje, miejsce w garażu, Jugosłowiańska 15
Warszawa, Praga-Południe , ul. Jugosłowiańska
4 000 zł

76 zł/m2

53 m2

2 pokoje

Tylko u nas
Komfortowe 2 pokoje na Pradze Południe
Warszawa, Praga-Południe , ul. Liwiecka
3 600 zł

70 zł/m2

51 m2

2 pokoje

1/17