DOM zamiast mieszkania-3 pokje+MP+ogródek

mazowieckie, wołomiński, Radzymin, ul. Janusza Korczaka

695 000 zł

12 636 zł/m2

Mieszkanie na sprzedaż - 55,00 m2, 3 pokoje

Powierzchnia:
55,00 m2
Liczba pokoi:
3 pokoje
Piętro:
1 / 1
Czynsz:
0,00 zł
Typ mieszkania:
Rozkładowe
Stan wykończenia:
Bardzo dobry
Ogrzewanie:
Gazowe
Rynek:
wtórny
Dostępne od:
10-11-2025
Powierzchnie dodatkowe:
  • balkon klasyczny
  • ogród 50,00 m2
Udogodnienia:
  • klimatyzacja
Parking:
  • naziemny 2x 1 zł
Numer oferty:
63357/MS/MAX

Pomieszczenia

Wysokość:
270 cm
Powierzchnia salonu:
18,00 m2
Rodzaj kuchni:
Otwarta
Liczba łazienek:
1
Liczba toalet:
0
Garderoba:
Tak

Budynek

Rodzaj budynku:
Segment
Rok budowy:
2025
Stan budynku:
Idealny
Materiał konstrukcyjny:
Pustak ceramiczny
Bezpieczeństwo:
  • domofon
  • monitoring
  • ogrodzony teren
  • dzwi / okna antywłamaniowe
Udogodnienia:

Opis

Ostatni z Ogrodem !! Ekskluzywne Klimatyczne Apartament / Nietuzinkowy Design / Ogródek 28m / Bezczynszowe / blisko SKM 
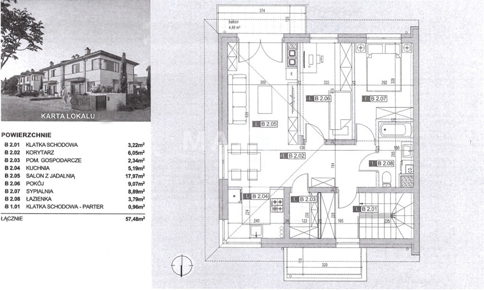
Apartament położony jest na piętrze, posiada 3 pokoje, powierzchnia to 57,48 mkw. Wyróżnia go piękny ogród o pow. 195mkw
Schemat pomieszczeń:
Salon z jadalnią i otwartą kuchnią (18m) i wyjściem na balkon
Pokój 1 (10m)
Pokój 2 (9m)
Łazienka (3,75m)
Hol (5,12m)
Garderoba (2,34m)
Wiatrołap (2,27m)
Ogród (28m)
Apartament posiada ekspozycję trzystronną, przez co jest doskonale doświetlony.
W cenie:

  • Wykończone mieszkanie z meblami w kuchni i łazience
  • klimatyzacja
  • zamontowany piec gazowy
  • ogrzewanie podłogowe w całym domu
  • własny ogródek przydzielony do lokalu / ogródki ogrodzone
  • osiedle zamknięte ogrodzone
  • teren wyłożony kostką
  • domofon
  • przyłącza alarmowe, antenowe, TV i internetowe
  • dwa miejsca postojowe numerowane

Media: prąd, siła (indukcja), wodociąg miejski, kanalizacja, ogrzewanie i ciepła woda – piec gazowy
Coś o zabudowie...
Nowoczesne Designerskie Kameralne Osiedle 4 Apartamentów bezczynszowych z ogrodami o podwyższonym standardzie. Wyróżniają się pięknym projektem, jakością wykonania.

Nowoczesne osiedle, przepiękny Design. Apartamenty posiadają oddzielne wejścia / własna klatka schodowa.
Osiedle: kameralna zabudowa, indywidualny projekt, skupiający się na detalach tworzący spójny koncept osiedla. Domy cechuje rzetelność wykonania, doskonała jakość.
Lokalizacja:
Radzymin ul. Janusza Korczaka / blisko SKM /
Dzięki swojemu unikalnemu położeniu gwarantuje azyl od miejskiego zgiełku, znajdując się jednocześnie w miejscu bardzo dobrze skomunikowanym z pełną infrastrukturą.
do SKM Radzymin 1,3 km
Dojazd do Centrum Radzymina w kilka minut
Dojazd do Warszawy ok 20 minut
Dojazd do Metra Targówek bezpośrednim autobusem z Radzymina (linia 738)
W okolicy pełna infrastruktura: szkoła podstawowa, przedszkole, żłobki.
ATUT:
BEZCZYNSZOWE APARTAMENTY
miejsca postojowe na osiedlu
pełna obsługa procesu finansowania od pomocy w uzyskaniu korzystnej oferty kredytowej przez formalności do uruchomienia kredytu
Do każdego mieszkania przynależy ogródek.

w pakiecie z mieszkaniami są także ogródki, które każdy lokator może zagospodarować według własnego uznania. Projekt łączący prywatność domu i wygodę mieszkania. Co więcej, do każdego domu doprowadzone są wszystkie niezbędne media: woda, kanalizacja, prąd i gaz.
Ważną wartością jest bezpieczeństwo i komfort, dlatego osiedle jest ogrodzone.

Inwestycja w budowie zakończenie IV kwartał 2025 roku.

📞 Zadzwoń, umów się na prezentację i przekonaj się, że takie miejsca naprawdę istnieją!

Lokalizacja

Lokalizacja nieruchomości na mapie może być przybliżona

Plan

Zapraszamy do kontaktu

Anna Skrzywan

Ekspert ds. Nieruchomości

Zadzwoń:

Zainteresowała Cię nasza oferta lub szukasz podobnej nieruchomości? Zapraszamy do kontaktu!



Oferty w pobliżu

0%
Mini Segment 131mk dwupoziomowy 4/6 pokoi Okazja
Kobyłka , ul. Kazimierza Wielkiego
650 000 zł

4 955 zł/m2

131 m2

5 pokoi

0%
Mini Segment 3 pokoje pow.50m, Ogród 33,70m
Kobyłka , ul. Kazimierza Wielkiego
520 000 zł

10 429 zł/m2

50 m2

3 pokoje

0%
Dwupoziomowy Apartament 100m2 Bezczynszowy
Kobyłka , ul. Kazimierza Wielkiego
620 000 zł

6 446 zł/m2

96 m2

4 pokoje

0%
Mini Segment 4 pokoje pow.62,06 mkw., Ogród 41mkw
Kobyłka , ul. Kazimierza Wielkiego
580 000 zł

9 346 zł/m2

62 m2

4 pokoje

0%
Bezczynszowy Dwupoziomowy Apartament 110m 5 pokoi
Kobyłka , ul. Kazimierza Wielkiego
620 000 zł

6 446 zł/m2

96 m2

5 pokoi

1/30