Las za oknem | ogromny potencjał

mazowieckie, wołomiński, Marki, ul. Duża

620 000 zł

10 580 zł/m2

TYLKO U NAS

Mieszkanie na sprzedaż - 58,60 m2, 2 pokoje

Powierzchnia:
58,60 m2
Liczba pokoi:
2 pokoje
Piętro:
2 / 3
Czynsz:
500,00 zł
Typ mieszkania:
Mieszkanie
Stan wykończenia:
Do częściowego remontu
Ogrzewanie:
Gazowe
Rynek:
wtórny
Dostępne od:
15-04-2026
Powierzchnie dodatkowe:
  • balkon klasyczny
Udogodnienia:
Parking:
  • naziemny 1x 20 000 zł
Numer oferty:
64206/MS/MAX

Pomieszczenia

Wysokość:
260 cm
Powierzchnia salonu:
19,90 m2
Rodzaj kuchni:
Oddzielna
Liczba łazienek:
1
Liczba toalet:
0
Garderoba:
Tak

Budynek

Rodzaj budynku:
Niski blok
Rok budowy:
2005
Stan budynku:
Dobry
Materiał konstrukcyjny:
Mieszany
Bezpieczeństwo:
  • domofon
  • ochrona
  • ogrodzony teren
Udogodnienia:
  • plac zabaw

Opis

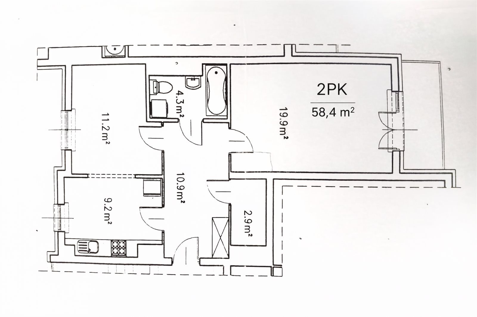
Na sprzedaż funkcjonalne 2-pokojowe mieszkanie o powierzchni 58,60 m², położone na II piętrze przy ul. Dużej 5 w Markach, na kameralnym osiedlu Horowa Góra.
Mieszkanie posiada bardzo praktyczny układ pomieszczeń i duży potencjał aranżacyjny — idealne zarówno dla pary, rodziny, jak i pod inwestycję.

Rozkład mieszkania:

  • przestronny salon (ok. 19,9 m²)
  • ustawna sypialnia (ok. 11,2 m²)
  • oddzielna kuchnia (ok. 9,2 m²)
  • łazienka (ok. 4,3 m²)
  • przedpokój (ok. 10,9 m²)
  • garderoba (ok. 2,9 m²)

Z kuchni oraz sypialni rozciąga się piękny widok bezpośrednio na las, co zapewnia ciszę, prywatność i kontakt z naturą.

Do mieszkania przynależy miejsce parkingowe (dodatkowo płatne 20 000 zł).

Stan mieszkania: do odświeżenia lub remontu, co daje możliwość aranżacji według własnych potrzeb.

Budynek

Mieszkanie znajduje się na zamkniętym, monitorowanym osiedlu z ochroną, co zapewnia wysoki poziom bezpieczeństwa i komfort mieszkańców.

  • osiedle zadbane i kameralne,
  • całodobowa ochrona i monitoring,
  • duży, bezpieczny plac zabaw dla dzieci,
  • spokojne i przyjazne sąsiedztwo.
 Zapraszam do kontaktu ☎️📧

Lokalizacja

Nieruchomość znajduje się w bardzo atrakcyjnej części Marek – w otoczeniu zieleni, tuż przy lesie.

  • bezpośrednie sąsiedztwo terenów zielonych i tras rowerowych,
  • idealne miejsce dla osób ceniących ciszę i aktywny tryb życia,
  • w pobliżu szkoła podstawowa.

Dodatkowym atutem jest świetnie rozwinięta infrastruktura w obrębie samego osiedla:

  • dostęp do licznych punktów usługowych, takich jak sklep Żabka, fryzjer, salon urody czy gabinet stomatologiczny
  • duży i bezpieczny plac zabaw dla dzieci.

Komunikacja:

  • przystanek autobusowy w odległości ok. 300 m
  • szybki i wygodny dojazd do Warszawy (ok. 40 minut do centrum)
Lokalizacja nieruchomości na mapie może być przybliżona

Plan

Zapraszamy do kontaktu

Adrian Olczyk

Specjalista ds. Nieruchomości

Zadzwoń:

Zainteresowała Cię nasza oferta lub szukasz podobnej nieruchomości? Zapraszamy do kontaktu!



Oferty w pobliżu

Tylko u nas
Rezerwacja !!!
Marki , ul. Wilcza
739 000 zł

12 327 zł/m2

60 m2

3 pokoje

0%
3 pokoje - duży balkon - garaż
Marki , Leopolda Lisa-Kuli
680 915 zł

11 500 zł/m2

59 m2

3 pokoje

0%
2 pokoje - balkon - garaż
Marki , Leopolda Lisa-Kuli
531 840 zł

12 000 zł/m2

44 m2

2 pokoje

Tylko u nas
3 poziomy | brak czynszu | bliskie Marki
Marki , ul. Ludwika Solskiego
1 539 000 zł

9 138 zł/m2

168 m2

5 pokoi

0%
826 770 zł

10 500 zł/m2

79 m2

3 pokoje

1/19