Apart. Dwupoziomowy LOFT 114mkw Ogród 62mkw

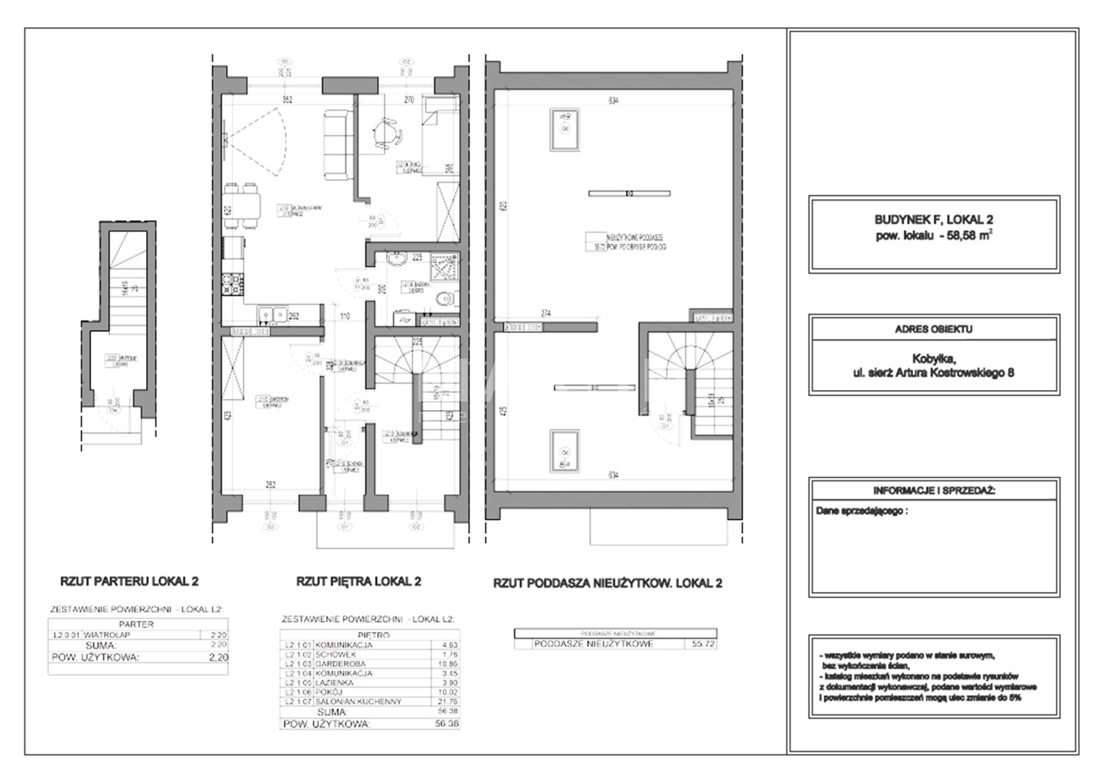
mazowieckie, wołomiński, Kobyłka, ul. sierż. Artura Kostrowskiego

579 000 zł

5 066 zł/m2

Mieszkanie na sprzedaż - 114,30 m2, 5 pokoi

Powierzchnia:
114,30 m2
Liczba pokoi:
5 pokoi
Piętro:
1 / 1
Czynsz:
b.d.
Typ mieszkania:
Apartament
Stan wykończenia:
Deweloperski
Ogrzewanie:
Gazowe
Rynek:
pierwotny
Dostępne od:
b.d.
Powierzchnie dodatkowe:
  • balkon klasyczny
  • ogród 62,00 m2
Udogodnienia:
Parking:
  • naziemny 2x 0 zł
Numer oferty:
63668/MS/MAX

Pomieszczenia

Wysokość:
b.d.
Powierzchnia salonu:
21,76 m2
Rodzaj kuchni:
Aneks
Liczba łazienek:
1
Liczba toalet:
1
Garderoba:
Tak

Budynek

Rodzaj budynku:
Apartamentowiec
Rok budowy:
2025
Stan budynku:
Stan deweloperski
Materiał konstrukcyjny:
Pustak
Bezpieczeństwo:
  • domofon
  • monitoring
  • ochrona
  • ogrodzony teren
Udogodnienia:

Opis

Apartament Bezczynszowy Dwupoziomowy / doskonała lokalizacja / piękne intymne Ogrody / w cenie dwa miejsca postojowe przed budynkiem / mogą powstać dwa oddzielne mieszkania - oddzielona klatka schodowa/ 

Apartament położony jest na I piętrze, powierzchnia całkowita to 114,30mkw na I kondygnacji znajdują się 3 pokoje na II kondygnacji powierzchnia otwarta - mogą powstać dwa pokoje i łazienka. Klatka schodowa nie koliduje w oba piętra można wydzielić przestrzeń na dwa oddzielne mieszkania. 

Powierzchnia całkowita to 114,30mkw, przynależy do niego Ogród  o powierzchni 62mkw.  

Schemat pomieszczeń:

Parter - wejście / wiatrołap (2,20m)

Piętro I (58,58m)

  • Salon z jadalnią i otwartą kuchnią (21,76m)
  • Pokój (10,86m)
  • Pokój (10,02m)
  • Łazienka (3,90m)
  • Hol (3,45m)
  • Schowek (1,76m)
  • Komunikacja (4,63m)
  • Ogród (62m)

Piętro II (55,72m)

Poddasze - otwarta przestrzeń / bardzo wysokie pomieszczenie / można podzielić na 2 pokoje, kuchnię i łazienkę / 

W cenie:

  • własny piec gazowy dwufunkcyjny
  • ogrzewanie podłogowe w całym domu
  • własny ogródek przydzielony do lokalu / ogródki ogrodzone
  • osiedle zamknięte ogrodzone
  • teren wyłożony kostką
  • domofon
  • przyłącza alarmowe, antenowe, TV i internetowe
  • pięknie zagospodarowana infrastruktura osiedla
  • dwa numerowane miejsca postojowe na terenie osiedla

Media: prąd, siła (indukcja), wodociąg miejski, kanalizacja - szambo, gaz

Coś o zabudowie...

Nowoczesne Designerskie Kameralne Osiedle Bezczynszowych dwulokalowych Apartamentów.
Wyróżniają się nowoczesnym Designem oraz jakością wykonania. 

Jest to indywidualny projekt wykonany przez wiodąca pracownię projektową.
Jest to klimatyczne zamknięte osiedle 18 Apartamentów o powierzchniach od 55,41mkw do 114,30mkw w ofercie wszystkie apartamenty z ogrodami oraz dwoma miejscami parkingowymi. 

Co je wyróżnia:

  • Apartamenty posiadają oddzielne wejścia / własna klatka schodowa
  • w cenie dwa miejsca postojowe
  • piękne duże ogrody
  • doskonała lokalizacja
  • intymna ekspozycja ogrodów i apartamentowca

Osiedle: kameralna zabudowa, doskonała jakość  i rzetelność wykonania.

Lokalizacja:

Dzięki swojemu unikalnemu położeniu gwarantuje azyl od miejskiego zgiełku, znajdując się jednocześnie w miejscu bardzo dobrze skomunikowanym z pełną infrastrukturą.

  • szkoła 1400m
  • przedszkole 1500m
  • przychodnia lekarska 2100m
  • sklepy 1200m
  • transport publiczny 1400m
  • PKP Kobyłka 2300m
  • szybki dojazd do Warszawy koleją podmiejską lub trasą S8

Kupujący zwolniony z 2% podatku PCC. Zakup z bezpiecznym rachunkiem powierniczym.

Zakończenie budowy 31.10 2026r. 

Zapraszam Dzwoń 7 dni w tygodniu 9-21


Lokalizacja

Lokalizacja nieruchomości na mapie może być przybliżona

Plan

Zapraszamy do kontaktu

Beata Palaszek

Ekspert ds. Nieruchomości

Zadzwoń:

Zainteresowała Cię nasza oferta lub szukasz podobnej nieruchomości? Zapraszamy do kontaktu!



Oferty w pobliżu

Apart. Dwupoziomowy LOFT 114mkw Ogród 55mkw
Kobyłka , ul. sierż. Artura Kostrowskiego
579 000 zł

5 066 zł/m2

114 m2

5 pokoi

Apart. Dwupoziomowy LOFT 114mkw Ogród 75mkw
Kobyłka , ul. sierż. Artura Kostrowskiego
579 000 zł

5 066 zł/m2

114 m2

5 pokoi

Apart. Dwupoziomowy LOFT 114mkw Ogród 74mkw
Kobyłka , ul. sierż. Artura Kostrowskiego
579 000 zł

5 066 zł/m2

114 m2

5 pokoi

Apartament 3 pok.Ogród 38mkw
Kobyłka , ul. sierż. Artura Kostrowskiego
529 000 zł

9 547 zł/m2

55 m2

3 pokoje

Apart. Dwupoziomowy LOFT 114mkw Ogród 62mkw
Kobyłka , ul. sierż. Artura Kostrowskiego
579 000 zł

5 066 zł/m2

114 m2

5 pokoi

1/5