Wysoki Wilanów 3/4 pokoje z dużym balkonem

Warszawa, Wilanów, ul. Marconich

1 350 000 zł

14 408 zł/m2

TYLKO U NAS

Mieszkanie na sprzedaż - 93,70 m2, 3 pokoje

Powierzchnia:
93,70 m2
Liczba pokoi:
3 pokoje
Piętro:
3 / 4
Czynsz:
1 600,00 zł
Typ mieszkania:
Rozkładowe
Stan wykończenia:
Do częściowego remontu
Ogrzewanie:
CO miejskie
Rynek:
wtórny
Dostępne od:
01-11-2025
Powierzchnie dodatkowe:
  • balkon klasyczny
  • komórka
Udogodnienia:
  • winda
Parking:
  • podziemny 1x 50 000 zł
Numer oferty:
63336/MS/MAX

Pomieszczenia

Wysokość:
290 cm
Powierzchnia salonu:
30,00 m2
Rodzaj kuchni:
Widna
Liczba łazienek:
1
Liczba toalet:
1
Garderoba:
Nie

Budynek

Rodzaj budynku:
Apartamentowiec
Rok budowy:
2000
Stan budynku:
Bardzo dobry
Materiał konstrukcyjny:
Cegła
Bezpieczeństwo:
  • domofon
  • monitoring
  • ochrona
  • recepcja
  • ogrodzony teren
Udogodnienia:

Opis

REZERWACJA

Oferujemy do sprzedaży przestronne, trzypokojowe mieszkanie w świetnej lokalizacji - ul. Marconich na Starym Wilanowie.


ROZKŁAD:

Mieszkanie ma dwustronną ekspozycję. Okna z salonu, kuchni oraz balkon wychodzą na zachód, a z sypialni na wschód.
Położenie w środku osiedla sprawia że mieszkanie jest ciche, a wyższe piętro, ekspozycja stron świata, duża ilość okien jak również ponadprzeciętna wysokość 290 cm. sprawiają, że lokal jest przestronny i słoneczny.

Mieszkanie jest w dobrym stanie technicznym, na podłogach jesionowy parkiet, stylowe drzwi wewnętrzne ze szprosami, zadbane i odświeżone klatki schodowe, windy zjeżdżające do poziomu garażu.

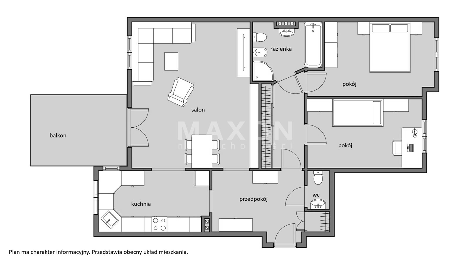
Obecny rozkład mieszkania 

Całkowita powierzchnia to 93,70 mkw.

- salonu (ok. 28 mkw), z którego prowadzi wyjście na balkon,

- oddzielnej, widnej kuchnia (ok. 13 mkw),
- dwóch sypialni (ok. 13 i 14 mkw),
- łazienki (ok. 5 mkw),
- oddzielnego wc (ok. 1,5 mkw) ,
- oraz przedpokoju z miejscem na dużą szafę

W mieszkaniu bez problemu można zmienić aranżację na na 4 -pokoje, przenosząc kuchnię do salonu, uzyskać dodatkową sypialnię/ gabinet ( 13mkw ) .
Razem z mieszkaniem w cenie 50 000 zł. sprzedawane jest wygodne miejsce parkingowe oraz komórka lokatorska w cenie 20 000 zł..

BUDYNEK I OSIEDLE


Mieszkanie znajduje się na trzecim piętrze w czteropiętrowym bloku z 2000 roku. Budynek jest w bardzo dobrym stanie. Został wybudowany z cegły w tradycyjnej technologii co zapewnia wyjątkowy komfort mieszkania. W zimę jest ciepło, a latem chłodno.
Do dyspozycji mieszkańców jest winda.
Klatki schodowe są zadbane i bardzo czyste.
Wokół budynku jest bardzo dużo ładnie utrzymanej zieleni.

LOKALIZACJA


Lokalizacja jest po prostu wyśmienita. Mieszkanie znajduje się na Starym Wilanowie niedaleko Pałacu i Parku Wilanowskiego. W sąsiedztwie znajdują się sklepy, żłobek, przedszkola i szkoła. Oprócz tego w okolicy znajdują się liczne bary i restauracje.
Przy zakupie można się posiłkować kredytem.
Chętnie odpowiem na więcej pytań.


Zapraszam na prezentację.    

Lokalizacja

Lokalizacja nieruchomości na mapie może być przybliżona

Plan

Zapraszamy do kontaktu

Piotr Orłowski

Ekspert ds. Nieruchomości

Zadzwoń:

Zainteresowała Cię nasza oferta lub szukasz podobnej nieruchomości? Zapraszamy do kontaktu!



Oferty w pobliżu

Tylko u nas
Oś Królewska, 4 pokoje, 2 miejsca postojowe
Warszawa, Wilanów , ul. Oś Królewska
1 770 000 zł

22 320 zł/m2

79 m2

4 pokoje

0%
Apartament Wilanów Rumiana
Warszawa, Wilanów , Rumiana
4 950 000 zł

16 695 zł/m2

296 m2

5 pokoi

Piękne mieszkanie 8 min tramwaj garaż
Warszawa, Wilanów , al. Aleja Wilanowska
1 099 000 zł

16 768 zł/m2

66 m2

2 pokoje

Tylko u nas
0%
4 pokoje, dwupak, Miasteczko Wilanów, bez PCC
Warszawa, Wilanów , Miasteczko Wilanów
1 273 993 zł

19 300 zł/m2

66 m2

4 pokoje

Przestronny apartament na Wilanowie
Warszawa, Wilanów , al. Aleja Wilanowska
990 000 zł

19 149 zł/m2

52 m2

2 pokoje

1/32