3 pokoje w segmencie dwulokalowym zielona okolica

Warszawa, Wesoła, ul. Źródlana

909 000 zł

11 499 zł/m2

0% PROWIZJI

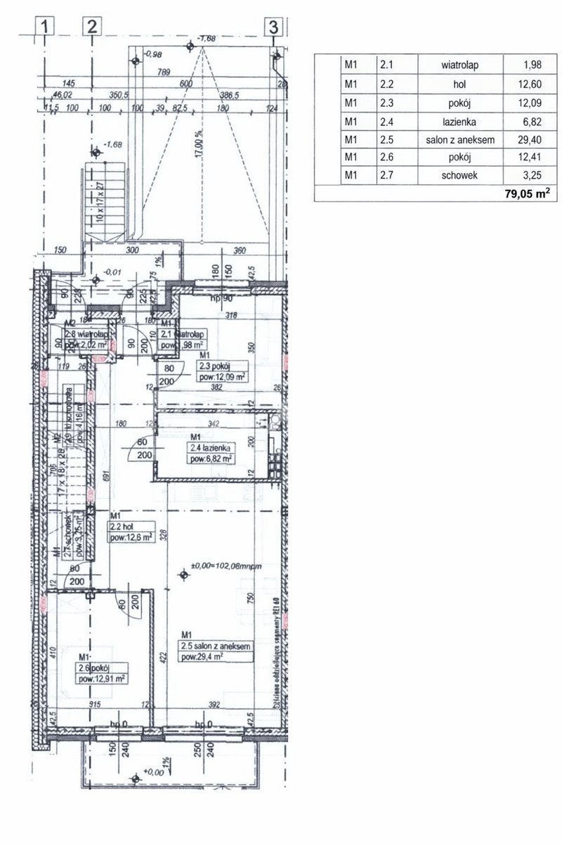
Mieszkanie na sprzedaż - 79,05 m2, 3 pokoje

Powierzchnia:
79,05 m2
Liczba pokoi:
3 pokoje
Piętro:
0 / 1
Czynsz:
0,00 zł
Typ mieszkania:
Mieszkanie
Stan wykończenia:
Deweloperski
Ogrzewanie:
Gazowe
Rynek:
pierwotny
Dostępne od:
09-02-2026
Powierzchnie dodatkowe:
  • ogród 120,00 m2
  • komórka
Udogodnienia:
Parking:
  • podziemny 2x 50 000 zł
Numer oferty:
63900/MS/MAX

Pomieszczenia

Wysokość:
270 cm
Powierzchnia salonu:
29,00 m2
Rodzaj kuchni:
Aneks
Liczba łazienek:
1
Liczba toalet:
0
Garderoba:
Tak

Budynek

Rodzaj budynku:
Segment
Rok budowy:
2025
Stan budynku:
Stan deweloperski
Materiał konstrukcyjny:
Pustak ceramiczny
Bezpieczeństwo:
Udogodnienia:

Opis

Na sprzedaż komfortowe 3-pokojowe mieszkanie o powierzchni 79,05 mkw z ogrodem, zlokalizowane na parterze w kameralnym segmencie dwulokalowym (budynek jednorodzinny dwulokalowy).

Nieruchomość posiada osobną księgę wieczystą, grunt jest w pełni uregulowany, a mieszkanie mogą nabywać również cudzoziemcy.

Lokal wyróżnia się dwustronną ekspozycją oraz świetnym doświetleniem, z przyjemnym widokiem na sąsiednie ogrody. Dzięki swojej

lokalizacji zapewnia ciszę, przestrzeń oraz poczucie prywatności — zabudowa jednorodzinna i zaciszna, boczna uliczka.

Do mieszkania przynależą:
dwa miejsca parkingowe rodzinne (na dwa auta) i przestrzeń na komórkę – zakup obligatoryjny płatne dodatkowo 50.000 zł. 
Indywidualny projekt inwestycji. 
To idealne miejsce dla osób, które chcą mieszkać spokojnie, blisko natury, a jednocześnie 19 km od centrum Warszawy — z dobrym, szybkim dojazdem.
Dwustronny układ zapewnia naturalne światło przez cały dzień oraz widok na zieleń.
Bez podatku PCC 2%.

Budynek

kameralna zabudowa jednorodzinna
segment dwulokalowy – tylko 2 mieszkania w budynku
indywidualny projekt, przemyślana architektura
brak części wspólnych generujących wysokie koszty
dużo prywatności, spokojne sąsiedztwo
dwa miejsca parkingowe rodzinne + przestrzeń magazynowa w garażu
możliwość zakupu przez obcokrajowców
grunt uregulowany, pełna własnośćZapraszam do zapoznania się ze szczegółami oferty i na prezentacje nieruchomości.

Lokalizacja

Jedna z najbardziej pożądanych części wschodniej Warszawy: zielona, bardzo dobrze skomunikowana, z pełną infrastrukturą i szybkim dojazdem do centrum.
Atuty lokalizacji:
✔ 19 km do centrum Warszawy – szybki dojazd trasą S17 i dalej S2/S8
✔ wygodny dostęp do komunikacji autobusowej (bezpośrednie linie do SKM / centrum)
✔ cicha, boczna uliczka – brak ruchu tranzytowego
✔ duże odstępy między domami, zabudowa tylko jednorodzinna
Pełna infrastruktura w najbliższej okolicy:
✔ szkoły i przedszkola
✔ sklepy, supermarkety, piekarnie
✔ przychodnie, apteki
✔ restauracje, punkty usługowe
✔ bezpieczna, rodzinna okolica
Natura i rekreacja:
✔ Mazowiecki Park Krajobrazowy – idealny na spacery i rower
✔ liczne tereny zielone i ścieżki biegowe
✔ place zabaw, boiska, ścieżki pieszo-rowerowe
Lokalizacja nieruchomości na mapie może być przybliżona

Plan

Zapraszamy do kontaktu

Michał Gadziała

Starszy Specjalista ds. Nieruchomości

Zadzwoń:

Zainteresowała Cię nasza oferta lub szukasz podobnej nieruchomości? Zapraszamy do kontaktu!



Oferty w pobliżu

0%
909 000 zł

10 311 zł/m2

88 m2

4 pokoje

Tylko u nas
Apartamenty pod świerkami | ogródek
Warszawa, Wesoła , Fabryczna
940 000 zł

11 598 zł/m2

81 m2

3 pokoje

Tylko u nas
0%
Narożne Mieszkanie z Ogrodem Ciche Osiedle Las
Warszawa, Wesoła , ul. Armii Krajowej
2 099 000 zł

12 917 zł/m2

163 m2

5 pokoi

Tylko u nas
0%
5 pokoi - ogródek - las - SKM
Warszawa, Wawer , ul. Zagórzańska
1 251 480 zł

13 568 zł/m2

92 m2

5 pokoi

Tylko u nas
Rembertów mieszkanie na piętrze, blisko PKP
Warszawa, Rembertów , ul. Markietanki
1 150 000 zł

15 520 zł/m2

74 m2

3 pokoje

1/11
Wizualizacja