Czteropokojowy apartament z dwoma balkonami

Warszawa, Ursynów, ul. Bokserska

1 509 281 zł

17 836 zł/m2

0% PROWIZJI

Mieszkanie na sprzedaż - 84,62 m2, 4 pokoje

Powierzchnia:
84,62 m2
Liczba pokoi:
4 pokoje
Piętro:
6 / 7
Czynsz:
b.d.
Typ mieszkania:
Apartament
Stan wykończenia:
Deweloperski
Ogrzewanie:
CO miejskie
Rynek:
pierwotny
Dostępne od:
15-04-2026
Powierzchnie dodatkowe:
  • balkon francuski
Udogodnienia:
  • winda
Parking:
  • garaż 1x 45 000 zł
Numer oferty:
63535/MS/MAX

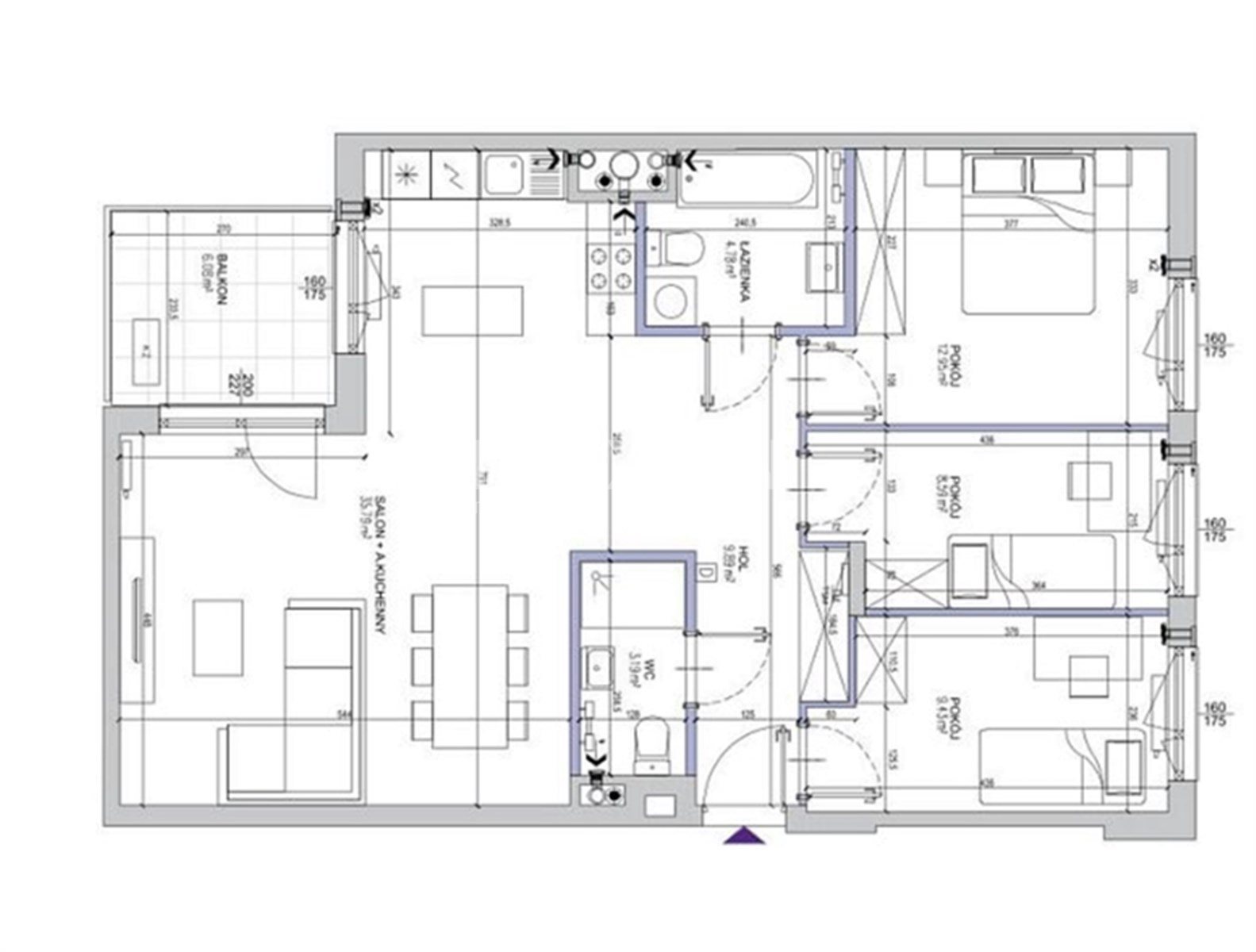
Pomieszczenia

Wysokość:
b.d.
Powierzchnia salonu:
35,79 m2
Rodzaj kuchni:
Aneks
Liczba łazienek:
1
Liczba toalet:
1
Garderoba:
Nie

Budynek

Rodzaj budynku:
Apartamentowiec
Rok budowy:
2026
Stan budynku:
W budowie
Materiał konstrukcyjny:
Rama H
Bezpieczeństwo:
  • domofon
  • monitoring
  • ochrona
  • ogrodzony teren
  • dzwi / okna antywłamaniowe
Udogodnienia:
  • plac zabaw

Opis

Oferujemy Państwu jasne przestrzenne i bardzo dobrze zaprojektowane komunikacyjnie mieszkanie na nowoczesnym osiedlu w okolicy Galerii Mokotów. Mieszkanie znajduje się na 6 piętrze, co zapewnia ciszę i komfort.
Opis mieszkania:
Powierzchnia to bardzo duży, ustawny salon z aneksem kuchennym, 3 pokoje, łazienka, oddzielne wc i przestronny balkon (6,08). Ekspozycja południowa i zachodnia – dzięki której mieszkanie jest jasne i pełne naturalnego światła.
Salon + A. kuchenny 35,79
Pokój 12,59
Pokój 8,59
Pokój 9,43
Łazienka 4,78
WC 3,19
Hol 9,89

Wyposażenie: 
Drzwi antywłamaniowe, światłowód, złącze RTV.
Udogodnienia w budynku:
Winda, system kontroli dostępu przez aplikację mobilną, monitoring i ochrona.
Garaż podziemny jest dwukondygnacyjny z nowoczesnym systemem odczytu tablic rejestracyjnych. Dostępne są miejsca tradycyjne, rodzinne, a także szersze miejsca komfortowe oraz przestrzeń na boxy rowerowe.
Udogodnienia na terenie:
Plac relaksu, plac zabaw i siłownia plenerowa. Deweloper zadbał również o ekologiczne rozwiązania takie jak panele fotowoltaiczne na dachach co pozwoli zapewnić oszczędność przy oświetleniu części wspólnych, energooszczędne oświetlenie LED oraz zbiorniki retencyjne do wody deszczowej do nawadniania zieleni. Bogata roślinność w przestrzeniach wspólnych.
Lokalizacja:
Dogodny dojazd do Południowej Obwodnicy, licznych przystanków autobusowych oraz stacji kolejowej. Kilkunastominutowy dojazd do centrum. Bliskość Galerii Mokotów, Centrum biznesowego na Służewcu oraz obiektów sportowych (kryta pływalnia, siłownie, ścieżki rowerowe), restauracje a także żłobki, przedszkola i szkoły.
Rekreacja i rozrywka:
W okolicy: Park nad Stawem Służewieckim, Park Pawlukiewicza, Dolinka Służewiecka, Pole Mokotowskie. Dostęp do kina, Służewskiego Domu Kultury, szkół tańca, sala zabaw dla dzieci, klubów jeździeckich i innych miejsc sprzyjających rozrywce i aktywnemu wypoczynkowi.
Mieszkanie w tej inwestycji to idealny wybór dla osób ceniących komfort, nowoczesność i świetną lokalizację z łatwym dostępem do terenów zielonych i udogodnień miejskich.

Oferta bez podatku PCC i bez prowizji!


MAXON Nieruchomości jest zewnętrznym biurem sprzedaży dewelopera. Ceny oferowanych nieruchomości są identyczne z cenami jakie oferuje developer. Nasi agenci pomogą wybrać ofertę dopasowaną do Państwa potrzeb i przeprowadzą przez cały proces zakupu nieruchomości. Nie ponosisz żadnych kosztów, możesz tylko zyskać!

Lokalizacja

Lokalizacja nieruchomości na mapie może być przybliżona

Plan

Zapraszamy do kontaktu

Elżbieta Sas-Tatomir

Specjalista ds. Nieruchomości

Zadzwoń:

Zainteresowała Cię nasza oferta lub szukasz podobnej nieruchomości? Zapraszamy do kontaktu!



Oferty w pobliżu

0%
Jasne przestronny apartament czteropokojowy
Warszawa, Ursynów , ul. Bokserska
1 546 260 zł

15 815 zł/m2

98 m2

4 pokoje

0%
Jasne przestronny apartament czteropokojowy
Warszawa, Ursynów , ul. Bokserska
1 639 035 zł

16 764 zł/m2

98 m2

4 pokoje

0%
Jasne, przestrzenne trzypokojowe mieszkanie
Warszawa, Ursynów , ul. Bokserska
1 149 635 zł

16 712 zł/m2

69 m2

3 pokoje

Nowoczesny ładny idealny na inwestycję bez PCC
Warszawa, Ursynów , ul. Nowy Służewiec
915 000 zł

23 165 zł/m2

40 m2

2 pokoje

58mkw/3pok/ogród60mkw/GaleriaMokotów/Lotnisko
Warszawa, Ursynów , ul. Pieskowa Skała
1 050 000 zł

18 172 zł/m2

58 m2

3 pokoje

1/6
Wizualizacja
Wizualizacja
Wizualizacja
Wizualizacja