Bardzo wysokie mieszkanie

Warszawa, Ursus, ul. Karola Taylora

460 000 zł

16 405 zł/m2

TYLKO U NAS

Mieszkanie na sprzedaż - 28,04 m2, 1 pokój

Powierzchnia:
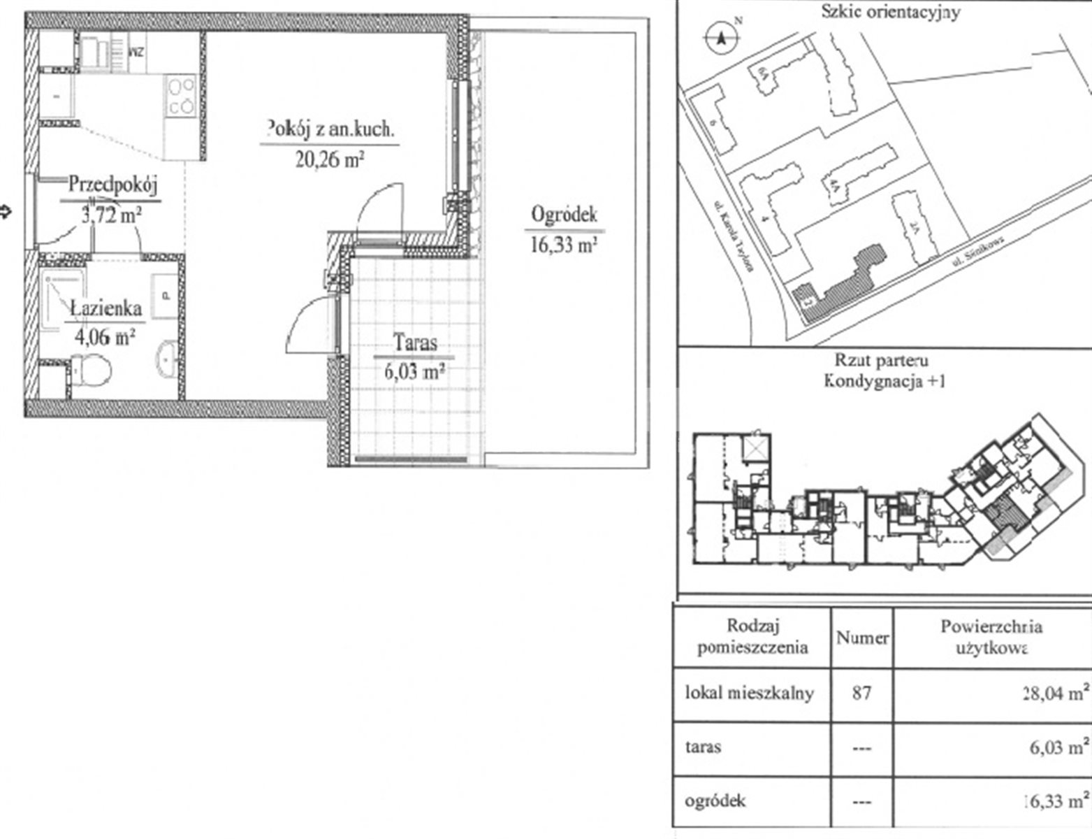
28,04 m2
Liczba pokoi:
1 pokój
Piętro:
0 / 7
Czynsz:
278,43 zł
Typ mieszkania:
Mieszkanie
Stan wykończenia:
Deweloperski
Ogrzewanie:
CO miejskie
Rynek:
wtórny
Dostępne od:
01-10-2025
Powierzchnie dodatkowe:
  • taras 6,03 m2
  • ogród 16,33 m2
Udogodnienia:
  • winda
Numer oferty:
63388/MS/MAX

Pomieszczenia

Wysokość:
380 cm
Powierzchnia salonu:
20,26 m2
Rodzaj kuchni:
Aneks
Liczba łazienek:
1
Liczba toalet:
0
Garderoba:
Nie

Budynek

Rodzaj budynku:
Apartamentowiec
Rok budowy:
2023
Stan budynku:
Idealny
Materiał konstrukcyjny:
Mieszany
Bezpieczeństwo:
  • domofon
  • monitoring
  • ochrona
  • recepcja
  • dzwi / okna antywłamaniowe
Udogodnienia:
  • plac zabaw

Opis

Jasne i przestronne studio

Idealne dla singla, pary lub jako inwestycja pod wynajem w Warszawie!
Główne atuty mieszkania:
• Powierzchnia: ok. 28 mkw
• Wysokość pomieszczeń: imponujące 3,8 m – daje wyjątkowe poczucie przestrzeni, możliwość stworzenia antresoli lub dodatkowej strefy przechowywania
• Ogród ok. 16 mkw
Stan:
• Mieszkanie w stanie deweloperskim – gotowe do wykończenia według własnego projektu i gustu.
• Dzięki wysokim sufitom i dużym oknom można uzyskać efekt nowoczesnego, jasnego i przestronnego wnętrza.
Dodatkowe informacje:
Czynsz administracyjny: ok. 280 zł

Dlaczego warto?
To idealna propozycja dla osób, które szukają mieszkania z potencjałem — do samodzielnego wykończenia lub jako inwestycję pod wynajem.
Nowoczesne, dynamicznie rozwijające się osiedle w zielonej części Ursusa, z doskonałą komunikacją z centrum Warszawy.
Wysokie wnętrza i nowa zabudowa to gwarancja komfortu, stylu i wygody.

Budynek

Nowoczesny budynek z 2024 roku, zaprojektowany z myślą o komforcie mieszkańców:

  • estetyczna, współczesna architektura
  • plac zabaw na terenie osiedla
  • ciche windy, monitoring i kontrola dostępu
  • zadbane części wspólne i zieleń
Zapraszam na prezentację !

Lokalizacja

Znakomita lokalizacja zapewniająca spokój i wygodę:
stacja SKM Ursus Północny – zaledwie kilka minut spacerem, szybki dojazd do centrum Warszawy w ok. 20 minut
• w pobliżu sklepy, punkty usługowe, restauracje i apteki
• w okolicy szkoły, przedszkola i ścieżki rowerowe
• ciche, kameralne osiedle
•  15 minut pieszo do Parku Hassów i Parku Czechowickiego 
Lokalizacja nieruchomości na mapie może być przybliżona

Plan

Zapraszamy do kontaktu

Aleksander Skirmuntt

Ekspert ds. Nieruchomości

Zadzwoń:

Zainteresowała Cię nasza oferta lub szukasz podobnej nieruchomości? Zapraszamy do kontaktu!



Oferty w pobliżu

Tylko u nas
Eleganckie, nowoczesne mieszkanie 3 pok. - URSUS
Warszawa, Ursus , ul. Orląt Lwowskich
1 100 000 zł

18 487 zł/m2

60 m2

3 pokoje

0%
NOWE MIESZKANIA BEZ PROWIZJI BEZ PCC 0%
Warszawa, Ursus , ul. Posag 7 Panien
696 377 zł

16 225 zł/m2

43 m2

2 pokoje

0%
NOWE MIESZKANIA BEZ PROWIZJI BEZ PCC 0%
Warszawa, Ursus , ul. Posag 7 Panien
546 825 zł

17 250 zł/m2

32 m2

1 pokój

Tylko u nas
0%
2/3- pokoje Ursus
Warszawa, Ursus , ul. Bernarda Wapowskiego
599 000 zł

12 038 zł/m2

50 m2

2 pokoje

Tylko u nas
Dwupoziomowe mieszkanie
Warszawa, Włochy , ul. ks. Juliana Chrościckiego
1 150 000 zł

13 353 zł/m2

86 m2

4 pokoje

1/13
Wizualizacja