NOWA CENA! 2 POKOJE Z ODZIELNĄ KUCHNIĄ ŚRÓDMIEŚCIE

Warszawa, Śródmieście, al. Aleja Armii Ludowej

845 000 zł

19 606 zł/m2

TYLKO U NAS

Mieszkanie na sprzedaż - 43,10 m2, 2 pokoje

Powierzchnia:
43,10 m2
Liczba pokoi:
2 pokoje
Piętro:
5 / 8
Czynsz:
749,00 zł
Typ mieszkania:
Rozkładowe
Stan wykończenia:
Dobry
Ogrzewanie:
CO miejskie
Rynek:
wtórny
Dostępne od:
b.d.
Powierzchnie dodatkowe:
  • balkon klasyczny
  • piwnica
Udogodnienia:
  • winda
Numer oferty:
63462/MS/MAX

Pomieszczenia

Wysokość:
275 cm
Powierzchnia salonu:
20,00 m2
Rodzaj kuchni:
Oddzielna
Liczba łazienek:
1
Liczba toalet:
0
Garderoba:
Nie

Budynek

Rodzaj budynku:
Niski blok
Rok budowy:
1962
Stan budynku:
Dobry
Materiał konstrukcyjny:
Mieszany
Bezpieczeństwo:
  • domofon
  • ogrodzony teren
Udogodnienia:

Opis

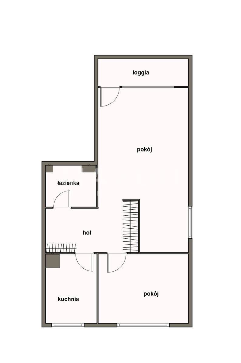
Oferuję bardzo ustawne 2-pokojowe, dwustronne mieszkanie z balkonem, usytuowane na 5 piętrze kamienicy w prestiżowej lokalizacji  Śródmieścia tuż przy Placu Zbawiciela.
Mieszkanie składa się z:

  • salonu o pow. 19 mkw z wyjściem na balkon od strony podwórka
  • sypialni o pow. 9 mkw, 
  • oddzielnej kuchni o pow. 5 mkw,
  • łazienki wyposażonej w wannę i pralkę.
  • holu wejściowego z dwoma szafami wnękowymi,
  • do mieszkania przynależy piwnica o powierzchni 2,8 mkw.

W salonie można wydzielić dodatkowe pomieszczenie na gabinet lub garderobę,

Mieszkanie posiada sprawną miedzianą instalację elektryczną, a na podłodze położony jest drewniany parkiet! 

Lokalizacja czyni to miejsce bardzo atrakcyjnym dla osób ceniących sobie bliskość miejsc kultury, rozrywki i parków. Wokół pełna infrastruktura:  lokale usługowe, sklepy, szkoła, przedszkole.

Bliskość do komunikacji miejskiej:

  • do najbliższej stacji metra Politechnika - 500m,
  • do Pól Mokotowskich - 500m,
  • do Parku Ujazdowskiego i Parku Łazienkowskiego -  500m.
  • do Politechniki Warszawskiej - 500m

Mieszkanie posiada księgę wieczystą. Można wspierać się kredytem.

Zapraszam do kontaktu!

Lokalizacja

Lokalizacja nieruchomości na mapie może być przybliżona

Plan

Zapraszamy do kontaktu

Katarzyna Leśniak

Specjalista ds. Nieruchomości

Zadzwoń:

Zainteresowała Cię nasza oferta lub szukasz podobnej nieruchomości? Zapraszamy do kontaktu!



Oferty w pobliżu

0%
Eleganckie mieszkanie po generalnym remoncie
Warszawa, Śródmieście , ul. Piękna
2 490 000 zł

22 288 zł/m2

112 m2

5 pokoi

Eleganckie 2 pokojowe mieszkanie w kamienicy
Warszawa, Śródmieście , ul. Jana i Jędrzeja Śniadeckich
1 400 000 zł

25 455 zł/m2

55 m2

2 pokoje

Tylko u nas
Cztery pokoje w Centrum
Warszawa, Śródmieście , ul. Żurawia
1 300 000 zł

20 609 zł/m2

63 m2

4 pokoje

Tylko u nas
Serce Mokotowa, parki, tramwaj, niski czynsz
Warszawa, Mokotów , ul. Konduktorska
485 000 zł

20 638 zł/m2

24 m2

1 pokój

0%
Kamienica z historią 0% prowizji Łazienki K.
Warszawa, Mokotów , ul. Stępińska
2 061 381 zł

25 900 zł/m2

80 m2

3 pokoje

1/24