WKD Reguły Mieszkanie z miejscem postojowym

mazowieckie, pruszkowski, Michałowice, Reguły, Wiejska

489 464 zł

12 200 zł/m2

0% PROWIZJI

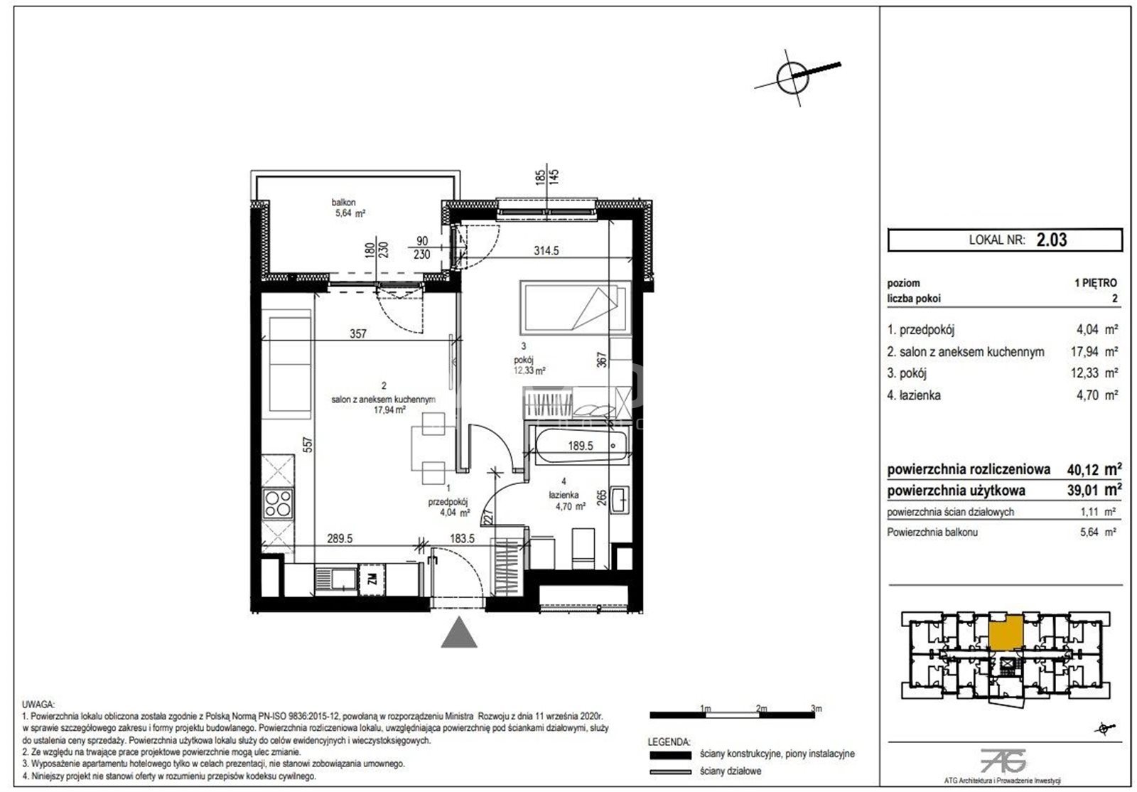
Mieszkanie na sprzedaż - 40,12 m2, 2 pokoje

Powierzchnia:
40,12 m2
Liczba pokoi:
2 pokoje
Piętro:
1 / 3
Czynsz:
b.d.
Typ mieszkania:
Mieszkanie
Stan wykończenia:
Deweloperski
Ogrzewanie:
Gazowe
Rynek:
pierwotny
Dostępne od:
31-01-2026
Powierzchnie dodatkowe:
  • balkon klasyczny
Udogodnienia:
  • winda
Parking:
  • naziemny 1x 30 000 zł
Numer oferty:
63241/MS/MAX

Pomieszczenia

Wysokość:
b.d.
Powierzchnia salonu:
1,00 m2
Rodzaj kuchni:
Aneks
Liczba łazienek:
1
Liczba toalet:
0
Garderoba:
Nie

Budynek

Rodzaj budynku:
Apartamentowiec
Rok budowy:
2026
Stan budynku:
W budowie
Materiał konstrukcyjny:
Mieszany
Bezpieczeństwo:
  • domofon
  • dzwi / okna antywłamaniowe
Udogodnienia:

Opis

Zapraszam do zapoznania się z nową inwestycją, która oferuje mieszkania inwestycyjne, w bliskiej okolicy Warszawy. Obok stacji kolejki WKD Reguły.
Ze względu na MPZP lokale mają status lokali użytkowych. Podana cena zawiera 23 % VAT.

Idealna propozycja dla singla lub pary.

Mieszkanie o powierzchni 39,01 mkw., składa się z pomieszczeń:

  • przedpokój 4,04 mkw.,
  • salon z aneksem kuchennym 17,94 mkw.,
  • pokój 12,33 mkw.,
  • łazienka 4,70 mkw.,

Dużym atutem mieszkania jest balkon o powierzchni 5,64 mkw. 
Jedno miejsce postojowe naziemne dodatkowe płatne 30.000 zł.
Budynek położony jest w spokojnej, zielonej części miasta, obok miejskiego placu zabaw wraz ze Strefą Rekreacji w Regułach.
W bliskim sąsiedztwie inwestycji znajdują się: kolej linii WKD-4 min. pieszo, szkoły, przedszkola, przystanek autobusowy, Urząd Gminy Michałowice, Komisariat Policji czy też Poczta Polska oraz obiekty handlowe.
Okolica jest bardzo dobrze skomunikowana z Warszawą. 
W ramach inwestycji do użytku zostanie oddanych 39 lokali o powierzchni od 24 m2 do 58,50 m2 wraz z miejscami parkingowymi na zewnątrz, windą osobową oraz infrastrukturą towarzyszącą.
Termin zakończenia prac budowlanych planowany jest w I kwartale 2026 roku.


Budynek

Trzypiętrowy budynek z 39 mieszkaniami oraz z miejscami parkingowe naziemnymi.Nowoczesna, cichobieżna i oszczędna winda.
Ogrzewanie z kotłowni gazowej wspólnej dla całego budynku.

MAXON Nieruchomości jest zewnętrznym biurem sprzedaży dewelopera. Ceny oferowanych nieruchomości są identyczne z cenami jakie oferuje developer. Nasi agenci pomogą wybrać ofertę dopasowaną do Państwa potrzeb i przeprowadzą przez cały proces zakupu nieruchomości. Nie ponosisz żadnych kosztów, możesz tylko zyskać!

Lokalizacja

Dobre połączenie do centrum Warszawy – 20 min. samochodem.
Do przystanku kolei WKD – 4 min. pieszo.
Spokojna okolica z zabudową jednorodzinną, po sąsiedzku Otwarta Strefa Rekreacji.
Lokalizacja nieruchomości na mapie może być przybliżona

Plan

Zapraszamy do kontaktu

Monika Nowak

Specjalista ds. Nieruchomości

Zadzwoń:

Zainteresowała Cię nasza oferta lub szukasz podobnej nieruchomości? Zapraszamy do kontaktu!



Oferty w pobliżu

Tylko u nas
Ursus, 2 pokoje gotowe do wprowadzenia
Warszawa, Ursus , ul. Karola Taylora
949 000 zł

18 059 zł/m2

53 m2

2 pokoje

0%
Nowy Ursus - gotowe do wprowadzenia
Warszawa, Ursus , ul. Giserska
1 699 000 zł

18 467 zł/m2

92 m2

4 pokoje

0%
NOWE MIESZKANIA BEZ PROWIZJI BEZ PCC 0%
Warszawa, Ursus , ul. Posag 7 Panien
1 062 591 zł

17 787 zł/m2

60 m2

4 pokoje

0%
NOWE MIESZKANIA BEZ PROWIZJI BEZ PCC 0%
Warszawa, Ursus , ul. Posag 7 Panien
757 330 zł

17 450 zł/m2

43 m2

2 pokoje

0%
NOWE MIESZKANIA BEZ PROWIZJI BEZ PCC 0%
Warszawa, Ursus , ul. Posag 7 Panien
595 772 zł

18 800 zł/m2

32 m2

1 pokój

1/2