2 pokoje Julianów !

mazowieckie, piaseczyński, Piaseczno, Julianów, ul. Urbanistów

602 542 zł

14 600 zł/m2

0% PROWIZJI

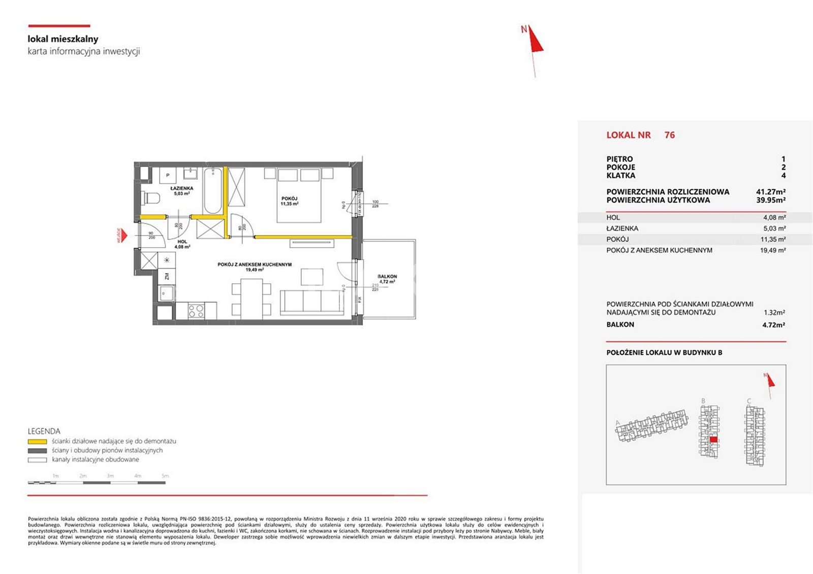
Mieszkanie na sprzedaż - 41,27 m2, 2 pokoje

Powierzchnia:
41,27 m2
Liczba pokoi:
2 pokoje
Piętro:
1 / 3
Czynsz:
b.d.
Typ mieszkania:
Mieszkanie
Stan wykończenia:
Deweloperski
Ogrzewanie:
Inne
Rynek:
pierwotny
Dostępne od:
30-12-2025
Powierzchnie dodatkowe:
  • balkon klasyczny
  • komórka
Udogodnienia:
  • winda
Parking:
  • podziemny 1x 41 000 zł
Numer oferty:
63460/MS/MAX

Pomieszczenia

Wysokość:
266 cm
Powierzchnia salonu:
11,35 m2
Rodzaj kuchni:
Aneks
Liczba łazienek:
1
Liczba toalet:
0
Garderoba:
Nie

Budynek

Rodzaj budynku:
Apartamentowiec
Rok budowy:
2025
Stan budynku:
W budowie
Materiał konstrukcyjny:
Mieszany
Bezpieczeństwo:
  • domofon
  • monitoring
Udogodnienia:

Opis

Zapraszamy do zapoznania się z mieszkaniem na nowym osiedlu położonym w malowniczym otoczeniu.
Lokalizacja osiedla zapewnia dobrą komunikację z Piasecznem jak też z samą Warszawą. Daje spokój i odskocznie od wielkomiejskiego zgiełku.
W okolicy są przystanki autobusowe, przedszkole, szkoła oraz sklepy. (w budowie nowa szkoła 500m od inwestycji)
Dzięki ścieżkom rowerowym można dojechać do Lasu Kabackiego (8min jazdy), Park Zdrojowy w Konstancinie-Jeziornej (16min jazdy) czy Parku Kultury w Powsinie (16min jazdy)
Niedaleko znajdują się:
- Centrum Sportów Lavo (1km)
- Centrum handlowe Auchan (3,5km)
- Centrum handlowe San Park (3,5km)
- Designer Outlet Warszawa (2,5km)
- wjazd na S7 (7,1km)
Opis mieszkania:
-  ustawny pokój  ( 11,35 mkw )
- Salon z aneksem kuchennym (19,49mkw)
- Przestronny hol (3,55mkw)
- Łazienka (5,03 mkw)
-Balkon
Możliwość dokupienia miejsca postojowego w garażu podziemnym oraz komórki w budynku B i C.

PROMOCJA do końca roku na zakup komórki za jedyne 1000 Zł.

W ofercie też inne lokale w tej inwestycji.
Zapraszamy do kontaktu!


Lokalizacja

Lokalizacja nieruchomości na mapie może być przybliżona

Plan

Zapraszamy do kontaktu

Kamila Charlińska

Specjalista ds. Nieruchomości

Zadzwoń:

Zainteresowała Cię nasza oferta lub szukasz podobnej nieruchomości? Zapraszamy do kontaktu!



Oferty w pobliżu

0%
Julianów - 3 pokoje w spokojnej okolicy
Julianów , ul. Urbanistów
748 143 zł

12 100 zł/m2

62 m2

3 pokoje

0%
2 pokoje Julianów !
Julianów , ul. Urbanistów
552 132 zł

14 700 zł/m2

38 m2

2 pokoje

0%
1 163 760 zł

12 000 zł/m2

97 m2

4 pokoje

Tylko u nas
Kompletne i gotowe do zamieszkania !
Józefosław , ul. Radnych
999 000 zł

15 890 zł/m2

63 m2

3 pokoje

Tylko u nas
Genialna lokalizacja , 4 pokoje !
Warszawa, Ursynów , ul. Lasek Brzozowy
819 000 zł

13 811 zł/m2

59 m2

4 pokoje

1/6