Apartament 50m od linii brzegowej 3 pok.Dwa Tarasy
mazowieckie, legionowski, Nieporęt, ul. Zegrzyńska
819 000 zł
10 029 zł/m2
Mieszkanie na sprzedaż - 81,66 m2, 3 pokoje
- 2 tarasy 10,00 m2
- naziemny 1x 0 zł
Pomieszczenia
Budynek
- domofon
- monitoring
- ogrodzony teren
Opis
Apartamentowiec położony w Nieporęcie zaledwie 50m od Zalewu Zegrzyńskiego / Dwa Tarasy / w cenie miejsce postojowe na terenie inwestycji / Gotowiec Inwestycyjny /
Prezentowany trzypokojowy apartament w stanie deweloperskim o pow. 81,86mkw położony jest na 2 piętrze.
Apartament prezentowany posiada południową ekspozycję salonu. Do mieszkania przynależą dwa tarasy z ekspozycją dwustronną, widok na zalew oraz z drugiego tarasu widok na las. Do Tarasu południowego można wejść zarówno z salonu jak i z sypialni.
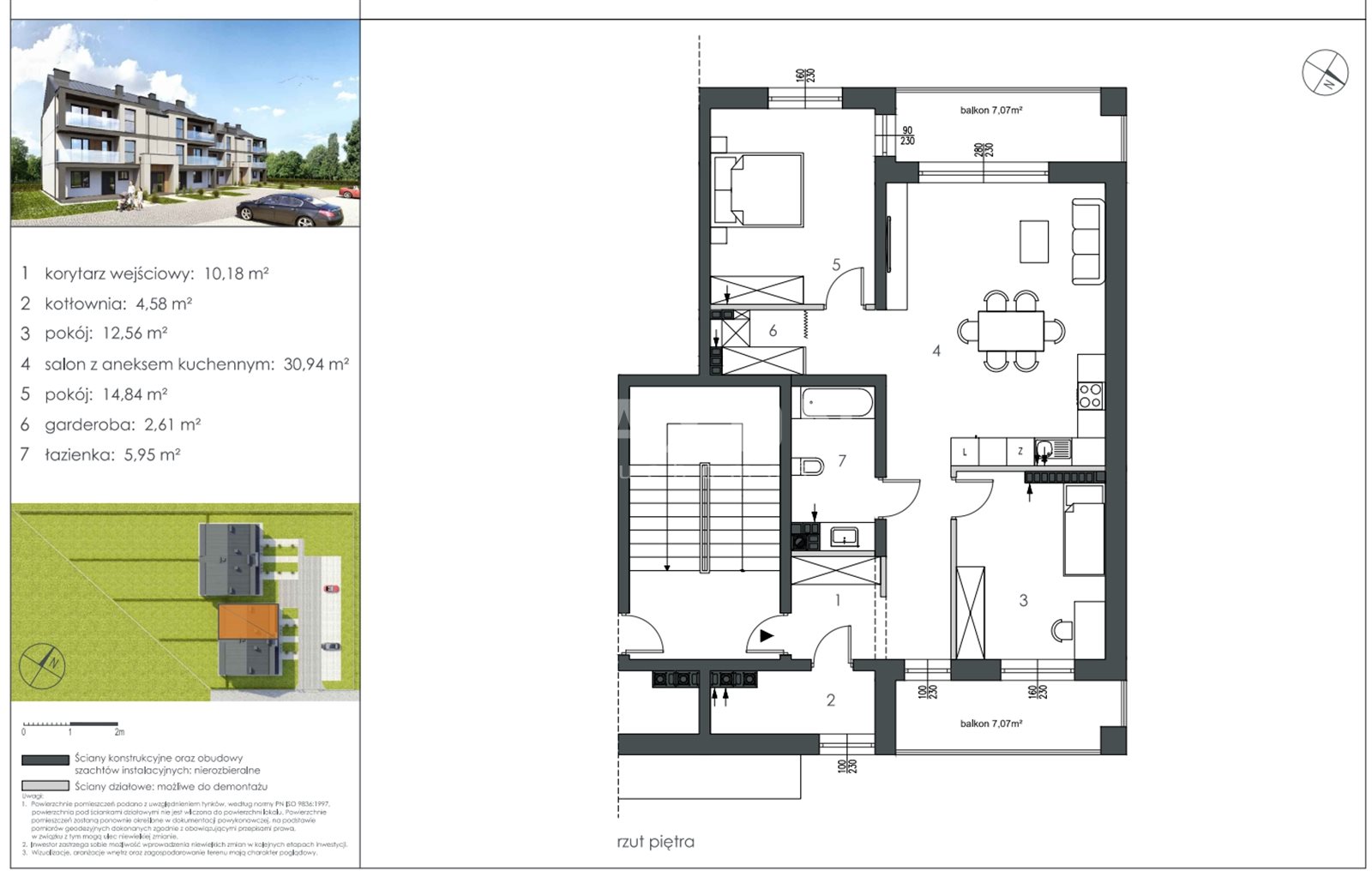
Schemat pomieszczeń:
- korytarz wejściowy - 10,18m
- kotłownia - 4,58m
- pokój dzienny z aneksem kuchennym - 30,94m
- garderoba - 2,61m
- sypialnia - 14,84 m
- sypialnia - 12,56 m
- łazienka - 5,95 m
- taras - 7,30m
- taras - 7,30m
Każdy Apartament wyposażony jest we własny piec gazowy, dzięki temu sami regulujemy ciepło w mieszkaniu.
Media: prąd, woda, gaz.
Apartamentowiec położony jest zaledwie 50m od linii brzegowej Zalewu Zegrzyńskiego. Apartamenty dwustronne z ekspozycją na Zalew i na las.
Cena zakupu podana w ofercie to cena brutto / Wszystkie apartamenty w inwestycji sprzedawane są jako lokale użytkowe. Pozwala to na pełne odliczenie VAT od zakupu oraz wliczenia zakupu lokalu w koszty działalności zgodnie z amortyzacji zarówno dla osób fizycznych, jak i osób prawnych.
Budynek
Budynek apartamentowy. Kameralna inwestycja - tylko 6 lokali w Apartamencie. Budynek dwupiętrowy (bez windy). Malowniczą panoramę zapewniają ogrody oraz zewnętrzne tarasy. Budynek 3 kondygnacyjny, każdy lokal posiada dwa tarasy. Teren zamknięty, ogrodzony.Lokalizacja
Adres inwestycji Nieporęt ul. Zegrzyńska
Lokalizacja:
inwestycja zlokalizowana w środku malowniczych terenów zieleni, przy Zalewie Zegrzyńskim.
Miejsce doskonale skomunikowane z Centrum Warszawy, do którego można dostać się samochodem, jak i kolejką miejską SM, której stacja znajduje się w niewielkiej odległości od inwestycji (Nowa stacja SKM Wieliszew oraz stacja SKM Nieporęt)
Okolica:
- stacja kolejki SKM - 1km
- kąpielisko "Dzika Plaża w Nieporęcie" 1km
- dojście do zalewu ok 50m
Do sprzedaży zostały tylko 3 ostatnie lokale. Budynek gotowy w fazie oddawania do użytkowania.
Wyjątkowa oferta zadzwoń i zobacz.
Zapraszam Dzwon 7 dni w tygodniu (9-21)
Nie pobieramy prowizji od Kupujących !! Zakup bezpośrednio od dewelopera / Cena brutto / FV 23%
Zapraszamy do kontaktu
Zainteresowała Cię nasza oferta lub szukasz podobnej nieruchomości? Zapraszamy do kontaktu!
Apartament 50m od linii brzegowej 3pok.Ogród 100m
11 423 zł/m2
72 m2
3 pokoje
Apartament 50m od linii brzegowej 3 pok.Dwa Tarasy
10 005 zł/m2
82 m2
3 pokoje
Bezczynszowe mieszkanie - dwa poziomy. Blisko PKP!
10 927 zł/m2
64 m2
3 pokoje
Bezczynszowe mieszkanie, ogródek, blisko PKP!
13 128 zł/m2
37 m2
2 pokoje
Mieszkanie 4 pokojowe w Legionowie - NOWA CENA
9 769 zł/m2
78 m2
4 pokoje