Inwestycyjny apartament | uzdrowisko | turystyka
kujawsko-pomorskie, aleksandrowski, Ciechocinek, ul. Widok
544 425 zł
12 750 zł/m2
Mieszkanie na sprzedaż - 42,70 m2, 2 pokoje
Powierzchnia:
42,70 m2
Liczba pokoi:
2 pokoje
Piętro:
2 / 3
Czynsz:
b.d.
Typ mieszkania:
Apartament
Stan wykończenia:
Deweloperski
Ogrzewanie:
Gazowe
Rynek:
pierwotny
Dostępne od:
12-12-2025
Powierzchnie dodatkowe:
- balkon klasyczny
Udogodnienia:
- winda
- klimatyzacja
Numer oferty:
63642/MS/MAX
Pomieszczenia
Wysokość:
270 cm
Powierzchnia salonu:
27,00 m2
Rodzaj kuchni:
Oddzielna
Liczba łazienek:
1
Liczba toalet:
0
Garderoba:
Nie
Budynek
Rodzaj budynku:
Apartamentowiec
Rok budowy:
2025
Stan budynku:
Idealny
Materiał konstrukcyjny:
Mieszany
Bezpieczeństwo:
- domofon
- monitoring
- ochrona
- recepcja
- ogrodzony teren
Udogodnienia:
- concierge
Opis
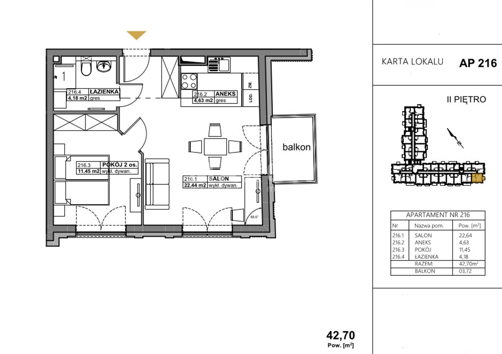
Apartament o powierzchni 42,70 m² znajduje się na 2 piętrze i składa się z:
salonu z aneksem kuchennym o łącznej powierzchni 27 m2,
sypialni 11.45 mkw
łazienki - ok 4 m2
balkonu.
Apartament wyposażony w klimatyzację. Na parterze budynku znajduje się recepcja.
Istnieje możliwość dokupienia miejsca postojowego w podziemnym garażu dwupoziomowym.
Apartament w stanie deweloperskim. Można kupić z wykończeniem w wersji Elegance lub Natural - jaka dodatkowa opcja.
Atuty nieruchomości:
Doskonała lokalizacja pod inwestycję,
Gwarancja ROI,
Klimatyzacja,
Recepcja na parterze,
Cicha i spokojna okolica.
PODANA CENA JEST CENĄ NETTO, NALEŻY DOLICZYĆ 23% VAT!
Budowa podzielona jest na trzy etapy, z których pierwszy rozpoczął się w czerwcu 2024 roku, a jego zakończenie planowane jest na koniec 2025 roku. Generalnym wykonawcą jest firma TOM BUD.
Kupując apartament, masz dwie możliwości: zamieszkanie lub korzystanie z apartamentu w dowolnym terminie, bądź inwestowanie - zarządzanie wynajmem przez doświadczonego Operatora, co pozwala na generowanie przychodów z wynajmu turystom.
Dostępnych jest kilka apartamentów o różnych powierzchniach.
Zapraszam do kontaktu.
Budynek jest nowoczesny, wyposażony w pełną infrastrukturę i strefę aktywnego wypoczynku.📞 Zadzwoń, umów się na prezentację i przekonaj się, że takie miejsca naprawdę istnieją!
salonu z aneksem kuchennym o łącznej powierzchni 27 m2,
sypialni 11.45 mkw
łazienki - ok 4 m2
balkonu.
Apartament wyposażony w klimatyzację. Na parterze budynku znajduje się recepcja.
Istnieje możliwość dokupienia miejsca postojowego w podziemnym garażu dwupoziomowym.
Apartament w stanie deweloperskim. Można kupić z wykończeniem w wersji Elegance lub Natural - jaka dodatkowa opcja.
Atuty nieruchomości:
Doskonała lokalizacja pod inwestycję,
Gwarancja ROI,
Klimatyzacja,
Recepcja na parterze,
Cicha i spokojna okolica.
PODANA CENA JEST CENĄ NETTO, NALEŻY DOLICZYĆ 23% VAT!
Budowa podzielona jest na trzy etapy, z których pierwszy rozpoczął się w czerwcu 2024 roku, a jego zakończenie planowane jest na koniec 2025 roku. Generalnym wykonawcą jest firma TOM BUD.
Kupując apartament, masz dwie możliwości: zamieszkanie lub korzystanie z apartamentu w dowolnym terminie, bądź inwestowanie - zarządzanie wynajmem przez doświadczonego Operatora, co pozwala na generowanie przychodów z wynajmu turystom.
Dostępnych jest kilka apartamentów o różnych powierzchniach.
Zapraszam do kontaktu.
Budynek
Apartamenty Cerelis to nowoczesna inwestycja klasy PREMIUM wyróżniająca się na tle obiektów wczasowych w Ciechocinku., To kameralne osiedle z 84 apartamentami o powierzchni od 24 m² do 50 m². Do dyspozycji mieszkańców na terenie znajduje się ogród z altanami na dachu, recepcja i monitoring, a także garaż podziemny oraz parking. Na parterze znajdą się lokale usługowe, przeznaczone pod gabinety lekarskie oraz specjalistyczne gabinety estetyki ciała.Budynek jest nowoczesny, wyposażony w pełną infrastrukturę i strefę aktywnego wypoczynku.📞 Zadzwoń, umów się na prezentację i przekonaj się, że takie miejsca naprawdę istnieją!
MAXON Nieruchomości jest zewnętrznym biurem sprzedaży dewelopera. Ceny oferowanych nieruchomości są identyczne z cenami jakie oferuje developer. Nasi agenci pomogą wybrać ofertę dopasowaną do Państwa potrzeb i przeprowadzą przez cały proces zakupu nieruchomości. Nie ponosisz żadnych kosztów, możesz tylko zyskać!
Lokalizacja
Doskonała lokalizacja - w centralnej Polsce i w samym sercu uzdrowiska.
Apartament znajduje się w odległości krótkiego spaceru od największych atrakcji Ciechocinka:
Tężni, słynnych dywanów kwiatowych, urokliwego Parku Zdrojowego czy fontanny Grzybek.
W pobliżu znajdziemy również: przychodnię, market Biedronka i PoloMarket, sklep Żabka, Rossman a także restauracje.
Ciechocinek od kilku lat przechodzi rewitalizację i przyciąga wielu turystów i kuracjuszy przez cały rok.
Bogata oferta kulturalna i rekreacyjne dodatkowo sprzyja dużemu zainteresowaniu tym miejscem.
Apartament znajduje się w odległości krótkiego spaceru od największych atrakcji Ciechocinka:
Tężni, słynnych dywanów kwiatowych, urokliwego Parku Zdrojowego czy fontanny Grzybek.
W pobliżu znajdziemy również: przychodnię, market Biedronka i PoloMarket, sklep Żabka, Rossman a także restauracje.
Ciechocinek od kilku lat przechodzi rewitalizację i przyciąga wielu turystów i kuracjuszy przez cały rok.
Bogata oferta kulturalna i rekreacyjne dodatkowo sprzyja dużemu zainteresowaniu tym miejscem.
Lokalizacja nieruchomości na mapie może być przybliżona
Zapraszamy do kontaktu
Zainteresowała Cię nasza oferta lub szukasz podobnej nieruchomości? Zapraszamy do kontaktu!
Apartament inwestycyjny w popularnym kurorcie.
Ciechocinek , ul. Widok
391 380 zł
12 500 zł/m2
31 m2
1 pokój
0%
NOWOCZESNOŚĆ W ZABYTKOWEJ OPRAWIE BEZ PROWIZJI
Łódź , ul. Romualda Mielczarskiego
1 245 450 zł
15 000 zł/m2
83 m2
4 pokoje
0%
TWÓJ LUKSUS TWÓJ SPOKÓJ TWOJE MIEJSCE BEZ PROWIZJI
Łódź , ul. Romualda Mielczarskiego
774 300 zł
15 000 zł/m2
52 m2
2 pokoje
0%
TWÓJ LUKSUS TWÓJ SPOKÓJ TWOJE MIEJSCE BEZ PROWIZJI
Łódź , ul. Romualda Mielczarskiego
548 790 zł
16 500 zł/m2
33 m2
1 pokój