Chylice - działka budowlana - OKAZJA

mazowieckie, piaseczyński, Piaseczno, Chylice, ul. Czesława Miłosza

930 000 zł

588 zł/m2

TYLKO U NAS

Działka na sprzedaż

Podstawowe

Powierzchnia
1 582,00 m2
Ogrodzenie
Brak
Numer oferty
8459/GS/MAX
Szerokość działki
28,00
Długość działki
52,00
Kształt działki
Nieregularny
Działka narożna
Przeznaczenie
Zabudowa jednorodzinna (dom), Zabudowa jednorodzinna (dwulokalowa)
Ukształtowanie działki
Płaska

Stan prawny

Aktualne pozwolenie na budowe
Możliwość podziału
Miejscowy plan zagosp.
Studium
Warunki zabudowy

Media

Woda
Miejska
Prąd
Na działce
Gaz
Kanalizacja
Szambo

Opis

Na sprzedaż oferujemy atrakcyjną działkę budowlaną o powierzchni 1 582 mkw., zlokalizowaną w miejscowości Chylice-Pólko, w gminie Piaseczno.

Nieruchomość położona jest w cichej, zielonej okolicy, w sąsiedztwie domów jednorodzinnych i terenów rekreacyjnych. To miejsce szczególnie polecane rodzinom z dziećmi, które szukają spokoju, a jednocześnie chcą pozostać blisko miasta.

Działka jest wykoszona i gotowa do zabudowy. Do działki doprowadzone są wszystkie niezbędne media: prąd, woda, gaz i kanalizacja. Teren objęty jest miejscowym planem zagospodarowania przestrzennego, który przewiduje zabudowę jednorodzinną, w tym możliwość realizacji budynku dwulokalowego.

Infrastruktura przyjazna rodzinom:

  • Szkoła Podstawowa im. ks. Jana Twardowskiego (ZSP w Chylicach) – ok. 1,5 km,
  • Publiczne i prywatne przedszkola – w Piasecznie, Józefosławiu i okolicach (2–5 km),
  • Blisko sklepy, apteki, punkty usługowe – Lidl, Biedronka i inne w promieniu 2–3 km.

Doskonałe połączenie z Piasecznem (ok. 4 min samochodem) oraz Warszawą (25–30 minut). W pobliżu przystanki autobusów miejskich (linie 710, L23, L24, L53) oraz bezpłatna linia gminna P-2. W niedalekiej odległości znajduje się także stacja PKP Piaseczno, oferująca szybki dojazd do centrum stolicy.

Podstawowe dane o działce:

  • Lokalizacja: Województwo Mazowieckie, Powiat Piaseczyński, Gmina Piaseczno, miejscowość Pólko,
  • Identyfikator działki (Teryt): 141804_5.0031,
  • Klasy gleby: RIVa, RV,
  • Media: woda, kanalizacja, gaz, prąd, Internet,
  • KW: jest, obciążona,
  • Dostęp do komunikacji miejskiej: autobus,
  • Dojazd: droga powiatowa,
  • Rodzaj drogi: asfaltowa, ostatnie 100 m droga o nawierzchni szutrowej.

Stan planistyczny:

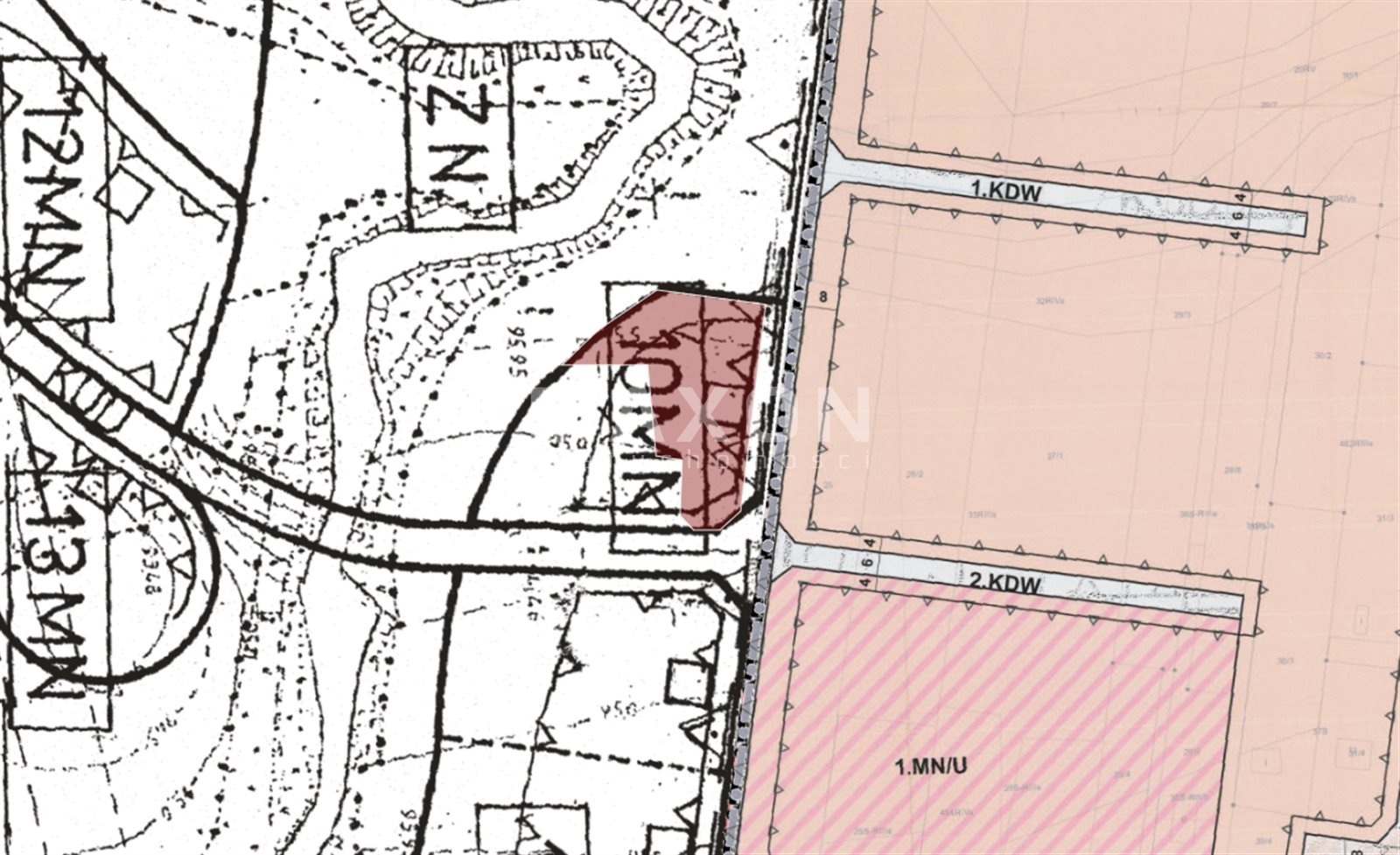
  • MPZP uchwała nr 818/XXXVI/2001 Rady Miejskiej w Piasecznie z dnia 28 lutego 2001 r.,
  • Oznaczenie w planie "10MN",
  • Przeznaczenie działki: zabudowa jednorodzinna wolnostojąca, dwulokalowa,
  • Przeznaczenie dopuszczalne: usługi nieuciążliwe towarzyszące w zabudowie mieszkaniowej, wbudowane w obiekty mieszkalne lub wolnostojące na działkach mieszkaniowych,
  • Nieprzekraczalna wysokość zabudowy wynosi 10 m od poziomy terenu do najwyższego punktu budynku,
  • Obowiązek utrzymania 75% terenów biologicznie czynnych na działce.

Działka graniczy z malowniczym biegiem rzeki Jeziorka, będącej lewym dopływem Wisły o długości ok. 66 km. W południowej części Chylic‑Pólko rzeka łączy się z dopływem Perełka, tworząc wyjątkowy krajobraz sprzyjający spacerom i wypoczynkowi na łonie natury.

Poglądowe zdjęcia udostępnione za pomocą: 

Google, My Maps (Google), e-mapa, geoportal, SIP, BIP, OnGeo.

Serdecznie zapraszam na prezentację nieruchomości w dogodnym dla Państwa terminie.
Jeśli macie Państwo pytania, proszę pisać i dzwonić.

Pracuję od poniedziałku do soboty w godzinach 7-19.

Lokalizacja

Lokalizacja nieruchomości na mapie może być przybliżona

Zapraszamy do kontaktu

Michał Narkiewicz

Dyrektor ds. Gruntów inwestycyjnych i działek

Zadzwoń:

Zainteresowała Cię nasza oferta lub szukasz podobnej nieruchomości? Zapraszamy do kontaktu!



Oferty w pobliżu

Tylko u nas
Chylice - działka budowlana SUPER CENA
Chylice , ul. Czesława Miłosza
980 000 zł

652 zł/m2

1 503 m2

2 989 200 zł

150 zł/m2

19 928 m2

Tylko u nas
0%
5 350 000 zł

1 349 zł/m2

3 966 m2

0%
2 100 000 zł

1 091 zł/m2

1 924 m2

1 660 000 zł

800 zł/m2

2 075 m2

1/24