Dworek duża działka staw

mazowieckie, wołomiński, Wołomin, ul. Graniczna

4 500 000 zł

7 745 zł/m2

TYLKO U NAS

Dom na sprzedaż - 581,00 m2, 10 pokoi

Powierzchnia:
581,00 m2
Liczba pokoi:
10 pokoi
Rodzaj zabudowy:
Wolnostojący
Stan wykończenia:
Dobry
Rynek:
wtórny
Udogodnienia:
  • basen
  • kominek
Numer oferty:
13102/DS/MAX

Pomieszczenia

Powierzchnia salonu:
50,00 m2
Rodzaj kuchni:
Oddzielna
Powierzchnia kuchni:
15,00 m2
Liczba łazienek:
3
Liczba toalet:
2
Garderoba:
Tak
Komórka:
Tak

Budynek

Rok budowy:
2000
Liczba kondygnacji:
2
Materiał konstrukcyjny:
Pustak ceramiczny
Ogrzewanie:
gazowe
Dach:
Dachówka ceramiczna
Rodzaj okien:
antywłamaniowe
Wpis do rejestru zabytków:
Nie
Bezpieczeństwo:
  • alarm
Powierzchnie dodatkowe:
  • balkon klasyczny
  • taras 1,00 m2

Działka i otoczenie

Powierzchnia działki:
6 302,00 m2
Kształt działki:
Prostokąt
Ogrodzenie:
Mieszane
Droga dojazdowa:
Asfaltowa
Media:
  • prąd: tak
  • gaz: tak
  • woda: Miejska
  • kanalizacja: Miejska

Opis

Na sprzedaż oferujemy niepowtarzalny dom, wybudowany w 2000 roku, utrzymany w narodowo-romantycznym stylu charakterystycznym dla willowego budownictwa dwudziestolecia międzywojennego. Architektura budynku, mocno osadzona w tradycji polskiej, łączy elegancję historycznych form z funkcjonalnością współczesnego domu rodzinnego.

Dom położony jest w doskonałej lokalizacji w Wołominie, a jednocześnie otoczony naturą — bezpośrednio graniczy z Rezerwatem Grabicz, co zapewnia wyjątkowe połączenie wygody miasta z bliskością przyrody.

Rezydencja jest parterowa, częściowo podpiwniczona, z użytkowym poddaszem. Została zaprojektowana w zwartej, reprezentacyjnej bryle o układzie zbliżonym do litery T – z częścią mieszkalną oraz skrzydłem o przeznaczeniu gospodarczo-rekreacyjnym. Front zdobi okazały ganek wsparty na kolumnach z trójkątnym szczytem, a elewację boczną wzbogaca półokrągły taras, również wsparty na kolumnach. Od strony ogrodu zaprojektowano nastrojowy kominek zewnętrzny.

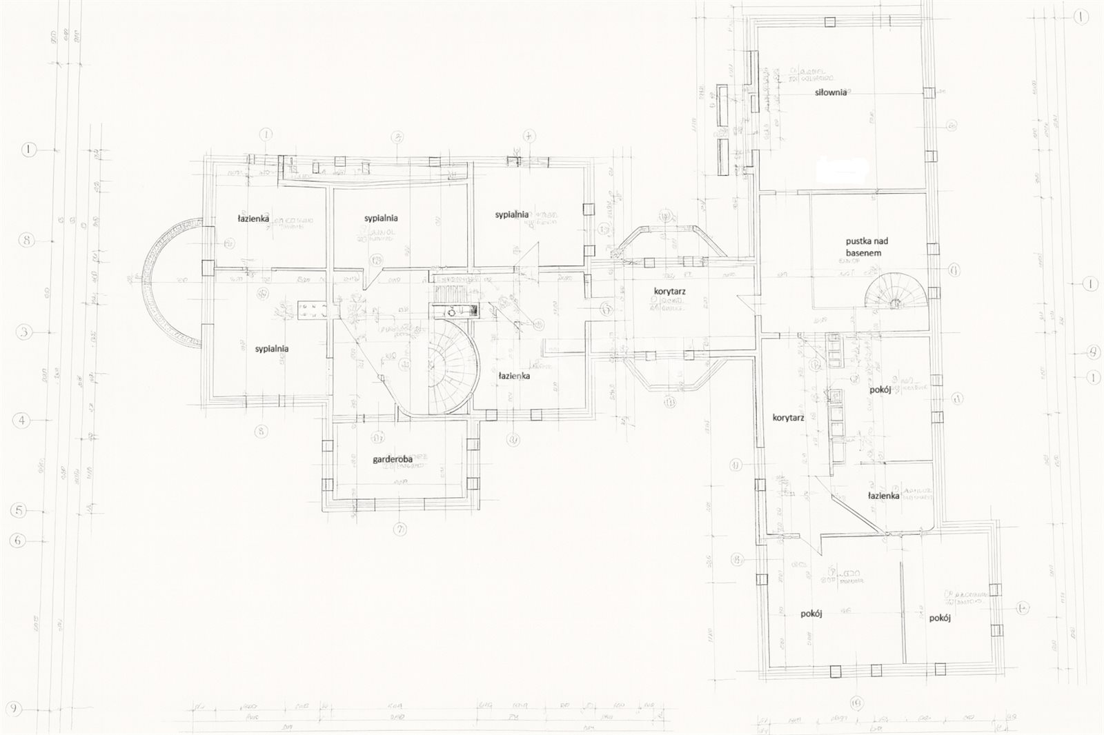
ROZKŁAD POMIESZCZEŃ: 

W piwnicy przewidziano liczne pomieszczenia gospodarcze, kotłownię, zaplecze techniczne basenu, spiżarnię, pralnię z suszarnią, wc oraz dużą salę rekreacyjną z kominkiem i barkiem. Niezależne wejście do kotłowni umożliwia dostęp z zewnątrz, a dwie klatki schodowe łączą podpiwniczenie z częścią mieszkalną i basenową.

Parter oferuje reprezentacyjny układ pomieszczeń: sień, hall, wc, schowek, kuchnię, jadalnię, salon z częścią kominkową, gabinet, oranżerię w łączniku prowadzącym do skrzydła rekreacyjnego oraz w skrzydle bocznym salę basenu, łazienkę, pomieszczenie gospodarcze oraz obszerny garaż.

Na poddaszu znajdują się hall, sypialnia główna z własną łazienka i garderobą, dwie sypialnie oraz łazienka. Możliwe jest zagospodarowanie w części nad basenem kolejnych 3 pokoi i łazienki.

Część rekreacyjna/basenowa nie została wykończona, istnieje możliwość jej wykorzystania z innym przeznaczeniem.

Dom położony jest na dużej działce 6302 mkw. Na działce znajduje się staw o powierzchni ok 600 mkw., altana grillowa oraz domek gospodarczy.

LOKALIZACJA:

Wołomin to dynamicznie rozwijające się miasto położone tuż obok Warszawy, oferujące wygodę miejskiej infrastruktury przy jednoczesnym zachowaniu spokojnego, kameralnego charakteru. Znane z dobrej komunikacji, licznych szkół, sklepów i terenów rekreacyjnych, stanowi atrakcyjne miejsce do życia dla osób poszukujących balansu między bliskością stolicy a spokojem przedmieść.

☎️Zadzwoń i umów się na prezentację

Lokalizacja

Lokalizacja nieruchomości na mapie może być przybliżona

Plan

Film

 

Zapraszamy do kontaktu

Krzysztof Kosowski

Specjalista ds. Nieruchomości

Zadzwoń:

Zainteresowała Cię nasza oferta lub szukasz podobnej nieruchomości? Zapraszamy do kontaktu!



Oferty w pobliżu

0%
619 000 zł

10 567 zł/m2

59 m2

5 pokoi

539 000 zł

9 727 zł/m2

55 m2

3 pokoje

Tylko u nas
Segment | 5 pokoi | ogródek
Kobyłka , ul. Bolesława Prusa
1 300 000 zł

10 833 zł/m2

120 m2

5 pokoi

Tylko u nas
Wolnostojący 3 min S8 dojazd do W-wy 15 min
Kobyłka , ul. Bolesława Prusa
2 519 000 zł

14 955 zł/m2

168 m2

4 pokoje

0%
1 075 000 zł

6 555 zł/m2

164 m2

5 pokoi

1/66