Nowoczesny dom 5 pok w Wilanowie

Warszawa, Wilanów

1 549 000 zł

10 466 zł/m2

0% PROWIZJI

Dom na sprzedaż - 148,00 m2, 5 pokoi

Powierzchnia:
148,00 m2
Liczba pokoi:
5 pokoi
Rodzaj zabudowy:
Segment skrajny
Stan wykończenia:
Stan deweloperski
Rynek:
pierwotny
Udogodnienia:
  • kominek
Numer oferty:
12753/DS/MAX

Pomieszczenia

Powierzchnia salonu:
37,00 m2
Rodzaj kuchni:
Otwarta
Powierzchnia kuchni:
7,00 m2
Liczba łazienek:
2
Liczba toalet:
3
Garderoba:
Tak
Komórka:
Nie

Budynek

Rok budowy:
2025
Liczba kondygnacji:
3
Materiał konstrukcyjny:
Pustak
Ogrzewanie:
pompa ciepła
Dach:
Blacha
Rodzaj okien:
pcv
Wpis do rejestru zabytków:
Nie
Bezpieczeństwo:
  • alarm
  • domofon
Powierzchnie dodatkowe:

Działka i otoczenie

Powierzchnia działki:
382,00 m2
Kształt działki:
Ogrodzenie:
Mieszane
Droga dojazdowa:
Asfaltowa
Media:
  • prąd: tak
  • gaz: nie
  • woda: Miejska
  • kanalizacja: Szambo

Opis

Nowoczesny dom na kameralnym osiedlu – komfort, przestrzeń i doskonała lokalizacja!
Kupujący nie płaci prowizji oraz podatku PCC.
Szczegóły oferty:
- Powierzchnia całkowita lokalu: 148 mkw
- Powierzchnia działki: 382 mkw
- Powierzchnia ogródka: 254 mkw
Stan deweloperski – zakończenie budowy w grudniu 2025 r. 
Oferta przedstawia wizualizację jak można urządzić wnętrze salonu z kuchnią.
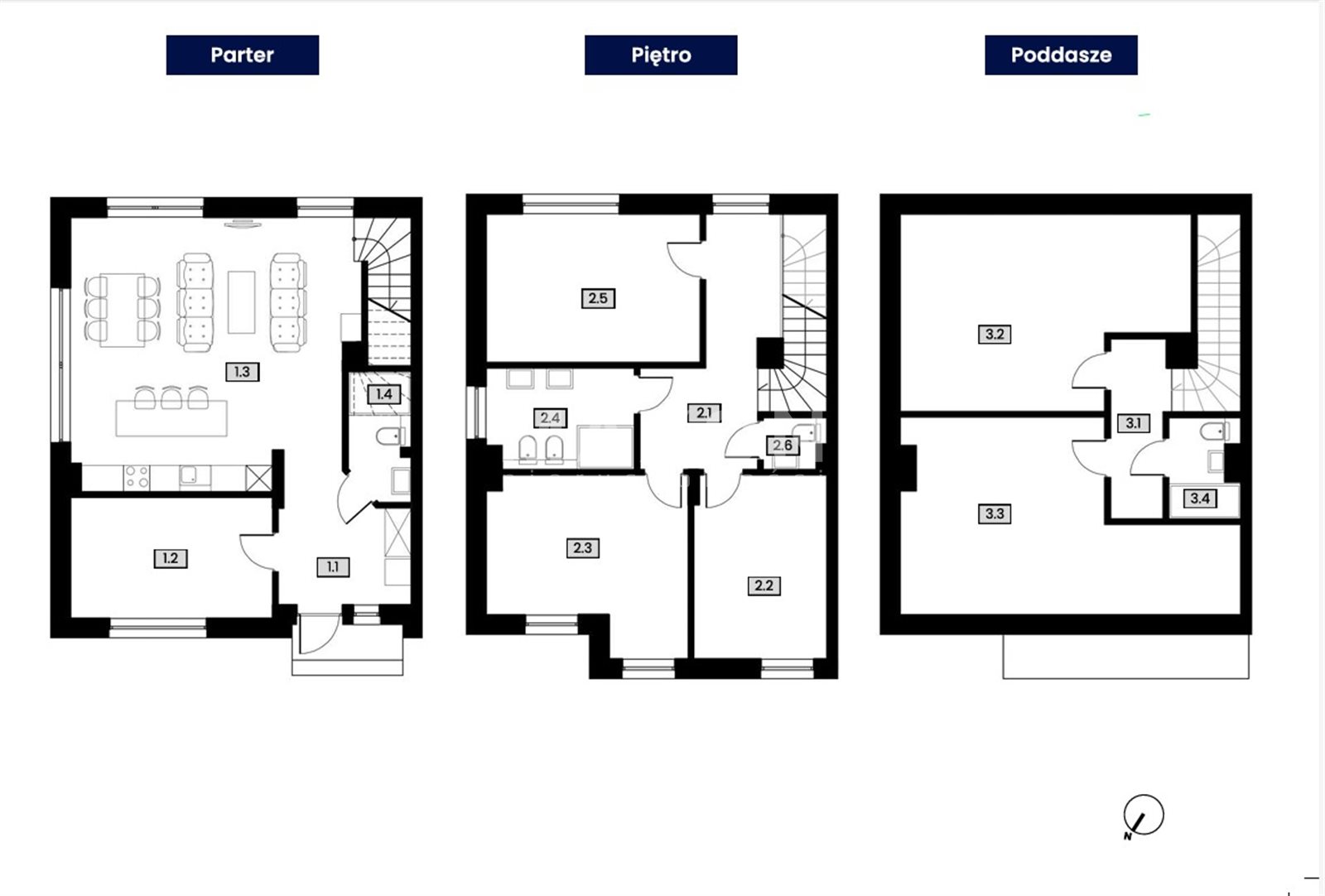
PARTER:
hol, gabinet, salon z aneksem kuchennym, łazienka 
PIĘTRO:
- pokój 1, pokój 2, pokój 3, łazienka, WC, komunikacja 
PODDASZE – do własnej aranżacji:
pokój, pokój, łazienka, komunikacja 
Przed budynkiem znajduje się podjazd, na którym można zaparkować 2 samochody.

OKOLICA
- Kameralne, zamknięte osiedle z niską zabudową w cichej i zielonej okolicy
- W pobliżu:
- Szkoły, przedszkola (w tym międzynarodowe: amerykańska, niemiecka, francuska, angielska)
- stacja benzynowa, punkty usługowe, sklepy: Biedronka w Powsinie, centrum handlowe Vis à Vis, liczne lokalne sklepy
- Przychodnia
- Jezioro, tereny zielone, Park Kultury w Powsinie i las Kabacki
KOMUNIKACJA
✔ 25-30 minut samochodem do centrum Warszawy
✔ Bliskość Południowej Obwodnicy Warszawy zapewnia wygodny dojazd do wszystkich dzielnic, lotniska i poza miasto
✔ Autobusy z dogodnym połączeniem do metra Kabaty, metra Wilanowska i Ursynowa

MEDIA
- Woda miejska
- Pompa ciepła powietrzna
- Prąd
- Zbiornik na nieczystości ciekłe
- Ogrzewanie podłogowe
ATUTY INWESTYCJI:
- Położenie w prestiżowej dzielnicy Wilanów, w spokojnej i zielonej okolicy Powsina
- 5 pokoi z możliwością adaptacji na 7 pokoi
- Nowoczesne rozwiązania: pompa ciepła i ogrzewanie podłogowe
- Prywatny ogródek oraz zamknięte osiedle
- Dogodna komunikacja – bliskość przystanku autobusowego, metra Kabaty
- Szybki dojazd do centrum miasta oraz Południowej Obwodnicy Warszawy
- W sąsiedztwie tereny rekreacyjne: Las Kabacki, Park Kultury w Powsinie, Park Zdrojowy w Konstancinie
- Bliskość renomowanych szkół i przedszkoli (polskich oraz międzynarodowych)
- Wygodny dostęp do sklepów 
- Szeroka oferta rekreacyjna: ścieżki rowerowe, basen, korty tenisowe, park linowy, plac zabaw, jezioro i łąki
- usługi medyczne: przychodnia, szpital Medicover
Dom idealnie sprawdzi się dla rodzin poszukujących przestrzeni i spokoju w otoczeniu natury, a jednocześnie blisko miasta. To również świetna opcja inwestycyjna pod wynajem.
📞 Zapraszam do kontaktu i na prezentację! Dostępne są inne domy w tej inwestycji.  

MAXON Nieruchomości jest zewnętrznym biurem sprzedaży dewelopera. Ceny oferowanych nieruchomości są identyczne z cenami jakie oferuje developer. Nasi agenci pomogą wybrać ofertę dopasowaną do Państwa potrzeb i przeprowadzą przez cały proces zakupu nieruchomości. Nie ponosisz żadnych kosztów, możesz tylko zyskać!

Lokalizacja

Lokalizacja nieruchomości na mapie może być przybliżona

Zapraszamy do kontaktu

Karolina Karaszewska

Specjalista ds. Nieruchomości

Zadzwoń:

Zainteresowała Cię nasza oferta lub szukasz podobnej nieruchomości? Zapraszamy do kontaktu!



Oferty w pobliżu

4 000 000 zł

11 905 zł/m2

336 m2

6 pokoi

4 000 000 zł

11 905 zł/m2

336 m2

6 pokoi

7 000 000 zł

15 556 zł/m2

450 m2

8 pokoi

0%
Dom Wilanów
Warszawa, Wilanów
4 900 000 zł

10 103 zł/m2

485 m2

6 pokoi

Tylko u nas
0%
Wolnostojący dom na pięknej dużej działce
Warszawa, Wilanów , ul. Prętowa
2 700 000 zł

12 465 zł/m2

217 m2

6 pokoi

1/6