ogródek - las - komunikacja miejska

Warszawa, Wawer

1 498 815 zł

15 530 zł/m2

0% PROWIZJI

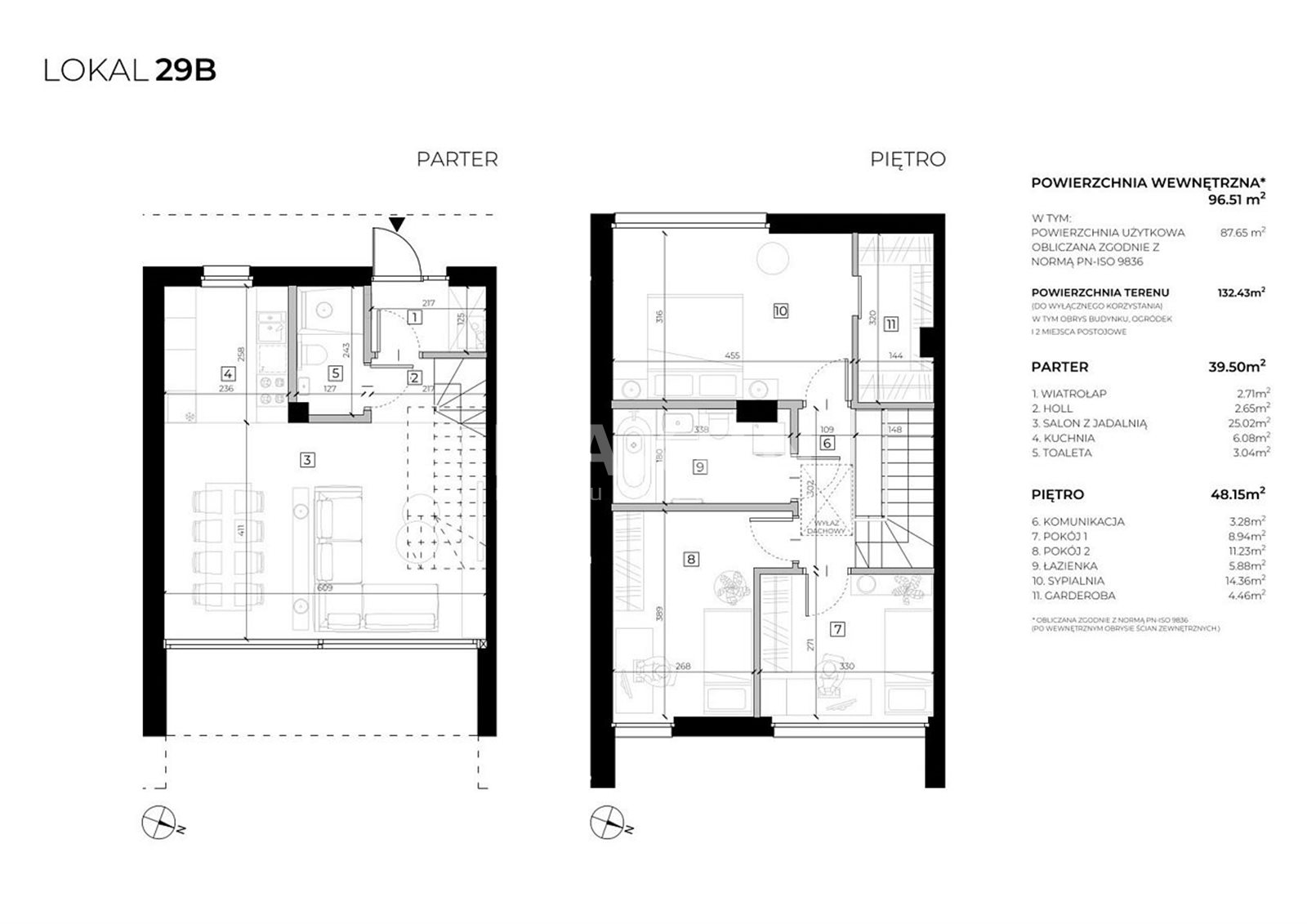
Dom na sprzedaż - 96,51 m2, 4 pokoje

Powierzchnia:
96,51 m2
Liczba pokoi:
4 pokoje
Rodzaj zabudowy:
Bliźniak
Stan wykończenia:
W budowie
Rynek:
pierwotny
Udogodnienia:
Numer oferty:
13248/DS/MAX

Pomieszczenia

Powierzchnia salonu:
25,02 m2
Rodzaj kuchni:
Oddzielna
Powierzchnia kuchni:
6,08 m2
Liczba łazienek:
2
Liczba toalet:
1
Garderoba:
Tak
Komórka:
Nie

Budynek

Rok budowy:
2026
Liczba kondygnacji:
1
Materiał konstrukcyjny:
Żelbeton
Ogrzewanie:
gazowe
Dach:
Papa
Rodzaj okien:
aluminiowe
Wpis do rejestru zabytków:
Nie
Bezpieczeństwo:
Powierzchnie dodatkowe:
  • balkon francuski

Działka i otoczenie

Powierzchnia działki:
124,66 m2
Kształt działki:
Prostokąt
Ogrodzenie:
Mieszane
Droga dojazdowa:
Asfaltowa
Media:
  • prąd: tak
  • gaz: tak
  • woda: Miejska
  • kanalizacja: Miejska

Opis

Szukasz nowoczesnej bryły w otoczeniu, z bliskim dostępem do centrum miasta? Ta inwestycja jest dla Ciebie!


0% prowizji od kupującego

Zapraszam do zapoznania się z ofertą kameralnego osiedla bliźniaków, zlokalizowanego w bliskim Wawrze, na granicy z Gocławiem.
Inwestycja jest w trakcie budowy, a zostało już jedynie 5 wolnych domów. Wszystkie z własnym ogródkiem i świetnym rozkładem.
Powyższy dom ma powierzchnię całkowitą 96,51 mkw., a użytkową 87,65 mkw., usytuowany na działce o powierzchni 124,66 mkw. i składa się z :

Parteru:

  • salon z jadalnią (25,02 mkw.)
  • otwarta kuchnia (6,08 mkw.)
  • WC
  • hol
  • wiatrołap

Piętra:

  • 2 wygodne sypialnie (14,36 mkw. oraz 11,23 mkw.)
  • gabinet
  • przestronna garderoba
  • łazienka
  • hol

Atutami nieruchomości są bez wątpienia:

  • funkcjonalność projektu oraz jego nowoczesny design
  • komfortowe i przestronne wnętrza
  • własny ogródek – idealne rozwiązanie dla osób szukających domów z własną przestrzenią w Warszawie
  • duże przeszklenia i przestronne tarasy
  • wysokie pomieszczenia – 2,85 m na parterze i 2,65 m na piętrze
  • bezkonkurencyjne aluminiowe duże okna
  • ogrzewanie podłogowe w całym domu
  • praktyczne boxy na rowery, motocykle, kosiarki, meble ogrodowe i inne niezbędne rzeczy
  • każdy dom posiada gniazdka do stacji ładowania pojazdów elektrycznych, co jest wygodnym rozwiązaniem dla obecnych i przyszłych użytkowników aut elektrycznych
  • możliwość montażu paneli fotowoltaicznych, co pozwala na realne oszczędności na rachunkach za prąd i wspiera ekologiczne rozwiązania
  • piękna i zielona okolica - rozległe lasy Wawra oferują wiele możliwości czynnego wypoczynku
  • 2 miejsca postojowe przed budynkiem
  • szybki dojazd komunikacja miejską: pętla autobusowa Gocław 02 (w planie stacja metra i przystanek tramwajowy), centrum handlowe Promenada, szkoła podstawowa i przedszkola oddalone od osiedla o 1,2 km
  • planowane zakończenie inwestycji to grudzień 2026 roku.

Serdecznie zapraszam do kontaktu!

Maxon Nieruchomości jest zewnętrznym biurem sprzedaży dewelopera. Ceny oferowanych nieruchomości są identyczne z cenami jakie oferuje developer. Nasi agenci pomogą wybrać ofertę dopasowaną do Państwa potrzeb i przeprowadzą przez cały proces zakupu nieruchomości. Nie ponosisz żadnych kosztów, możesz tylko zyskać!

Lokalizacja

Lokalizacja nieruchomości na mapie może być przybliżona

Plan

Zapraszamy do kontaktu

Oliwia Szymanek

Specjalista ds. Nieruchomości

Zadzwoń:

Zainteresowała Cię nasza oferta lub szukasz podobnej nieruchomości? Zapraszamy do kontaktu!



Oferty w pobliżu

0%
1 498 815 zł

15 530 zł/m2

97 m2

4 pokoje

0%
1 629 801 zł

15 640 zł/m2

104 m2

4 pokoje

0%
4 800 000 zł

10 357 zł/m2

463 m2

21 pokoi

Tylko u nas
0%
Kamienica I Inwestycja I Rozbudowa-kilka lokali.
Warszawa, Praga-Południe , ul. Sulejkowska
2 149 000 zł

9 768 zł/m2

220 m2

8 pokoi

1 199 000 zł

1 998 zł/m2

600 m2

15 pokoi

1/11