Domy | Mokotów | BREEAM | 160 mkw | 3 miejsca park

Warszawa, Mokotów

3 970 000 zł

25 033 zł/m2

0% PROWIZJI

Dom na sprzedaż - 158,59 m2, 7 pokoi

Powierzchnia:
158,59 m2
Liczba pokoi:
7 pokoi
Rodzaj zabudowy:
Bliźniak
Stan wykończenia:
W budowie
Rynek:
pierwotny
Udogodnienia:
Numer oferty:
13257/DS/MAX

Pomieszczenia

Powierzchnia salonu:
29,72 m2
Rodzaj kuchni:
Oddzielna
Powierzchnia kuchni:
14,40 m2
Liczba łazienek:
3
Liczba toalet:
1
Garderoba:
Tak
Komórka:
Nie

Budynek

Rok budowy:
2026
Liczba kondygnacji:
2
Materiał konstrukcyjny:
Żelbeton
Ogrzewanie:
pompa ciepła
Dach:
Papa
Rodzaj okien:
drewniane (nowy typ)
Wpis do rejestru zabytków:
Nie
Bezpieczeństwo:
Powierzchnie dodatkowe:
  • taras

Działka i otoczenie

Powierzchnia działki:
121,59 m2
Kształt działki:
Prostokąt
Ogrodzenie:
Mieszane
Droga dojazdowa:
Asfaltowa
Media:
  • prąd: tak
  • gaz: nie
  • woda: Miejska
  • kanalizacja: Miejska

Opis

..:: Mokotów | Domy | 160 mkw | Zieleń | 3 poziomy | 3 miejsca parkingowe | certyfikat BREEAM ::

0% od KUPUJĄCEGO

w ofercie zostało 6 domów

  • 158,59 mkw - 3.970.000 PLN
  • 162,13 mkw - 4.100.000 PLN
  • 162,54 mkw - 4.160.000 PLN
  • 163,52 mkw - 4.130.000 PLN
  • 163,52 mkw - 4.140.000 PLN
  • 162,56 mkw - 4.060.000 PLN

prezentowany lokal - cena lokalu 3.790.000 PLN + cena pomieszczeń przynależnych 180.000 PLN

Wskaźnik EP projektu - 30,9 kWh/m2*rok

Dwanaście domów zaprojektowanych z myślą o wysokim poziomie prywatności i wygody.
Domy zostały zaprojektowane tak, by prezentować się nowocześnie i elegancko, a jednocześnie zapewnić ich mieszkańcom poczucie prywatności oraz wygodę codziennego życia.
- drewniana stolarka okienna
- ceramika na elewacji
- jasne pomieszczenia
- ogrzewanie podłogowe
- funkcjonalne przestrzenie
- certyfikat jakości BREEAM „very good”
Domy zostały wyposażone w nowoczesne rozwiązania tj.: pompy ciepła 9kW, system rekuperacji, panele fotowoltaiczne 3,2kWp, system smart home Appartme, ładowarki elektryczne 7,4kW.

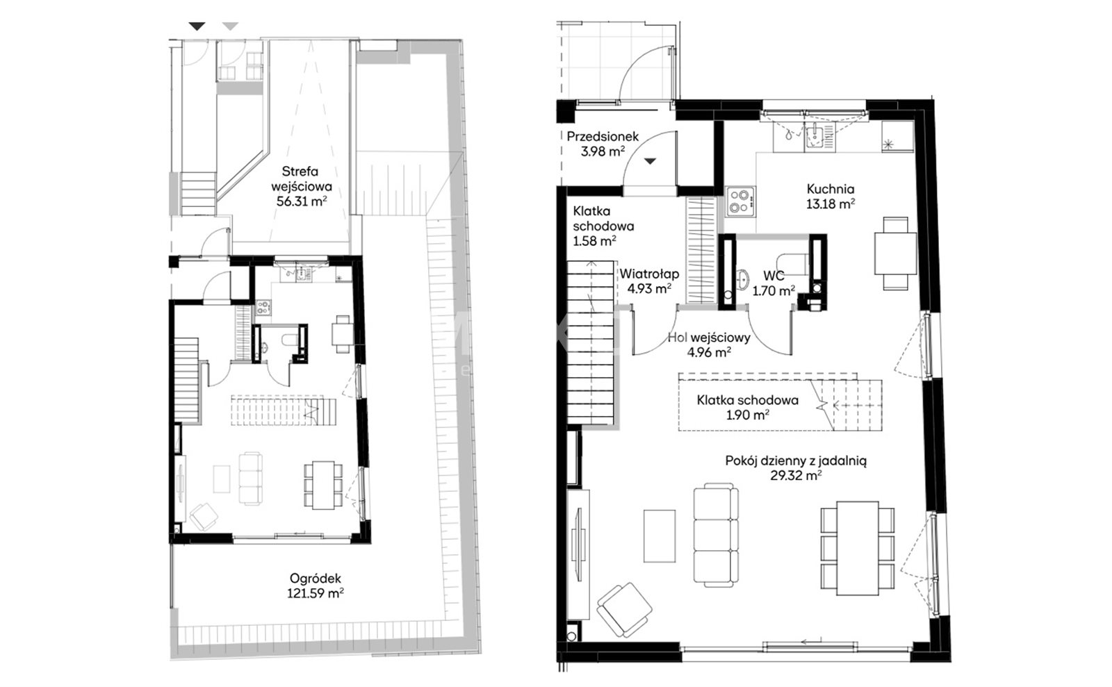
ROZKŁAD POMIESZCZEŃ:

Ogród o powierzchni ponad 120 mkw, garaż na 3 samochody.

Parter:

  • Pokój dzienny z jadalnią,
  • kuchnia,
  • toaleta,
  • przedsionek,
  • wiatrołap,
  • hol.

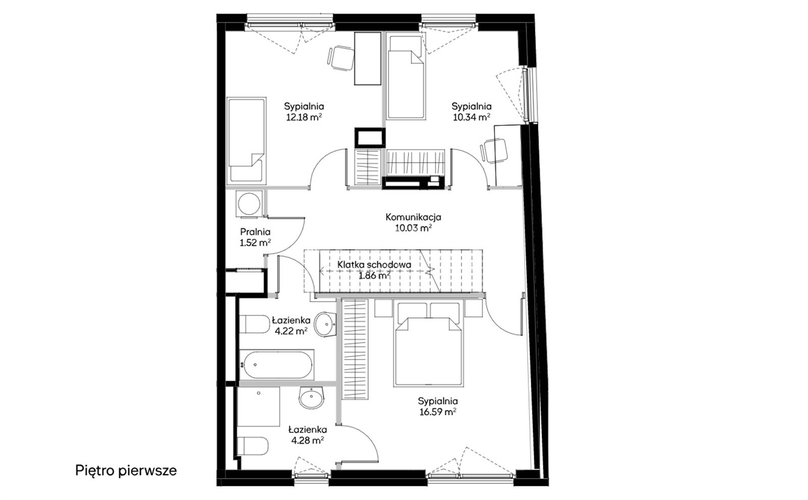
Pierwsze piętro:

  • 3 sypialnie,
  • 2 łazienki,
  • pralnia.

Drugie piętro:

  • Pokój dzienny,
  • sypialnia,
  • łazienka,
  • gabinet,
  • 2 tarasy.

Unikalne osiedle mieszkalne, położone w spokojnej, zielonej okolicy, zaledwie kilkanaście minut od centrum Warszawy. Cechuje się niską, kameralną zabudową.
Park Enklawa: nieopodal osiedla rozciąga się park, idealny na spacery, jogging czy relaks na powietrzu.
Zielone skwery, które zapewniają mieszkańcom dodatkową przestrzeń do wypoczynku i rekreacji.
Infrastruktura: w okolicy znajdują się sklepy, szkoły, restauracje i obiekty sportowe.
Unikatowe sąsiedztwo: umiejscowione poniżej zabytkowej Królikarni i jej Parku Arkadia.

*Powierzchnia całkowita obejmuje powierzchnię użytkową, powierzchnię kondygnacji podziemnej, na której znajdować się będzie garaż (68.79 m2), a także powierzchnie: pod ściankami działowymi, klatki schodowej oraz przedsionka (25.64 m2)

Lokalizacja

Lokalizacja nieruchomości na mapie może być przybliżona

Zapraszamy do kontaktu

Aleksandra Szalej

Starszy Specjalista ds. Nieruchomości

Zadzwoń:

Zainteresowała Cię nasza oferta lub szukasz podobnej nieruchomości? Zapraszamy do kontaktu!



Oferty w pobliżu

Tylko u nas
Unikatowa nieruchomość Metro Wilanowska!
Warszawa, Mokotów , al. Aleja Wilanowska
2 990 000 zł

15 294 zł/m2

196 m2

4 pokoje

0%
Apartament w domu dwurodzinnym z dużym tarasem
Warszawa, Wilanów , Winogronowa
3 226 462 zł

23 368 zł/m2

138 m2

4 pokoje

0%
Apartament w dwurodzinnym domu
Warszawa, Wilanów , Winogronowa
2 668 698 zł

24 164 zł/m2

110 m2

5 pokoi

0%
20 000 000 zł

18 182 zł/m2

1 100 m2

10 pokoi

Tylko u nas
Segment z ogrodem w Wilanowie
Warszawa, Wilanów , ul. Królowej Marysieńki
2 400 000 zł

8 484 zł/m2

283 m2

6 pokoi

1/2