atrakcyjny dom w Głoskowie

mazowieckie, piaseczyński, Piaseczno, Głosków

1 159 900 zł

7 581 zł/m2

0% PROWIZJI

Dom na sprzedaż - 153,00 m2, 5 pokoi

Powierzchnia:
153,00 m2
Liczba pokoi:
5 pokoi
Rodzaj zabudowy:
Bliźniak
Stan wykończenia:
Stan deweloperski
Rynek:
pierwotny
Udogodnienia:
  • kominek
Numer oferty:
12538/DS/MAX

Pomieszczenia

Powierzchnia salonu:
25,00 m2
Rodzaj kuchni:
Aneks
Powierzchnia kuchni:
10,00 m2
Liczba łazienek:
3
Liczba toalet:
0
Garderoba:
Tak
Komórka:
Nie

Budynek

Rok budowy:
2022
Liczba kondygnacji:
2
Materiał konstrukcyjny:
Pustak
Ogrzewanie:
inne
Dach:
Blacha
Rodzaj okien:
pcv
Wpis do rejestru zabytków:
Nie
Bezpieczeństwo:
  • domofon
Powierzchnie dodatkowe:
  • balkon klasyczny

Działka i otoczenie

Powierzchnia działki:
500,00 m2
Kształt działki:
Ogrodzenie:
Mieszane
Droga dojazdowa:
Utwardzona
Media:
  • prąd: tak
  • gaz: tak
  • woda: Miejska
  • kanalizacja: Miejska

Świadectwo charakterystyki energetycznej

Wskaźnik rocznego zapotrzebowania na energię użytkową
46,27 kWh/(m2 rok)
Wskaźnik rocznego zapotrzebowania na energię końcową
60,70 kWh/(m2 rok)
Wskaźnik rocznego zapotrzebowania na nieodnawialną energię pierwotną
68,90 kWh/(m2 rok)
Jednostkowa wielkość emisji CO2
0,01 t CO2/(m2 rok)
Udział odnawialnych źródeł energii w rocznym zapotrzebowaniu na energię końcową
0,00 %

Opis

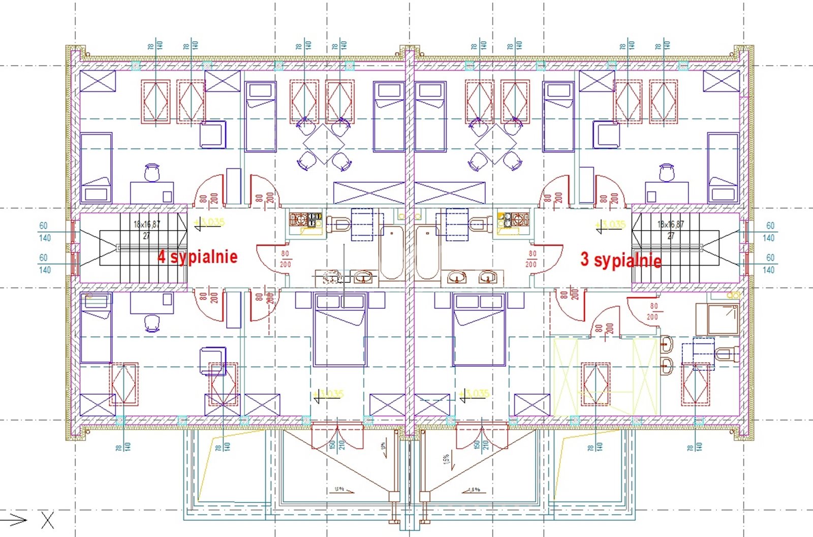
Atrakcyjny dom (bliźniak - ok. 153 mkw) + działka ok. 500 mkw.

Wygodny rozkład wnętrz:

parter 

  • salon z jadalnią i otwartą kuchnią (łącznie ok. 34 mkw), z którego jest wyjście na potencjalny taras i do ogrodu,
  • gabinet (ok. 10 mkw),
  • toaleta (3 mkw),
  • przedpokój
  • garaż (ok. 20 mkw) z bramą automatyczną

+ kotłownia (ok. 4 mkw).

Piętro

  • sypialnia małżeńska (ok. 12 mkw) z własną łazienką (ok. 6 mkw) i garderobą (ok. 4 mkw)
  • dwa pokoje po ok. 14 mkw
  • wspólna łazienka (ok. 6 kw).

W domu jest ogrzewanie podłogowe z rozprowadzoną instalacją do sterowników w pokojach + rekuperacja powietrza. Okna są 3 szybowe (profil Veka), a parapety zewnętrzne są granitowe. Dom ma przygotowaną instalację monitoringu (alarmu wewnętrznego i zewnętrznego), rozprowadzona sieć internetowa + skrzynkę teletechniczna ze światłowodem. Położona jest też instalacja do montażu pompy ciepła i instalacja elektryczna do montażu paneli fotowoltaicznych. Kotłownia przystosowana jest zarówno do pieca gazowego, ale również do pompy ciepła. W garażu jest gniazdo do agregatu prądotwórczego oraz gniazdo do ładowania pojazdów elektrycznych. 

Miejsce parkingowe utwardzone jest kostką brukową. Ogrodzenie działki jest z paneli.

Dom jest blisko szkoły i przystanku autobusowego (ok. 600 m). Zielono, cicho, kameralnie. Głosków jest położony 25 km na południe od centrum Warszawy (blisko nowej trasy S7), w otulinie Chojnowskiego Parku Krajobrazowego.

Zdjęcia mają charakter poglądowy. Polecam!

Lokalizacja

Lokalizacja nieruchomości na mapie może być przybliżona

Plan

Zapraszamy do kontaktu

Oksana Krawczyniuk

Specjalista ds. Nieruchomości

Zadzwoń:

Zainteresowała Cię nasza oferta lub szukasz podobnej nieruchomości? Zapraszamy do kontaktu!



Oferty w pobliżu

Tylko u nas
2 490 000 zł

4 611 zł/m2

540 m2

35 pokoi

0%
1 150 000 zł

5 476 zł/m2

210 m2

5 pokoi

0%
3D
Najbardziej Innowacyjne Domy
Lesznowola , Władysławów
1 197 000 zł

8 938 zł/m2

134 m2

5 pokoi

0%
5 950 000 zł

14 269 zł/m2

417 m2

10 pokoi

0%
4 499 000 zł

30 399 zł/m2

148 m2

5 pokoi

1/14