Dwupokoleniowy Dom pełen słońca, Kampinos

mazowieckie, nowodworski, Czosnów, Cybulice Małe

2 850 000 zł

9 760 zł/m2

Dom na sprzedaż - 292,00 m2, 8 pokoi

Powierzchnia:
292,00 m2
Liczba pokoi:
8 pokoi
Rodzaj zabudowy:
Wolnostojący
Stan wykończenia:
Bardzo dobry
Rynek:
wtórny
Udogodnienia:
  • kominek
Numer oferty:
12647/DS/MAX

Pomieszczenia

Powierzchnia salonu:
60,00 m2
Rodzaj kuchni:
Oddzielna
Powierzchnia kuchni:
12,44 m2
Liczba łazienek:
3
Liczba toalet:
3
Garderoba:
Tak
Komórka:
Nie

Budynek

Rok budowy:
2024
Liczba kondygnacji:
2
Materiał konstrukcyjny:
Mieszany
Ogrzewanie:
ekologiczne
Dach:
Blachodachówka
Rodzaj okien:
pcv
Wpis do rejestru zabytków:
Nie
Bezpieczeństwo:
  • alarm
  • domofon
  • monitoring
Powierzchnie dodatkowe:
  • balkon francuski
  • taras 10,00 m2

Działka i otoczenie

Powierzchnia działki:
1 800,00 m2
Kształt działki:
Prostokąt
Szerokość działki:
30,00 m
Długość działki:
60,00 m
Ogrodzenie:
Mieszane
Droga dojazdowa:
Utwardzona
Media:
  • prąd: tak
  • gaz: nie
  • woda: Studnia
  • kanalizacja: Szambo

Opis

Zapraszamy do zapoznania się z ofertą wyjątkowego, wolnostojącego domu na skraju Puszczy Kampinoskiej.
Dom wybudowany został w 2024r. w stylu klasycznym. Przemyślany rozkład pomieszczeń zapewni komfort całej, nawet 3-pokoleniowej rodzinie. W bryle budynku znajduje się szeroki i dwustanowiskowy garaż. Istotnymi elementami projektu są: wysoki poziom energooszczędności budynku oraz nowoczesne systemy instalacyjne.

Pompa ciepła, fotovoltaika, magazyn energii, mozna wybudować basen.

Całkowity koszt roczny utrzymania domu wynosi 9 tys. PLN.

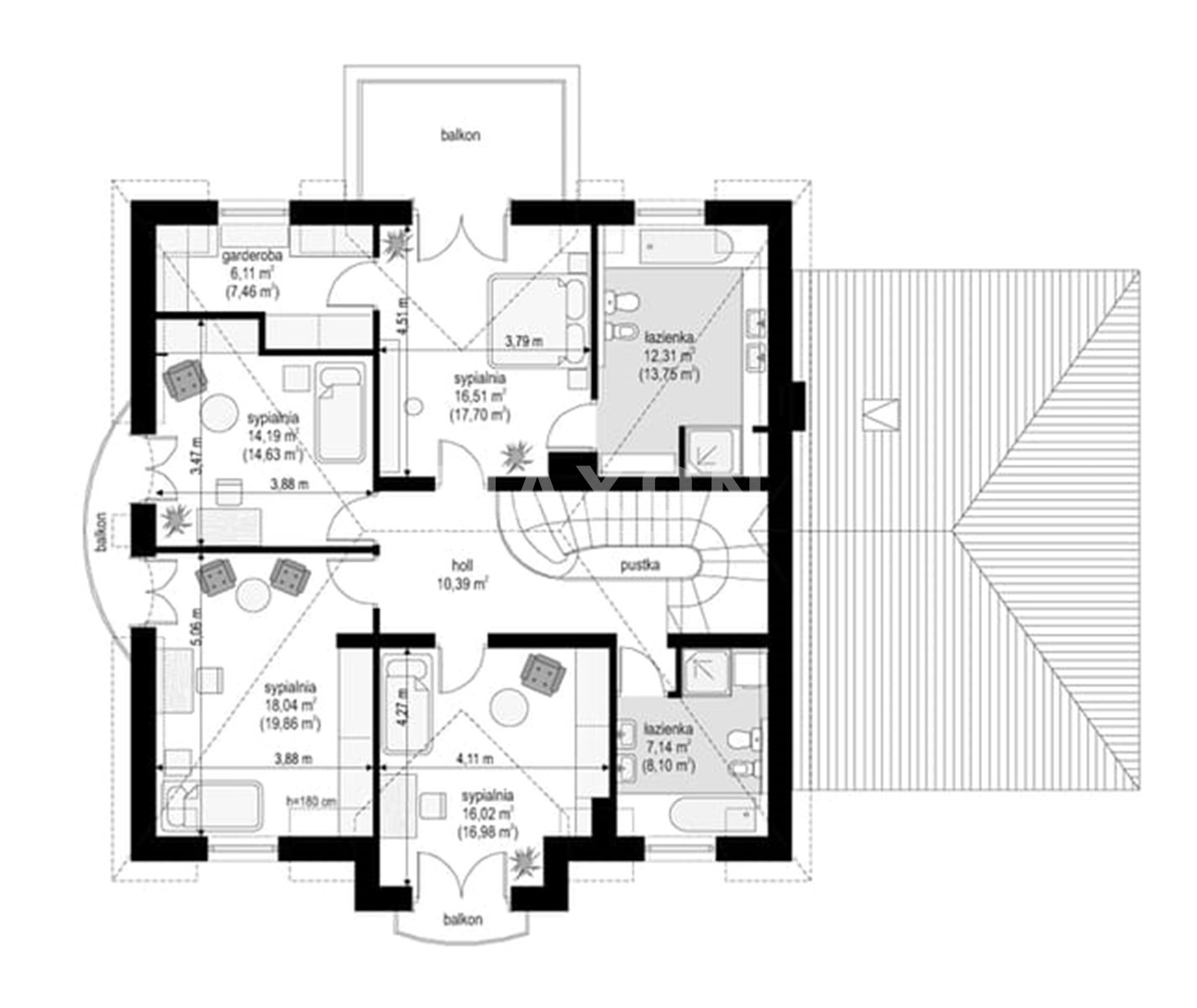
Parter

  • reprezentacyjny, 2-strefowy salon z kominkiem i wyjściem na taras
  • oddzielna kuchnia
  • gabinet i pokój gościnny
  • łazienka z WC i prysznicem

Piętro

  • 4 sypialnie z balkonami,
  • 2 łazienki, w tym jedna połączona z sypialnią i garderobą
  • rozkładowy hol

290 metrowy dom z użytkowym 30 m2 strychem położony jest na działce narożnej, o powierzchni 1800 mkw, co daje możliwość podziału na dwie działki. 
Przed domem jest miejsce do zaparkowania nawet do sześciu samochodów.Piękny widok z okien na las iglasty, lisciasty i łąki.

Jest to spokojna enklawa na obrzeżach Kampinoskiego Parku Narodowego.

Bardzo dobry punkt komunikacyjny:

  • dojazd do S7 zajmuje 4 minuty
  • PKP - 5 km
  • do Łomianek jest 15 minut jazdy
  • stolica jest w odległości ok. 30 minut samochodem - za dwa lata można będzie autostradą dojechąć do Warszawy w kwadrans. 

    Okolica
  • Szkoły podstawowe w odległości ok. 5-6 km, przedszkole 2,5 km, żłobek ok. 5 km
  • Sklepy: Żabka, Carrefour express, Dino do 2,5 km
  • Przychodnia, apteki, banki w pobliskim Czosnowie
  • Hala sportowa, basen, siłownie, centrum handlowe, restauracje

Ten dom będzie idealnym miejscem dla rodziny oraz miłośników przyrody, którzy doceniają wartość świeżego powietrza, przestrzeni i wygodny w załatwianiu spraw urzędowych w nieprzeciążonej gminie.
To wyjątkowe miejsce czeka na nowego właściciela, który doceni jego klimat i wygodę.
Zapraszam na prezentację – przekonaj się, jak wyjątkowy jest ten dom.

         Zapraszam na prezentację gdy chcesz mieć więcej przestrzeni i ciszy.

Lokalizacja

Lokalizacja nieruchomości na mapie może być przybliżona

Plan

Film

 

Zapraszamy do kontaktu

Małgorzata Zapiór

Specjalista ds. Nieruchomości

Zadzwoń:

Zainteresowała Cię nasza oferta lub szukasz podobnej nieruchomości? Zapraszamy do kontaktu!



Oferty w pobliżu

Tylko u nas
0%
2 350 000 zł

9 792 zł/m2

240 m2

5 pokoi

Tylko u nas
Dom przy trasie S7 !
Kazuń Nowy , ul. Zielna
1 660 000 zł

3 284 zł/m2

506 m2

12 pokoi

Tylko u nas
520 000 zł

3 490 zł/m2

149 m2

4 pokoje

Tylko u nas
1 420 000 zł

9 485 zł/m2

150 m2

5 pokoi

0%
0% prowiz Nowy Wykończony
Bieniewice , Sadowa
897 000 zł

4 983 zł/m2

180 m2

4 pokoje

1/28