REZERWACJA

mazowieckie, legionowski, Nieporęt, Stanisławów Pierwszy, ul. Izabelińska

1 090 000 zł

7 956 zł/m2

TYLKO U NAS 0% PROWIZJI

Dom na sprzedaż - 137,01 m2, 4 pokoje

Powierzchnia:
137,01 m2
Liczba pokoi:
4 pokoje
Rodzaj zabudowy:
Wolnostojący
Stan wykończenia:
Stan deweloperski
Rynek:
pierwotny
Udogodnienia:
  • kominek
Numer oferty:
13074/DS/MAX

Pomieszczenia

Powierzchnia salonu:
43,49 m2
Rodzaj kuchni:
Widna
Powierzchnia kuchni:
9,07 m2
Liczba łazienek:
2
Liczba toalet:
2
Garderoba:
Tak
Komórka:
Nie

Budynek

Rok budowy:
2025
Liczba kondygnacji:
1
Materiał konstrukcyjny:
Pustak ceramiczny
Ogrzewanie:
gazowe
Dach:
Blachodachówka
Rodzaj okien:
pcv
Wpis do rejestru zabytków:
Nie
Bezpieczeństwo:
  • alarm
  • domofon
  • monitoring
Powierzchnie dodatkowe:
  • balkon francuski
  • taras 18,00 m2

Działka i otoczenie

Powierzchnia działki:
791,00 m2
Kształt działki:
Ogrodzenie:
Panele ogrodzeniowe
Droga dojazdowa:
Utwardzona
Media:
  • prąd: tak
  • gaz: tak
  • woda: Studnia
  • kanalizacja: Szambo

Opis

REZERWACJA

OKAZJA !!  CENA PROMOCYJNA DO KOŃCA LISTOPADA  / Osiedle Domów Wolnostojących "PROMYK" / OSTATNI GOTOWY DOM / peryferia Warszawy okolice  Białołęka Kobiałka / Dom Parterowy położony na dużej działce o pow. 791mkw / nie musisz chodzić po schodach /

Projekt bardzo przemyślany i niezwykle funkcjonalny. Charakteryzuje się doskonałym rozplanowaniem pomieszczeń oraz dużym i doskonale doświetlonym salonem pow. 44mkw
Dom posiada 4 pokoje, pow.137,01mkw  i jest położony na pięknej działce o pow.791mkw. 

Rozkład pomieszczeń zachwyca !! 

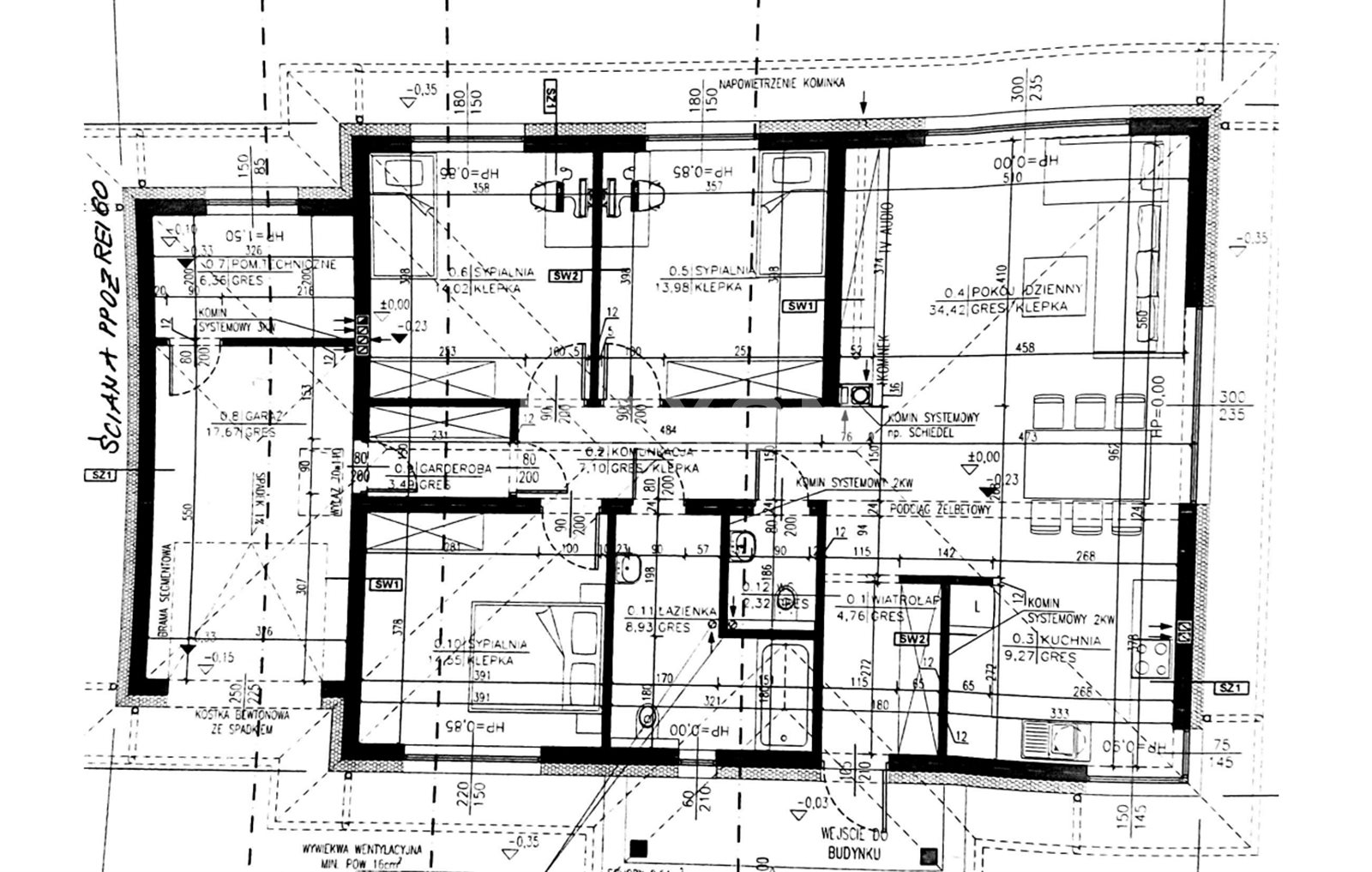
  • PARTER
    wiatrołap (4,76), korytarz (7,10), pokój dzienny z jadalnią  i kuchnią (43,49), sypialnia (14,55), sypialnia (13,98), sypialnia (14,02), garderoba (3,49), salon kąpielowy (9,07), toaleta (2,32), pomieszczenie techniczne (6,36) garaż (17,67)
  • Poddasze - nieużytkowe (schody na poddasze przegubowe)

Wyposażenie:

  • piec gazowy
  • ogrzewanie podłogowe w całym domu ( również garaż i pomieszczenie techniczne)
  • okna panoramiczne w Salonie
  • duże sypialnie
  • bardzo duży salon kąpielowy 
  • oddzielna toaleta z prysznicem
  • drzwi tarasowe przesuwne
  • infrastruktura pod kominek
  • wyprowadzenia pod TV
  • infrastruktura pod domofon
  • infrastruktura pod światłowód 
  • działka ogrodzona z bramą wjazdową i furtką
  • taras od strony ogrodu wyłożony kostką ( ok.18mkw)
  • podjazd do garażu  i wejście do domu wyłożone kostką
  • wyjątkowo szeroki dojazd do budynku
  • możliwość dodatkowego parkowania przy posesji

ATUTY:

  • nie musisz chodzić po schodach (dom parterowy)
  • nietuzinkowy projekt domu
  • doskonałe rozplanowanie pomieszczeń
  • kuchnia  doświetlona z narożnym oknem
  • piękny duży doświetlony Salon
  • piękną duża działka
  • ekspozycja salonu i ogrodu południowa 
  • dom położony w doskonałej lokalizacji (doskonała infrastruktura)
  • mieszkasz na osiedlu nowych domów jednorodzinnych
  • szybki dojazd do Warszawy 
  • szkoła podstawowa z AQUAPARK FALA Nieporęt oraz Liceum Ogólnokształcące tylko 1,5 km od domu (dojazd 4 minuty)
  • sklep NETTO tylko 1km (dojazd 3 minuty)

Media:  prąd , gaz, woda - własne ujęcie, szambo 10m3 

Lokalizacja: 

Doskonałe położenie: peryferia Białołęki Kobiałka / ul. Izabelińska Stanisławów Pierwszy 

Infrastruktura:  szkoła podstawowa z Aquaparkiem, Liceum Ogólnokształcące, oraz przedszkola. W okolicy sklepy, markety spożywcze (Netto, Biedronka, Lidl, Pepco, Rossman, KFC, pizzerie, kebaby, Pizzeria oraz barki z domowym jedzeniem. 

Jest to wspaniałe miejsce dla rodzin ceniących spokój i ciszę a jednocześnie lubiących szybko znaleźć się w Warszawie. 

WYJĄTKOWA OFERTA / Zapraszam na Prezentacje / Kupujący nie płaci PROWIZJI Agencji / Kupujesz BEZ PODATKU  PCC / 

Dzwoń 7 dni w tygodniu (9-21)

Lokalizacja

Lokalizacja nieruchomości na mapie może być przybliżona

Plan

Zapraszamy do kontaktu

Beata Palaszek

Ekspert ds. Nieruchomości

Zadzwoń:

Zainteresowała Cię nasza oferta lub szukasz podobnej nieruchomości? Zapraszamy do kontaktu!



Oferty w pobliżu

Tylko u nas
0%
Dom PREMIUM 241m Działka 500m / Dwa Garaże
Warszawa, Białołęka , ul. Słoneczna
1 499 000 zł

6 216 zł/m2

241 m2

6 pokoi

Tylko u nas
Gotowy dom, spokojna okolica,
Kąty Węgierskie , ul. Olchowa
1 129 000 zł

8 007 zł/m2

141 m2

4 pokoje

0%
1 599 000 zł

6 663 zł/m2

240 m2

6 pokoi

Tylko u nas
0%
Segment / 5 pokoi /Pompa Ciepła /EKO OSTATNI
Warszawa, Białołęka , ul. Płochocińska
929 000 zł

7 444 zł/m2

125 m2

5 pokoi

Tylko u nas
0%
Segment / 5 pokoi /Pompa Ciepła /EKO OSTATNIE
Warszawa, Białołęka , ul. Płochocińska
929 000 zł

7 444 zł/m2

125 m2

5 pokoi

1/15