Lokal z dużymi witrynami. Wejście z chodnika.

Warszawa, Mokotów, Gintrowskiego

5 796 eur

18 eur/m2

0% PROWIZJI

Powierzchnia handlowa na wynajem

Podstawowe

Powierzchnia
322,00 m2
Piętro
0
Numer oferty
1966/PHW/MAX

Warunki handlowe

Czynsz m2
18,00 EUR
Koszty eksploatacyjne m2
32,50
Min. okres najmu (lata)
1

Standard

Klimatyzacja
Wentylacja wymuszona
Otwierane okna
Podwieszane sufity
Podnoszone podłogi
Światłowód

Informacje o budynku

Rok budowy
2006
Parking podziemny
288
Winda

Budynek

Rodzaj budynku
Biurowiec
Stan budynku
Istniejący
Materiał
Mieszany

Bezpieczeństwo

Recepcja
Monitoring
Czujniki dymu
Kontrola dostępu
Tryskacze
Alarm
Ochrona

Opis

Lokal usługowy na parterze. Dostępny od zaraz.

Wejście do lokalu z dużymi witrynami z chodnika.

Wokoł są punkty gastronomiczne i usługowe.

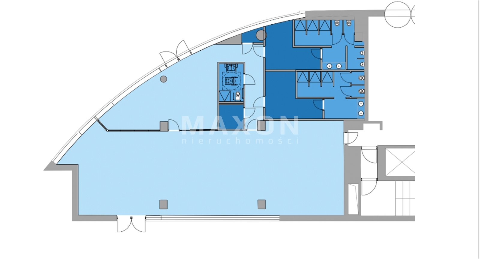
Układ pomieszczeń w lokalu zgodnie z załączonym rzutem powierzchni.

Miesięczny koszt wynajmu około: 36 540pln netto + VAT (dodatkowo media według zużycia).

Cena może ulec zmianie w zależności od okresu najmu lokalu.

Zapraszam do obejrzenia.

Budynek

10-kondygnacyjny budynek biurowy, oferujący około 13 700 m2 powierzchni biurowej do wynajęcia. Budynek zapewnia swoim najemcom 120 naziemnych i 380 podziemnych miejsc parkingowych. W standardzie wykończeń budynku znajdują się m.in.: klimatyzacja, podnoszone podłogi, podwieszane sufity oraz uchylne okna. 

Lokalizacja

Biurowiec położony przy ul. Rzymowskiego. W bliskim sąsiedztwie Centrum handlowe, liczne restauracje, lunch bary i punkty usługowe. Dobra komunikacja z cały miastem. W bezpośrednim sąsiedztwie tramwaj i liczne przystanki autobiusowe z dogodnym dojazdem do stacji metra Wilanowska lub Wierzbno. 
Lokalizacja nieruchomości na mapie może być przybliżona

Zapraszamy do kontaktu

Yurii Bukhtii

Specjalista ds. Nieruchomości

Zadzwoń:

Zainteresowała Cię nasza oferta lub szukasz podobnej nieruchomości? Zapraszamy do kontaktu!



Oferty w pobliżu

0%
lokal na gastronomię
Warszawa, Mokotów , Rzymowskiego Wincentego
11 210 zł

106 zł/m2

106 m2

0%
Lokal handlowo-usługowa. Show-room.
Warszawa, Mokotów , Marynarska
13 394 zł

72 zł/m2

185 m2

0%
Parter z możliwością podłączenia wody
Warszawa, Mokotów , Postępu
3 060 zł

90 zł/m2

34 m2

1 pokój

Lokal pod gastronomię, duże witryny, ogródek.
Warszawa, Mokotów , ul. Puławska
23 899 zł

64 zł/m2

374 m2

0%
Powierzchnia z przeznaczeniem na edukację
Warszawa, Ochota , 1 Sierpnia
20 708 zł

60 zł/m2

345 m2

1/2