Żoliborz - biuro w układzie gabinetowym

Warszawa, Żoliborz, Powązkowska

4 950 eur

14 eur/m2

0% PROWIZJI

Powierzchnia biurowa na wynajem

Podstawowe

Powierzchnia
364,00 m2
Piętro
2
Numer oferty
25069/PBW/MAX

Warunki handlowe

Koszty eksploatacyjne m2
36,00
Czynsz m2
13,60 EUR
Min. okres najmu (lata)
3
Parking podziemny - miejsce
90 EUR

Standard

Klimatyzacja
Wentylacja wymuszona
Otwierane okna
Podwieszane sufity
Podnoszone podłogi
Światłowód
Okablowanie komputer.
Okablowanie elektryczne
Okablowanie telefoniczne

Bezpieczeństwo

Recepcja
Monitoring
Czujniki dymu
Kontrola dostępu
Tryskacze
Alarm
Ochrona

Informacje o budynku

Rok budowy
2002
Pow. biurowa netto
9 200 m2
Pow. typowego piętra
2 500 m2
Współ. pow. wspól. (%)
5,00 %
Kondygnacje naziemne
5
Kondygnacje podziemne
2
Winda
Dostępne w budynku
bankomat, kantyna, kawiarnia, kiosk, myjnia samochodowa
Współ. miejsc parking.
60,00

Budynek

Rodzaj budynku
Biurowiec

Opis

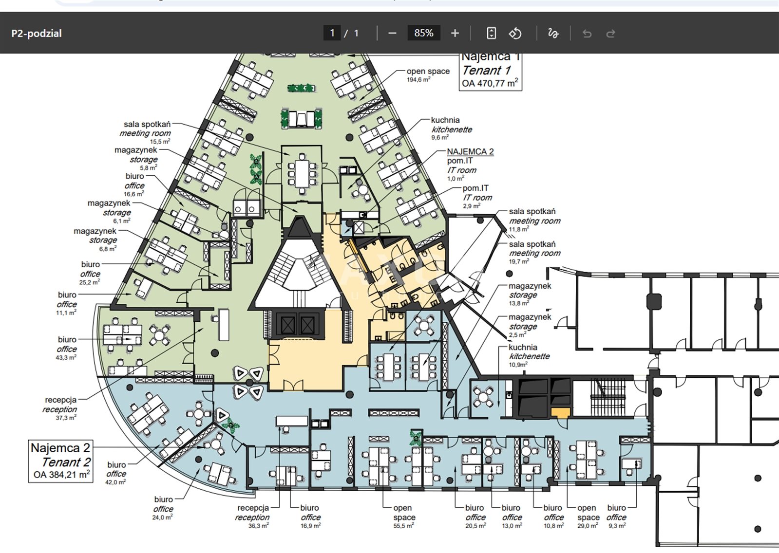
Biuro w układzie gabinetowym (plan w załączeniu-powierzchnia zaznaczona na kolor niebieski) wykończone w wysokim standardzie. Poprzednim najemca był Zarząd Firmy. 

Możliwość dostosowania aranżacji do aktualnych potrzeb nowego najemcy.

Budynek

Budynek biurowy położony w dzielnicy Żoliborz. Budynek oferuje ponad 9 tys m2 do wynajmu, 180 miejsc parkingowych w garażu podziemnym oraz magazynki na poziomie -2. W budynku znajduje się bardzo dobra kantyna, przychodnia FALK, bankomat.

Najemcy mogą liczyć na rabaty obniżające koszt najmu - miesiące bezczynszowe. Aranżacja/odświeżenie powierzchni wedle wytycznych najemcy. 


Lokalizacja

Lokalizacja gwarantuje dobry dojazd do budynku zarówno własnym środkiem transportu jak i komunikacją miejską -  tuż przy trasie S8. W pobliżu centra handlowe Arkadia i Klif. W bezpośrednim sąsiedzwie ekskluzywne osiedle mieszkaniowe Żoliborz Artystyczny.
Lokalizacja nieruchomości na mapie może być przybliżona

Zapraszamy do kontaktu

Magdalena Seweryn

Starszy Doradca ds. nieruchomości komercyjnych

Zadzwoń:

Zainteresowała Cię nasza oferta lub szukasz podobnej nieruchomości? Zapraszamy do kontaktu!



Oferty w pobliżu

0%
parter w budynku biurowym.
Warszawa, Żoliborz , Powązkowska
11 081 zł

57 zł/m2

194 m2

Wyjątkowy budynek biurowy na Żoliborzu
Warszawa, Żoliborz , ul. Ludwika Rydygiera
136 047 zł

88 zł/m2

1 544 m2

Biuro na Woli. Tarasy gratis.
Warszawa, Wola , ul. Okopowa
10 021 zł

57 zł/m2

176 m2

0%
Dwa piętra dla jednego najemcy.
Warszawa, Wola , ul. Okopowa
34 485 zł

57 zł/m2

605 m2

Piętro dla jednego najemcy.
Warszawa, Wola , ul. Okopowa
17 632 zł

58 zł/m2

304 m2

1/2