Wykończone biuro, blisko metra Rondo ONZ

Warszawa, Wola, ul. Sienna

6 443 eur

19 eur/m2

0% PROWIZJI

Powierzchnia biurowa na wynajem

Podstawowe

Powierzchnia
334,00 m2
Piętro
3
Numer oferty
25698/PBW/MAX

Warunki handlowe

Koszty eksploatacyjne m2
29,75
Czynsz m2
19,29 EUR
Min. okres najmu (lata)
3
Parking naziemny - miejsce
90 EUR
Parking podziemny - miejsce
150 EUR

Standard

Klimatyzacja
Wentylacja wymuszona
Otwierane okna
Podwieszane sufity
Podnoszone podłogi
Światłowód
Okablowanie komputer.
Okablowanie elektryczne
Okablowanie telefoniczne

Bezpieczeństwo

Recepcja
Monitoring
Czujniki dymu
Kontrola dostępu
Tryskacze
Alarm
Ochrona

Informacje o budynku

Rok budowy
1998
Pow. biurowa netto
19 560 m2
Pow. typowego piętra
2 500 m2
Współ. pow. wspól. (%)
3,70 %
Kondygnacje naziemne
9
Kondygnacje podziemne
2
Winda
Dostępne w budynku
bankomat, centrum konferen., restauracja
Współ. miejsc parking.
100,00

Opis

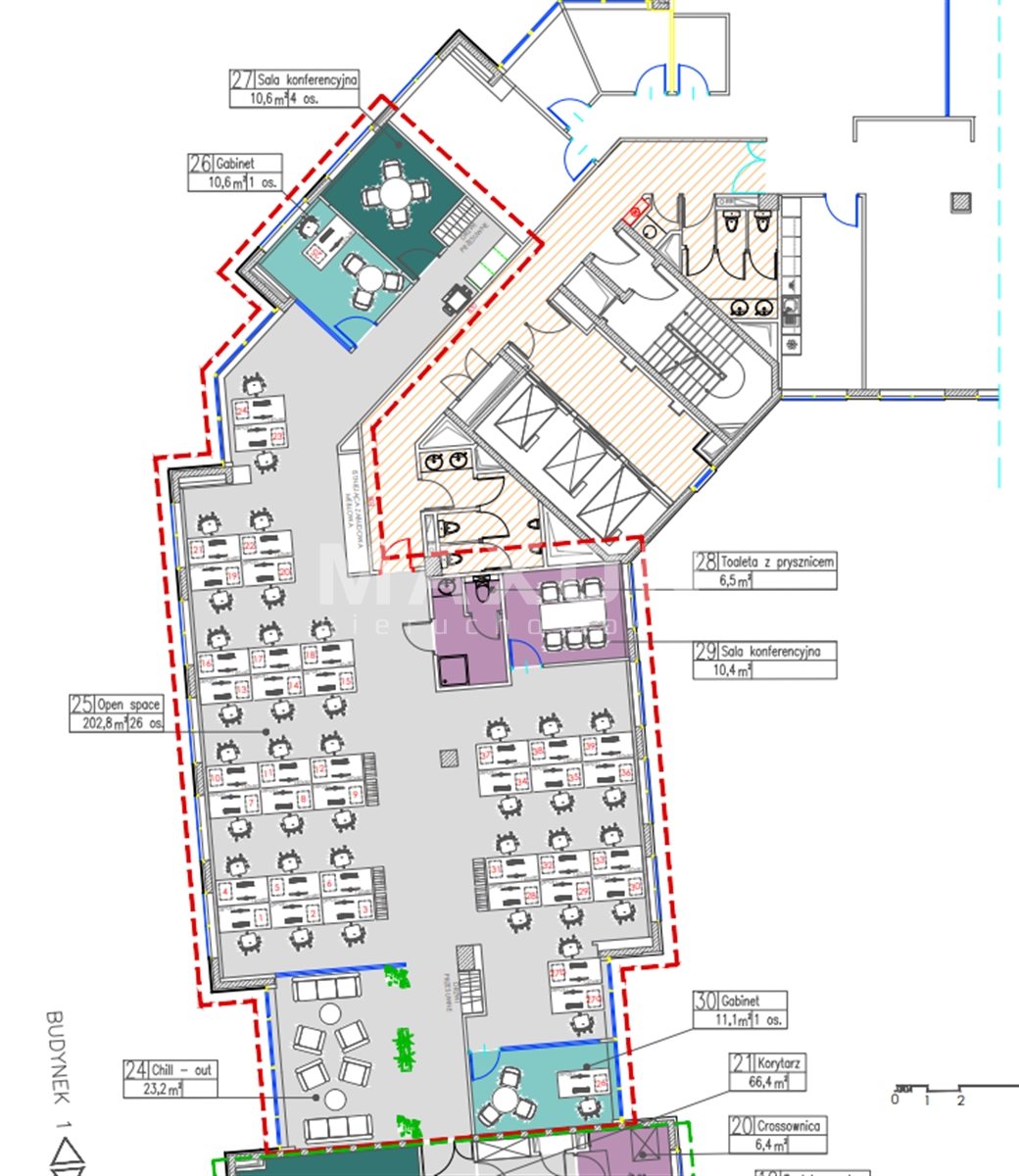
Do podnajęcie do końca października 2028 r. (z możliwością dłuższej umowy z właścicielem) wykończona, gotowa do pracy powierzchnia biurowa na około 40 stanowisk pracy. Obecny podział: 3 gabinety 1-2 os. / salki konferencyjne 3-4 os, gabinet 2-3 os. / salka konferencyjna 6 os., open space 38 stanowisk, chill out, coffee point.

Budynek

Budynek biurowy oferujący ponad 19 tys. m2 powierzchni biurowej, posiada 209 miejsc parkingowych w garażu. Biurowiec położony jest w znakomitej lokalizacji na pograniczu Woli i Śródmieścia, przy skrzyżowaniu ulic Siennej i Żelaznej. Znakomita komunikacja publiczna: odległość do najbliższej stacji metra Rondo ONZ to jedynie 400 m, przystanki tramwajowe 250m2, autobusowy pod budynkiem. Budynek składa się z trzech niezależnych części - oddzielne wejścia i recepcje. Taka struktura, w połączeniu z efektywnym rozkładem pięter, zapewnia swobodę w planowaniu powierzchni na jednym bądź kilku poziomach.

Lokalizacja

Lokalizacja nieruchomości na mapie może być przybliżona

Zapraszamy do kontaktu

Przemysław Ziółkowski

Starszy Doradca | Dział Powierzchni Biurowych

Zadzwoń:

Zainteresowała Cię nasza oferta lub szukasz podobnej nieruchomości? Zapraszamy do kontaktu!



Oferty w pobliżu

0%
64 241 zł

57 zł/m2

1 133 m2

Biurowiec - Rondo Daszyńskiego
Warszawa, Wola , Pańska
17 488 zł

78 zł/m2

224 m2

0%
Biuro - Rondo Daszyńskiego
Warszawa, Wola , Pańska
3 193 zł

78 zł/m2

41 m2

0%
14 285 zł

75 zł/m2

190 m2

0%
Biuro na Woli.
Warszawa, Wola , ul. Pańska
14 625 zł

75 zł/m2

195 m2

1/8