Biuro przy metrze Płocka

Warszawa, Wola, ul. Płocka

15 200 zł

80 zł/m2

0% PROWIZJI

Powierzchnia biurowa na wynajem

Podstawowe

Powierzchnia
190,00 m2
Piętro
6
Numer oferty
25494/PBW/MAX

Warunki handlowe

Koszty eksploatacyjne m2
25,00
Czynsz m2
80,00 PLN
Min. okres najmu (lata)
2
Parking naziemny - miejsce
180 PLN
Parking podziemny - miejsce
280 PLN

Standard

Klimatyzacja
Wentylacja wymuszona
Otwierane okna
Podwieszane sufity
Podnoszone podłogi
Światłowód
Okablowanie komputer.
Okablowanie elektryczne
Okablowanie telefoniczne

Bezpieczeństwo

Recepcja
Monitoring
Czujniki dymu
Kontrola dostępu
Tryskacze
Alarm
Ochrona

Informacje o budynku

Rok budowy
2000
Pow. biurowa netto
4 189 m2
Pow. typowego piętra
626 m2
Kondygnacje naziemne
7
Kondygnacje podziemne
1
Winda
Współ. miejsc parking.
70,00

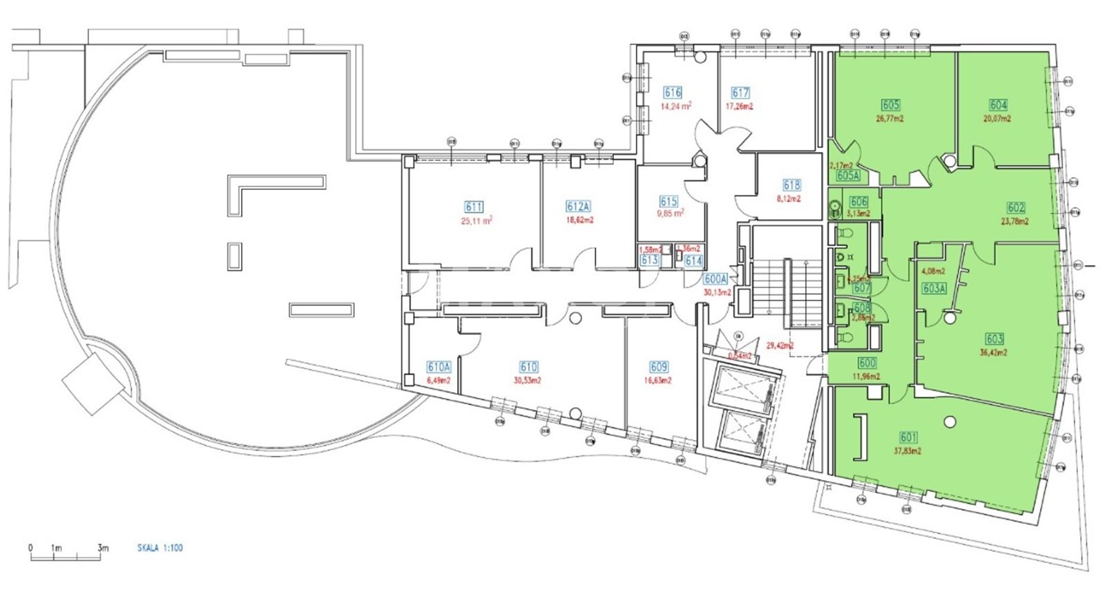
Opis

Powierzchnia 190 mkw na 6 piętrze na którą składa się:

  • pokój 27 mkw
  • pokój 20 mkw
  • pokój 36 mkw
  • pokój 37 mkw
  • hol/open space 24 m kw
  • aneks kuchenny
  • toalety

Doskonała lokalizacja, budynek znajduje się przy samej stacji metra Płocka,

dostęp również do autobusów i tramwajów.

Budynek

Kameralny budynek biurowy o ciekawej architekturze, składający się z 7 kondygnacji, położony na Woli w dogodnej lokalizacji w pobliżu II linii metra. Jest to funkcjonalny obiekt posiadający zarówno powierzchnie biurowe jak i handlowe w parterze. Na terenie znajdują się miejsca postojowe naziemne i podziemne.

Lokalizacja

Lokalizacja nieruchomości na mapie może być przybliżona

Zapraszamy do kontaktu

Marta Skrzesińska

Doradca ds. nieruchomości komercyjnych

Zadzwoń:

Zainteresowała Cię nasza oferta lub szukasz podobnej nieruchomości? Zapraszamy do kontaktu!



Oferty w pobliżu

0%
Biuro przy stacji metra Płocka
Warszawa, Wola , ul. Płocka
50 000 zł

80 zł/m2

625 m2

0%
Biuro - Metro Płocka
Warszawa, Wola , ul. Płocka
100 000 zł

80 zł/m2

1 250 m2

0%
Biuro z meblami na Woli. Metro M2.
Warszawa, Wola , ul. Skierniewicka
16 112 zł

85 zł/m2

190 m2

0%
Gotowe biuro do wprowadzenia.
Warszawa, Wola , Skierniewicka
13 600 zł

68 zł/m2

200 m2

0%
Gotowe umeblowane biuro.
Warszawa, Wola , Skierniewicka
44 838 zł

64 zł/m2

705 m2

1/3