Samodzielny moduł biurowy na Woli.

Warszawa, Wola, Pańska

2 046 eur

17 eur/m2

0% PROWIZJI

Powierzchnia biurowa na wynajem

Podstawowe

Powierzchnia
120,33 m2
Piętro
3
Numer oferty
25046/PBW/MAX

Warunki handlowe

Koszty eksploatacyjne m2
38,40
Czynsz m2
17,00 EUR
Min. okres najmu (lata)
3
Parking naziemny - miejsce
450 PLN

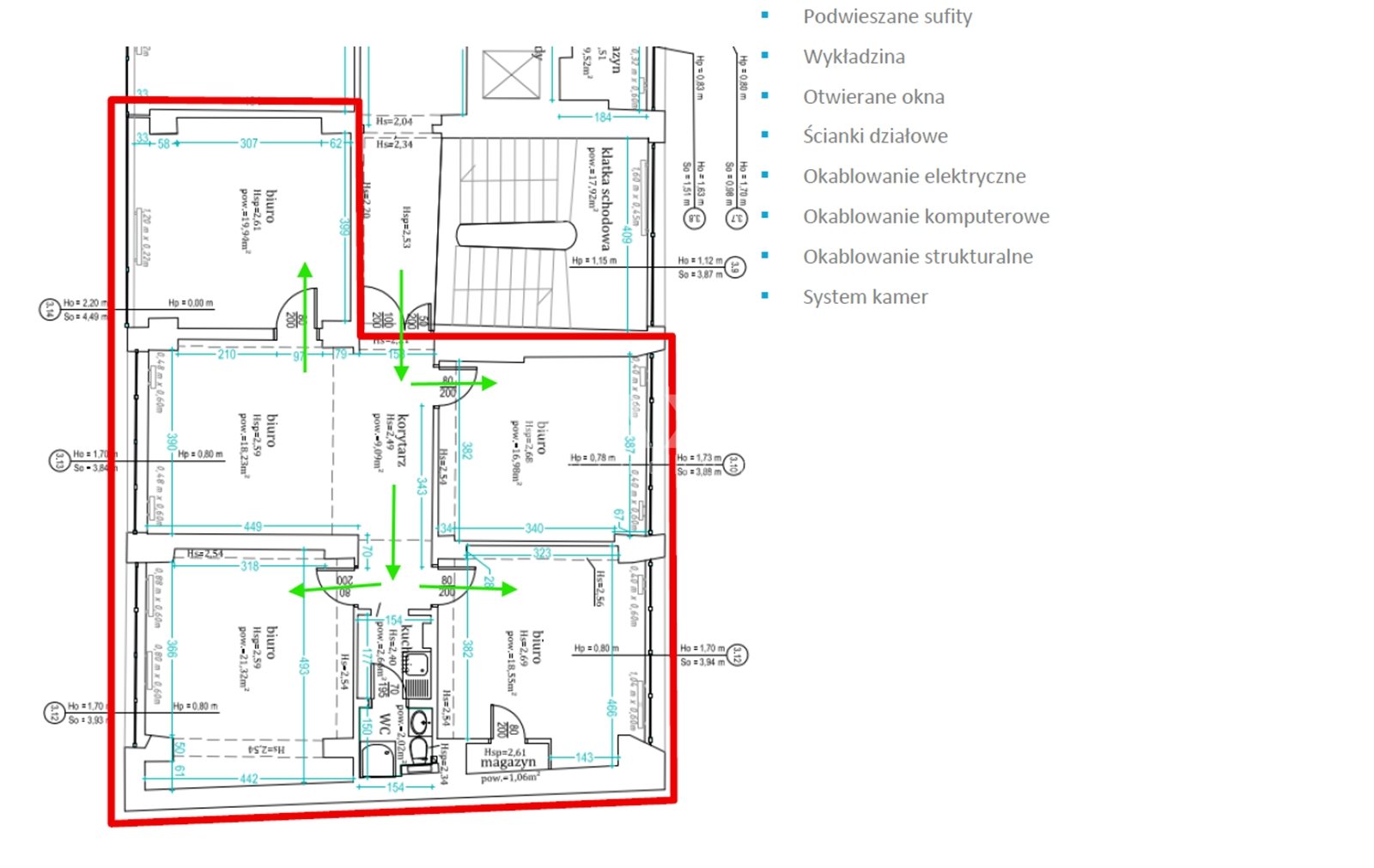
Standard

Klimatyzacja
Wentylacja wymuszona
Otwierane okna
Podwieszane sufity
Podnoszone podłogi
Światłowód
Okablowanie komputer.
Okablowanie elektryczne
Okablowanie telefoniczne

Bezpieczeństwo

Recepcja
Monitoring
Czujniki dymu
Kontrola dostępu
Tryskacze
Alarm
Ochrona

Informacje o budynku

Rok budowy
2005
Pow. biurowa netto
3 261 m2
Pow. typowego piętra
400 m2
Współ. pow. wspól. (%)
6,00 %
Kondygnacje naziemne
10
Winda
Dostępne w budynku
brak
Współ. miejsc parking.
1,00

Opis

Biuro na Woli, gotowe dpo wejścia.

Powierzchniua składa się z:

  • 4 pokoje biurowe (od 16 do 21mkw),
  • otwarta powierzchnia open space okolo 19mkw,
  • aneks kuchenny,
  • WC.

Moięsięczny koszt najmu wraz z kosztami eksploatacji okolo 14 000pln netto + VAT.

Zapraszam do obejrzenia.

Budynek

Kameralny budynek biurowy znajdujący się przy skrzyżowaniu Żelaznej i Pańskiej. Budynek oferują łącznie ponad 3200 m2 powierzchni biurowej. Lokalizacja budynku gwarantuje najemcom bardzo dobre połączenia komunikacją miejską z innymi dzielnicami Warszawy. W pobliżu znajdują się stacje metra Rondo ONZ i Daszyńskiego oraz liczne przystanki autobusowe i tramwajowe.

Lokalizacja

Lokalizacja nieruchomości na mapie może być przybliżona

Zapraszamy do kontaktu

Yurii Bukhtii

Specjalista ds. Nieruchomości

Zadzwoń:

Zainteresowała Cię nasza oferta lub szukasz podobnej nieruchomości? Zapraszamy do kontaktu!



Oferty w pobliżu

0%
Biuro na Woli.
Warszawa, Wola , Pańska
9 933 zł

72 zł/m2

138 m2

0%
14 285 zł

75 zł/m2

190 m2

0%
Biuro na Woli.
Warszawa, Wola , ul. Pańska
14 625 zł

75 zł/m2

195 m2

Biuro w układzie gabinetowym.
Warszawa, Wola , ul. Pańska
10 230 zł

55 zł/m2

186 m2

0%
3 410 zł

55 zł/m2

62 m2

1/5