Kameralne biuro 69 mkw na Woli

Warszawa, Wola, ul. Młynarska

6 210 zł

90 zł/m2

0% PROWIZJI

Powierzchnia biurowa na wynajem

Podstawowe

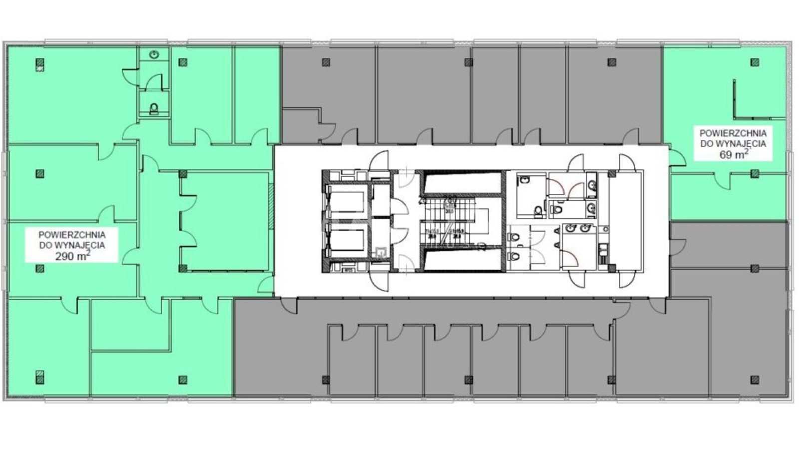
Powierzchnia
69,00 m2
Piętro
3
Numer oferty
24873/PBW/MAX

Warunki handlowe

Koszty eksploatacyjne m2
28,00
Czynsz m2
90,00 PLN
Min. okres najmu (lata)
3
Parking naziemny - miejsce
325 PLN
Parking podziemny - miejsce
575 PLN

Standard

Klimatyzacja
Wentylacja wymuszona
Otwierane okna
Podwieszane sufity
Podnoszone podłogi
Światłowód
Okablowanie komputer.
Okablowanie elektryczne
Okablowanie telefoniczne

Bezpieczeństwo

Recepcja
Monitoring
Czujniki dymu
Kontrola dostępu
Tryskacze
Alarm
Ochrona

Informacje o budynku

Rok budowy
2007
Pow. biurowa netto
5 000 m2
Pow. typowego piętra
800 m2
Współ. pow. wspól. (%)
6,90 %
Kondygnacje naziemne
7
Winda
Dostępne w budynku
bankomat, centrum konferen., fitness, kantyna, myjnia samochodowa, restauracja
Współ. miejsc parking.
1,30

Opis

Powierzchnia na kameralne biuro składa się z 3 pomieszczeń.

Jeden z pokoi posiada niezależne wejście, w drugim pokoju wydzielono dodatkowy gabinet (recepcję).

Polecam

Budynek

Nowoczesny budynek biurowy położony w kompleksie biurowym Vipol Plaza na warszawskiej Woli przy ul. Młynarskiej. Kameralna okolica. Optymalne położenie pod względem komunikacyjnym, kilka minut samochodem do centrum oraz dostęp do środków komunikacji miejskiej (autobusy i tramwaje). Budynek zapewnia przyjazne i komfortowe środowisko pracy. W kompleksie budynków znajduje się restauracja.

W niedalekiej odległości znajdują się centra handlowe (Arkadia, Klif, Wola Park) oraz hotele (IBIS). Bliskość kolei: SKM, KM (5 minut do stacji Warszawa Koło). Łatwy dostęp do drogi ekspresowej S2 i Alei Prymasa Tysiąclecia.

Lokalizacja

Lokalizacja nieruchomości na mapie może być przybliżona

Zapraszamy do kontaktu

Ewa Hołopiak

Ekspert ds. Nieruchomości

Zadzwoń:

Zainteresowała Cię nasza oferta lub szukasz podobnej nieruchomości? Zapraszamy do kontaktu!



Oferty w pobliżu

0%
Biuro na Woli.
Warszawa, Wola , ul. Młynarska
10 005 zł

69 zł/m2

145 m2

0%
Biuro do wynajęcia na Woli
Warszawa, Wola , ul. Młynarska
26 100 zł

90 zł/m2

290 m2

0%
Kameralne biuro na Woli
Warszawa, Wola , ul. Młynarska
5 400 zł

90 zł/m2

60 m2

0%
34 304 zł

64 zł/m2

536 m2

0%
Funkcjonalne biuro na Woli
Warszawa, Wola , Młynarska
33 216 zł

64 zł/m2

519 m2

1/6