Eleganckie biuro w kamienicy.

Warszawa, Śródmieście, ul. Jana i Jędrzeja Śniadeckich

16 046 zł

113 zł/m2

Powierzchnia biurowa na wynajem

Podstawowe

Powierzchnia
142,00 m2
Piętro
2
Numer oferty
24859/PBW/MAX

Warunki handlowe

Koszty eksploatacyjne m2
27,00
Czynsz m2
113,00 PLN
Min. okres najmu (lata)
3
Parking naziemny - miejsce
550 PLN

Standard

Klimatyzacja
Wentylacja wymuszona
Otwierane okna
Podwieszane sufity
Podnoszone podłogi
Światłowód
Okablowanie komputer.
Okablowanie elektryczne
Okablowanie telefoniczne

Bezpieczeństwo

Recepcja
Monitoring
Czujniki dymu
Kontrola dostępu
Tryskacze
Alarm
Ochrona

Informacje o budynku

Rok budowy
1936
Pow. biurowa netto
2 036 m2
Pow. typowego piętra
400 m2
Kondygnacje naziemne
5
Winda

Budynek

Rodzaj budynku
Biurowiec

Opis

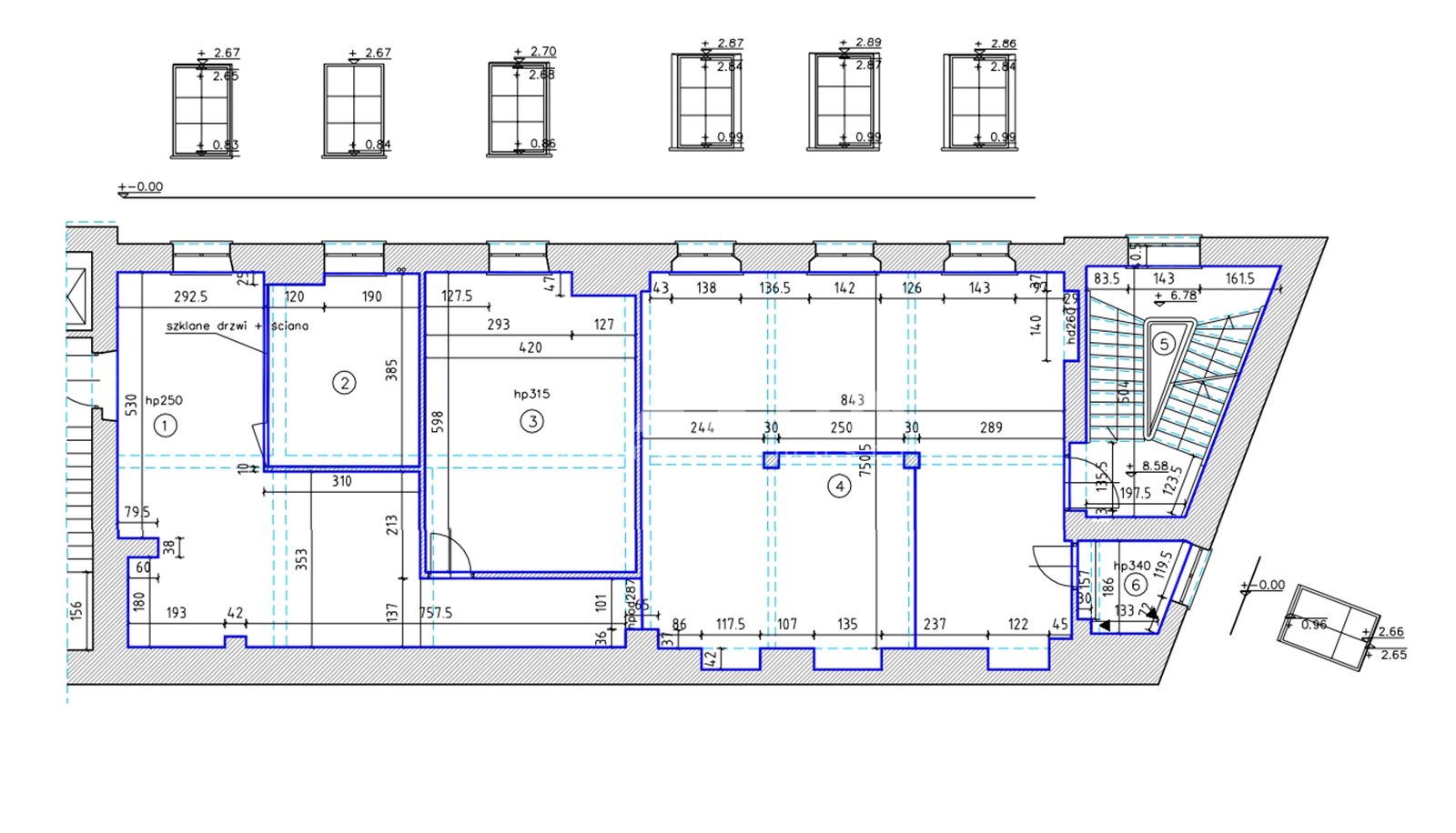
Samodzielny lokal biurowy położony na 2 piętrze (winda). 

Aktualny podział to hol wejściowy z miejscem na recepcję, open space z możliwością wydzielenia trzech pokoi biurowych +  2 gabinety  - plan w załączeniu. Własny aneks kuchenny i WC.

Lokal dobrze doświetlony, przeszklenia zapewniają dostęp światła do całej przestrzeni biura.

Lokal w trakcie końcowych prac remontowych, właściciel czeka z decyzją nt rodzaju wykończenia podłogi (wykładzina lub panele) dla nowego najemcy. Swoją siedzibę może tu znaleźć np. kancelaria prawna, oddział firmy w Polsce, biuro marketingowe.

Szczegółowe warunki najmu do uzgodnienia. Możliwość negocjacji uzależnionej od ogólnych zasadniczych warunków umowy. Zapraszam na prezentację.

Budynek

Reprezentacyjna kamienica biurowa położona w ścisłym Śródmieściu. Prestiżowa lokalizacja, historyczna zabudowa oraz bardzo dobry standard wykończenia wnętrz, decydują o tym, że powierzchnia w kamienicy jest idealną przestrzenią na siedzibę firmy.

Lokalizacja

Lokalizacja nieruchomości na mapie może być przybliżona

Zapraszamy do kontaktu

Magdalena Seweryn

Starszy Doradca ds. nieruchomości komercyjnych

Zadzwoń:

Zainteresowała Cię nasza oferta lub szukasz podobnej nieruchomości? Zapraszamy do kontaktu!



Oferty w pobliżu

Eleganckie biuro w kamienicy
Warszawa, Śródmieście , ul. Jana i Jędrzeja Śniadeckich
11 748 zł

103 zł/m2

114 m2

Eleganckie biuro w kamienicy przy Pl. Konstytucji
Warszawa, Śródmieście , Śniadeckich
17 030 zł

130 zł/m2

131 m2

0%
Biuro przy stacji Metra Politechnika
Warszawa, Śródmieście , Waryńskiego Ludwika
23 138 zł

96 zł/m2

240 m2

0%
Biuro przy Metrze Politechnika
Warszawa, Śródmieście , Mokotowska
3 120 zł

60 zł/m2

52 m2

0%
pokój biurowy przy Metrze Politechnika
Warszawa, Śródmieście , Mokotowska
1 680 zł

60 zł/m2

28 m2

1/7