Biuro do wynajęcia Warszawa, Ochota

Warszawa, Ochota, Al. Jerozolimskie

2 759 eur

16 eur/m2

0% PROWIZJI

Powierzchnia biurowa na wynajem

Podstawowe

Powierzchnia
178,00 m2
Piętro
8
Numer oferty
24954/PBW/MAX

Warunki handlowe

Koszty eksploatacyjne m2
28,00
Czynsz m2
15,50 EUR
Min. okres najmu (lata)
3
Parking podziemny - miejsce
140 EUR

Standard

Klimatyzacja
Wentylacja wymuszona
Otwierane okna
Podwieszane sufity
Podnoszone podłogi
Światłowód
Okablowanie komputer.
Okablowanie elektryczne
Okablowanie telefoniczne

Bezpieczeństwo

Recepcja
Monitoring
Czujniki dymu
Kontrola dostępu
Tryskacze
Alarm
Ochrona

Informacje o budynku

Rok budowy
2002
Pow. biurowa netto
14 612 m2
Pow. typowego piętra
968 m2
Współ. pow. wspól. (%)
5,00 %
Kondygnacje naziemne
19
Kondygnacje podziemne
3
Winda
Dostępne w budynku
bankomat, centrum konferen., kantyna, kiosk, restauracja
Współ. miejsc parking.
100,00

Budynek

Rodzaj budynku
Biurowiec

Opis

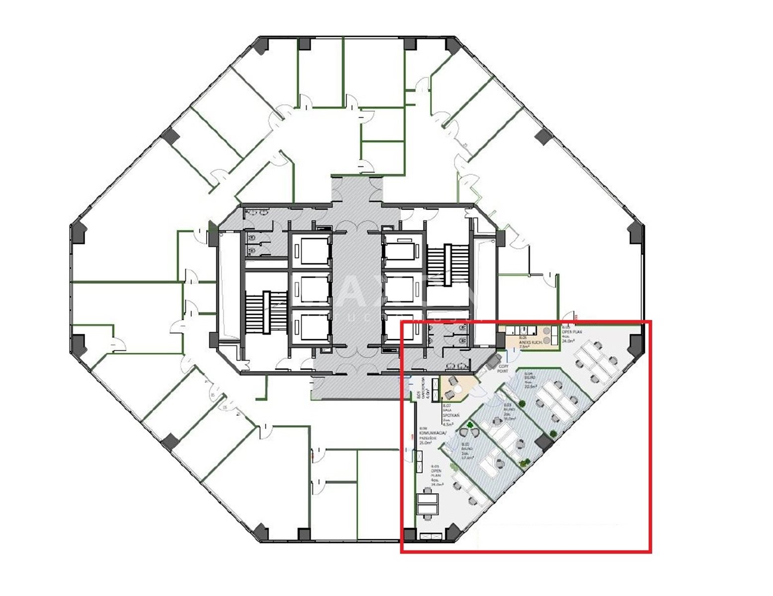
Do wynajęcie wykończona, gotowa do pracy powierzchnia biurowa, zaaranżowana zgodnie z załączanym rzutem.

Budynek

Budynek biurowy należący do kompleksu składającego się 4 budynków, połączonych wspólnym wewnętrznym atrium gdzie znajdują się liczne punkty usługowe i handlowe (kantyna, restauracja, pralnia, fryzjer, kiosk, apteka, kawiarnia,  przychodnia lekarska, usługi kurierskie i inne. Biurowiec położony jest na bliskiej Ochocie, nieopodal Dworca Zachodniego. Budynek dysponuje parkingiem podziemny liczący 275 miejsc parkingowych. Budynek posiada ~ 15 000 m2 powierzchni do wynajęcia. Biurowiec został wyposażony w liczne rozwiązania techniczne oraz udogodnienia sprzyjające łatwemu podziałowi powierzchni wedle wytycznych najemców. Stawka kosztów eksploatacyjnych z wyłączeniem energii elektrycznej i ciepła w częściach wspólnych.

Lokalizacja

Położenie przy Alejach Jerozolimskich w sąsiedztwie głównych węzłów komunikacyjnych zapewnia dogodny dostęp wszystkimi środkami komunikacji - samochodem, autobusem, tramwajem, kolejką WKD i SKM oraz koleją PKP. Bliska odległość od lotniska i autostrady.

Lokalizacja nieruchomości na mapie może być przybliżona

Zapraszamy do kontaktu

Przemysław Ziółkowski

Starszy Doradca | Dział Powierzchni Biurowych

Zadzwoń:

Zainteresowała Cię nasza oferta lub szukasz podobnej nieruchomości? Zapraszamy do kontaktu!



Oferty w pobliżu

0%
Biuro, podział na gabinety
Warszawa, Ochota , Al. Jerozolimskie
12 817 zł

63 zł/m2

202 m2

0%
Biuro niedaleko Placu Zawiszy/Dworca Zachodniego
Warszawa, Ochota , al. Aleje Jerozolimskie
58 742 zł

61 zł/m2

960 m2

0%
Ochota, Jerozolimskie przed Dworcem Zachodnim
Warszawa, Ochota , al. Aleje Jerozolimskie
38 369 zł

79 zł/m2

488 m2

0%
Biuro, Ochota, Jerozolimskie
Warszawa, Ochota , al. Aleje Jerozolimskie
29 120 zł

78 zł/m2

373 m2

Biuro na bliskiej Woli
Warszawa, Wola , ul. Kolejowa
18 150 zł

66 zł/m2

275 m2

1/7