Biuro na Parterze.

Warszawa, Ochota, al. Aleje Jerozolimskie

3 848 eur

14 eur/m2

0% PROWIZJI

Powierzchnia biurowa na wynajem

Podstawowe

Powierzchnia
285,00 m2
Piętro
0
Numer oferty
25223/PBW/MAX

Warunki handlowe

Koszty eksploatacyjne m2
25,90
Czynsz m2
13,50 EUR
Min. okres najmu (lata)
3
Parking naziemny - miejsce
60 EUR
Parking podziemny - miejsce
80 EUR

Standard

Klimatyzacja
Wentylacja wymuszona
Otwierane okna
Podwieszane sufity
Podnoszone podłogi
Światłowód
Okablowanie komputer.
Okablowanie elektryczne
Okablowanie telefoniczne

Bezpieczeństwo

Recepcja
Monitoring
Czujniki dymu
Kontrola dostępu
Tryskacze
Alarm
Ochrona

Informacje o budynku

Rok budowy
2001
Pow. biurowa netto
7 600 m2
Pow. typowego piętra
1 500 m2
Współ. pow. wspól. (%)
7,40 %
Kondygnacje naziemne
7
Kondygnacje podziemne
1
Winda
Dostępne w budynku
kantyna
Współ. miejsc parking.
47,00

Budynek

Rodzaj budynku
Biurowiec

Opis

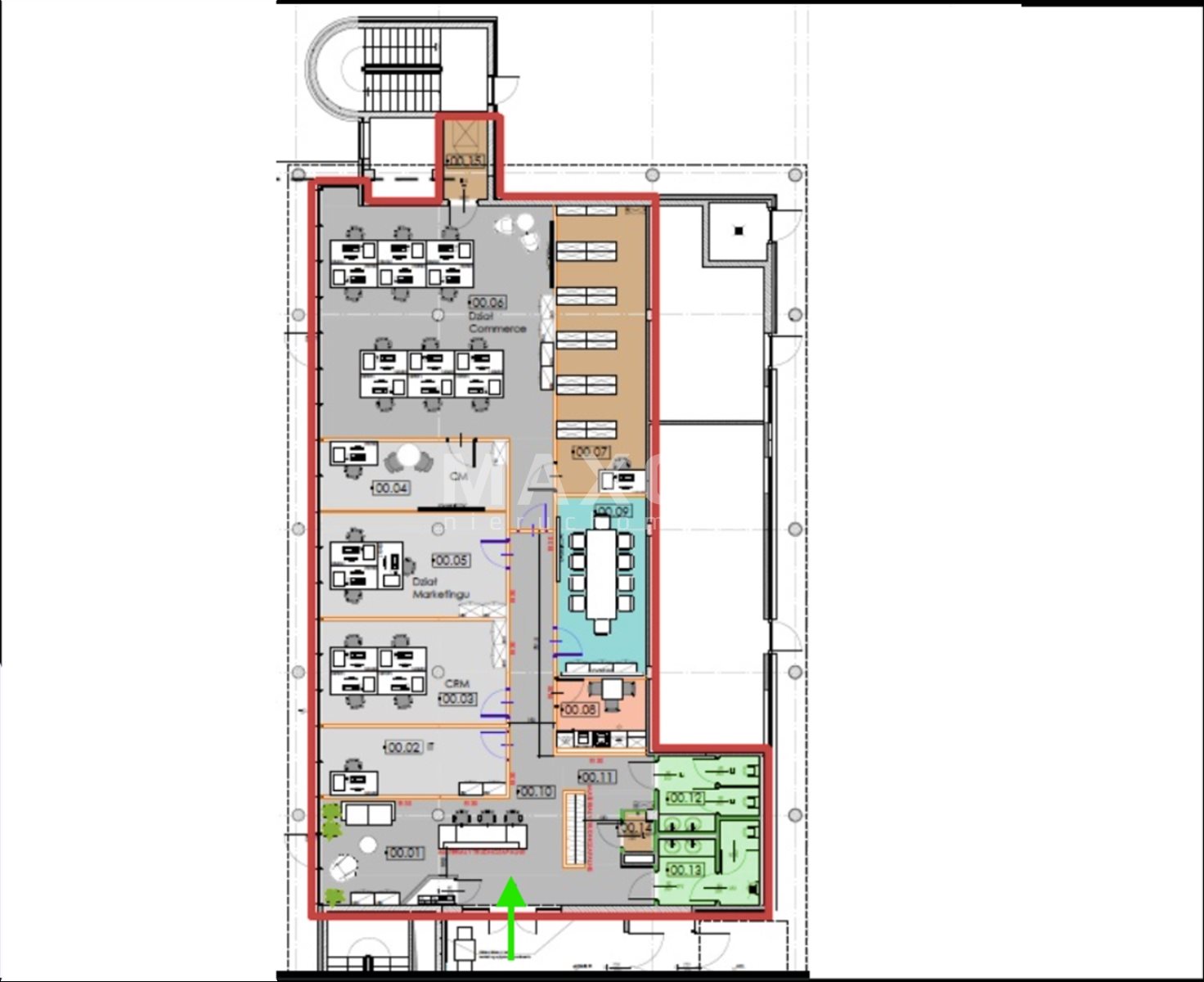
Powierzchnia biurowa na parterze – Idealne dla Twojej Firmy.

Atrakcyjna powierzchnia biurowa w nowoczesnym budynku, z łatwym dostępem dla interesantów oraz pracowników.

Główne Atuty i układ funkcjonalny:

  • Recepcja ze strefą dla klientów,
  • Przestrzeń typu Open Space/Biura Zespołowe, np:

- Dział Commerce,

- Dział Marketingu,

- inne Strefy pracy.

  • Sala konferencyjna,
  • Pokoje biurowe,
  • Aneks kuchenny,
  • Archiwum,
  • Toalety.

Przemyślany układ pomieszczeń zapewnia płynny ruch i łatwą komunikację pomiędzy działami.

Idealna propozycja dla firmy poszukującej gotowej, dobrze rozplanowanej powierzchni biurowej.

Miesięczna opłata przed dedykowaną ofertą dla klienta to około 25 480pln netto.

Wakacje czynszowe i aranżacja "pod klucz"

Zapraszam do obejrzenia.

Budynek

Kompleks biurowy, składający się z czterech budynków. Nowoczesny charakter budynków podkreślają zewnętrzne elewacje, będące połączeniem szkła, kamienia i stali. Konstrukcja budynku umożliwia dowolną aranżację powierzchni, z uwzględnieniem indywidualnych potrzeb najemcy.

Kompleks biurowy jest położony na warszawskiej Ochocie, przy Alejach Jerozolimskich – jednej z głównych arterii miasta. Zaletą lokalizacji jest niewielka odległość od Dworca Zachodniego, centrum Warszawy i Portu Lotniczego im. Fryderyka Chopina oraz dobry dostęp do środków komunikacji miejskiej.

Lokalizacja

Lokalizacja nieruchomości na mapie może być przybliżona

Zapraszamy do kontaktu

Yurii Bukhtii

Specjalista ds. Nieruchomości

Zadzwoń:

Zainteresowała Cię nasza oferta lub szukasz podobnej nieruchomości? Zapraszamy do kontaktu!



Oferty w pobliżu

0%
⭐Biuro w układzie mieszanym.
Warszawa, Ochota , al. Aleje Jerozolimskie
39 859 zł

57 zł/m2

698 m2

Nowoczesny budynek biurowy
Warszawa, Ochota , Aleje Jerozolimskie
9 492 zł

72 zł/m2

132 m2

Komfortowe biuro w nowoczesnym biurowcu
Warszawa, Ochota , Aleje Jerozolimskie
33 270 zł

57 zł/m2

584 m2

0%
Gotowe biuro w układzie gabinetowym na Ochocie
Warszawa, Ochota , Al. Jerozolimskie
37 320 zł

57 zł/m2

652 m2

0%
Funkcjonalne biuro w doskonałej lokalizacji
Warszawa, Ochota , Al. Jerozolimskie
15 704 zł

53 zł/m2

297 m2

1/9