Biuro, Ochota, Jerozolimskie

Warszawa, Ochota, al. Aleje Jerozolimskie

6 901 eur

19 eur/m2

0% PROWIZJI

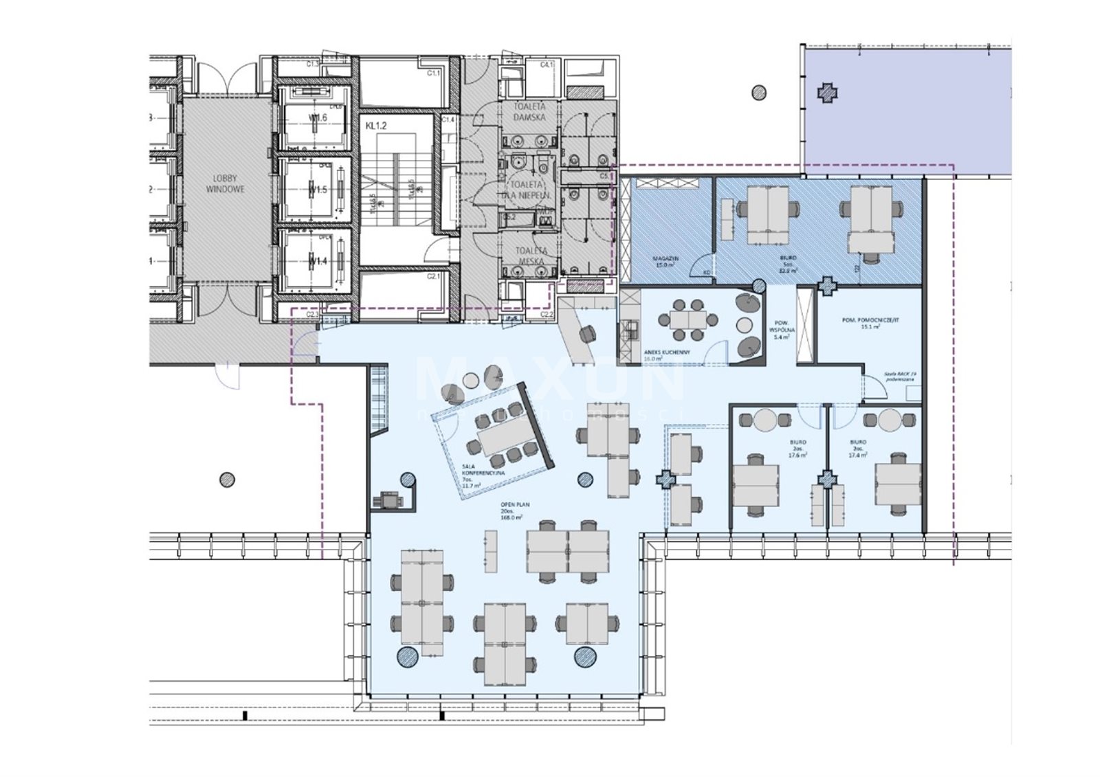
Powierzchnia biurowa na wynajem

Podstawowe

Powierzchnia
373,00 m2
Piętro
10
Numer oferty
24956/PBW/MAX

Warunki handlowe

Koszty eksploatacyjne m2
18,00
Czynsz m2
18,50 EUR
Min. okres najmu (lata)
5
Parking podziemny - miejsce
140 EUR

Standard

Klimatyzacja
Wentylacja wymuszona
Otwierane okna
Podwieszane sufity
Podnoszone podłogi
Światłowód
Okablowanie komputer.
Okablowanie elektryczne
Okablowanie telefoniczne

Bezpieczeństwo

Recepcja
Monitoring
Czujniki dymu
Kontrola dostępu
Tryskacze
Alarm
Ochrona

Informacje o budynku

Rok budowy
2014
Pow. biurowa netto
33 600 m2
Pow. typowego piętra
3 600 m2
Współ. pow. wspól. (%)
5,00 %
Kondygnacje naziemne
15
Kondygnacje podziemne
3
Winda
Certyf. zielonego budynku
leed - platynowy
Dostępne w budynku
bankomat, kantyna, kawiarnia, kiosk, restauracja
Współ. miejsc parking.
120,00

Budynek

Rodzaj budynku
Biurowiec

Opis

Do wynajęcie wykończona, gotowa do pracy powierzchnia biurowa, zaaranżowana zgodnie z załączanym rzutem. Istniej możliwość zmiany aranżacji wedle wytycznych klienta.

Budynek

Kompleks nowoczesnych biurowców klasy A. Budynki posiadają szereg ekologicznych rozwiązań - LEED Platinum. Powierzchnia najmu biurowców to ponad 65 000 m2 powierzchni biurowej i handlowo-usługowej zlokalizowanej na parterze budynków. Budynki posiadają 15 kondygnacji naziemnych i 3 podziemne - ponad 600 miejsc parkingowych. Przed budynkami znajdują się również 162 naziemne miejsca parkingowe (w tym 112 ogólnodostępnych). W budynku znajdą się punkty ładowania pojazdów elektrycznych oraz udogodnienia dla rowerzystów (miejsca postojowe dla rowerów, przebieralnie, prysznice). Biurowce wyróżniają się zielonymi atriami. Przez wszystkie budynki ciągnie się pasaż z punktami usługowymi, restauracjami, kawiarniami i punktami usługowymi.

Lokalizacja

Położenie przy Alejach Jerozolimskich w sąsiedztwie głównych węzłów komunikacyjnych zapewnia dogodny dostęp wszystkimi środkami komunikacji - samochodem, autobusem, tramwajem, kolejką WKD i SKM oraz koleją PKP. Bliska odległość od lotniska i autostrady.

Lokalizacja nieruchomości na mapie może być przybliżona

Zapraszamy do kontaktu

Przemysław Ziółkowski

Starszy Doradca | Dział Powierzchni Biurowych

Zadzwoń:

Zainteresowała Cię nasza oferta lub szukasz podobnej nieruchomości? Zapraszamy do kontaktu!



Oferty w pobliżu

0%
Biuro niedaleko Placu Zawiszy/Dworca Zachodniego
Warszawa, Ochota , al. Aleje Jerozolimskie
58 742 zł

61 zł/m2

960 m2

0%
Ochota, Jerozolimskie przed Dworcem Zachodnim
Warszawa, Ochota , al. Aleje Jerozolimskie
38 369 zł

79 zł/m2

488 m2

0%
Gotowe biuro, Ochota, wysoki standard
Warszawa, Ochota , al. Aleje Jerozolimskie
53 983 zł

76 zł/m2

709 m2

0%
Biuro do wynajęcia
Warszawa, Ochota , al. Aleje Jerozolimskie
48 292 zł

75 zł/m2

645 m2

0%
Biuro do wynajęcia Warszawa, Ochota
Warszawa, Ochota , Al. Jerozolimskie
11 671 zł

66 zł/m2

178 m2

1/6