Gotowe, bardzo wysoki standard, metro Wilanowska

Warszawa, Mokotów, ul. Puławska

20 865 eur

20 eur/m2

Powierzchnia biurowa na wynajem

Podstawowe

Powierzchnia
1 070,00 m2
Piętro
1
Numer oferty
25265/PBW/MAX

Warunki handlowe

Koszty eksploatacyjne m2
17,00
Czynsz m2
19,50 EUR
Min. okres najmu (lata)
5
Parking podziemny - miejsce
185 EUR

Standard

Klimatyzacja
Wentylacja wymuszona
Otwierane okna
Podwieszane sufity
Podnoszone podłogi
Światłowód
Okablowanie komputer.
Okablowanie elektryczne
Okablowanie telefoniczne

Bezpieczeństwo

Recepcja
Monitoring
Czujniki dymu
Kontrola dostępu
Tryskacze
Alarm
Ochrona

Informacje o budynku

Rok budowy
2022
Pow. biurowa netto
30 160 m2
Pow. typowego piętra
2 100 m2
Współ. pow. wspól. (%)
5,00 %
Kondygnacje naziemne
15
Kondygnacje podziemne
2
Winda
Dostępne w budynku
kantyna, kawiarnia, parking dla rowerów
Współ. miejsc parking.
170,00

Budynek

Rodzaj budynku
Biurowiec

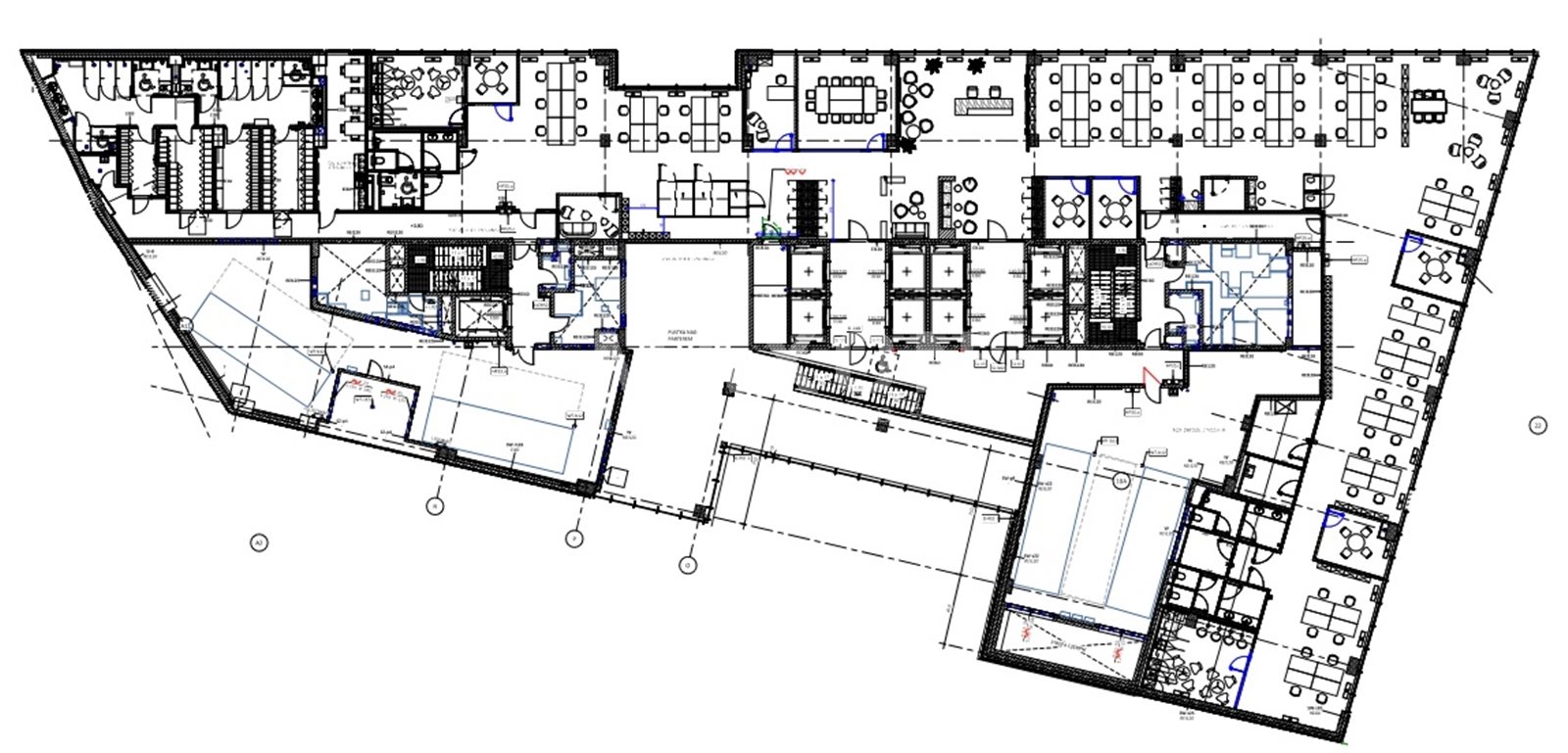
Opis

Do wynajęcia powierzchnia biurowa wykończona w wysokim standardzie. Zdjęcia i rzut przestawiają obecną aranżację. Biuro czeka na pierwszego najemcę - nie było jeszcze użytkowane. 

Dodatkowo możliwość wynajęcia ~ 750 m2 na innym piętrze.

Budynek

Nowoczesny, ekologiczny budynek biurowy o pow. ~ 32 tys. m2. 197 miejsc parkingowych w garażu podziemnym. Powierzchnia typowego piętra to ~2100m2. Budynek oferuje powierzchnie biurowe, które można zaaranżować zarówno jako open space jak i w układzie gabinetowym. Biurowiec posiada duże przeszklenia co gwarantuje bardzo dobry dostęp światła dziennego. W budynku znajduje się ponad 100 miejsc dla rowerów, szatnie i prysznice dla rowerzystów, a także dodatkowe miejsca dla skuterów i hulajnóg.  Certyfikacja: WELL, LEED Platinum, obiekt bez barier. Przy budynku dużo zieleni, strefa wypoczynku i rekreacji (plac zabaw, skatepark, boisko do koszykówki).


Lokalizacja

Inwestycja położona w znakomitej lokalizacji - tuż przy stacji Metra Wilanowska, licznych przystankach tramwajowych i autobusowych.
Lokalizacja nieruchomości na mapie może być przybliżona

Zapraszamy do kontaktu

Przemysław Ziółkowski

Starszy Doradca | Dział Powierzchni Biurowych

Zadzwoń:

Zainteresowała Cię nasza oferta lub szukasz podobnej nieruchomości? Zapraszamy do kontaktu!



Oferty w pobliżu

Gotowe biuro - Metro Wilanowska
Warszawa, Mokotów , ul. Puławska
61 488 zł

82 zł/m2

750 m2

Gotowe biuro, budynek tuż przy stacji metra
Warszawa, Mokotów , ul. Puławska
86 343 zł

76 zł/m2

1 134 m2

Piętro dla jednego najemcy. St. metra Wilanowska.
Warszawa, Mokotów , ul. Bukowińska
30 078 zł

58 zł/m2

523 m2

Biuro gabinetowe Metro Wilanowska
Warszawa, Mokotów , ul. Bukowińska
15 218 zł

58 zł/m2

264 m2

0%
Biuro przy stacji metra linii M1
Warszawa, Mokotów , ul. Bukowińska
16 890 zł

58 zł/m2

293 m2

1/12