Kameralne biuro na Mokotowie

Warszawa, Mokotów, Domaniewska

4 200 zł

60 zł/m2

0% PROWIZJI

Powierzchnia biurowa na wynajem

Podstawowe

Powierzchnia
70,00 m2
Piętro
3
Numer oferty
24975/PBW/MAX

Warunki handlowe

Koszty eksploatacyjne m2
25,70
Czynsz m2
60,00 PLN
Min. okres najmu (lata)
3
Parking naziemny - miejsce
400 PLN
Parking podziemny - miejsce
400 PLN

Standard

Klimatyzacja
Wentylacja wymuszona
Otwierane okna
Podwieszane sufity
Podnoszone podłogi
Światłowód
Okablowanie komputer.
Okablowanie elektryczne
Okablowanie telefoniczne

Bezpieczeństwo

Recepcja
Monitoring
Czujniki dymu
Kontrola dostępu
Tryskacze
Alarm
Ochrona

Informacje o budynku

Rok budowy
2001
Pow. biurowa netto
11 172 m2
Pow. typowego piętra
2 000 m2
Współ. pow. wspól. (%)
10,00 %
Kondygnacje naziemne
8
Kondygnacje podziemne
1
Winda
Dostępne w budynku
bankomat, kiosk, parking dla rowerów
Współ. miejsc parking.
100,00

Opis

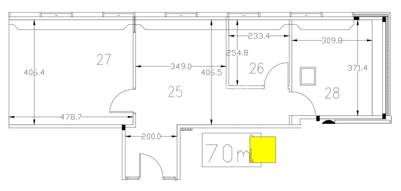
Do wynajęcia biuro o powierzchni 70 m2 na III piętrze biurowca przy ul. Domaniewskiej.

Powierzchnia biurowa składa się z:

  • 2 gabinetów
  • open space'u
  • pomieszczenia gospodarczego

Toalety i aneks kuchenny na powierzchni wspólnej.

Możliwość wynajęcia miejsca parkingowego.

Miesięczny koszt najmu (czynsz + koszty eksploatacji) wraz z jednym miejscem parkingowym to 6998,90 PLN netto.

Budynek

Budynek biurowy klasy B+ zlokalizowany na warszawskim Mokotowie, przy ul. Domaniewskiej. Jego położenie i dogodna lokalizacja pozwala łatwo dostać się do innych części miasta. Budynek oferuje ok. 19400m2 powierzchni biurowej do wynajęcia. Obiekt posiada 17 naziemnych i 348 podziemnych miejsc parkingowych.

Lokalizacja

Lokalizacja nieruchomości na mapie może być przybliżona

Zapraszamy do kontaktu

Agnieszka Szymańska

Starszy Doradca ds. nieruchomości komercyjnych

Zadzwoń:

Zainteresowała Cię nasza oferta lub szukasz podobnej nieruchomości? Zapraszamy do kontaktu!



Oferty w pobliżu

0%
Lokal biurowy 60 m2 na Mokotowie
Warszawa, Mokotów , Domaniewska
3 600 zł

60 zł/m2

60 m2

Open space 182 m2 do aranżacji na Mokotowie
Warszawa, Mokotów , ul. Domaniewska
10 920 zł

60 zł/m2

182 m2

samodzielne biuro na Mokotowie
Warszawa, Mokotów , ul. Domaniewska
6 360 zł

60 zł/m2

106 m2

Powierzchnia 158 m2 na wynajem - Mokotów
Warszawa, Mokotów , ul. Domaniewska
9 480 zł

60 zł/m2

158 m2

0%
Biuro do wynajęcia, Domaniewska
Warszawa, Mokotów , ul. Domaniewska
23 001 zł

61 zł/m2

375 m2

1/4