Biuro z recepcją w układzie gabinetowym.

Warszawa, Mokotów, ul. Domaniewska

6 032 eur

15 eur/m2

0% PROWIZJI

Powierzchnia biurowa na wynajem

Podstawowe

Powierzchnia
416,00 m2
Piętro
2
Numer oferty
24875/PBW/MAX

Warunki handlowe

Koszty eksploatacyjne m2
32,57
Czynsz m2
14,50 EUR
Min. okres najmu (lata)
2
Parking podziemny - miejsce
80 EUR

Standard

Klimatyzacja
Wentylacja wymuszona
Otwierane okna
Podwieszane sufity
Podnoszone podłogi
Światłowód
Okablowanie komputer.
Okablowanie elektryczne
Okablowanie telefoniczne

Bezpieczeństwo

Recepcja
Monitoring
Czujniki dymu
Kontrola dostępu
Tryskacze
Alarm
Ochrona

Informacje o budynku

Rok budowy
2009
Pow. biurowa netto
30 500 m2
Pow. typowego piętra
4 700 m2
Współ. pow. wspól. (%)
5,17 %
Kondygnacje naziemne
7
Kondygnacje podziemne
2
Winda
Dostępne w budynku
kantyna
Współ. miejsc parking.
40,00

Budynek

Rodzaj budynku
Biurowiec

Opis

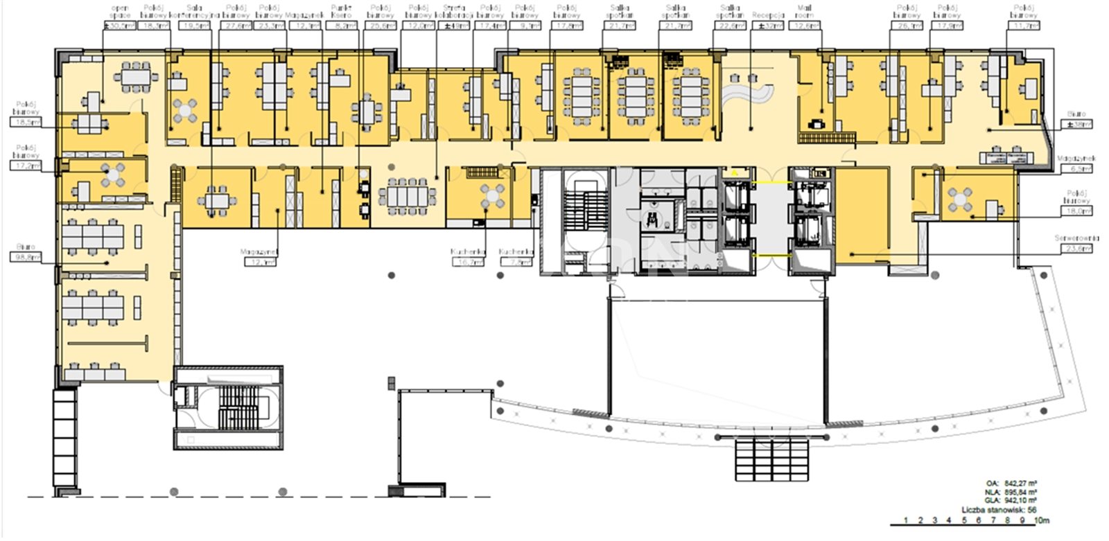
Biuro gotowe do wejścia w układzie gabinetowym.

Powierzchnia biurowa ma układ:

  • przestronna recepcja,
  • szafy na ubrania,
  • sala konferencyjna około 50mkw (dwie rozkładane ściany działowe),
  • pokoje biurowe różnej wielkości,
  • kuchnia,
  • trzy WC (w tym dla osób z niepełnoprawnościami),

Powierzchnia wykończona w dobrym standardzie i dostępna od już.

Dobrze rozwinięta infrastruktura komunikacji miejskiej

Dużo miejsc parkingowych.

Zapraszam do obejrzenia.

Budynek

Nowoczesny biurowiec położony jest w biznesowej części Mokotowa. Oferuje ponad 32 000 m2 powierzchni biurowej, dodatkowo do dyspozycji Najemców przeznaczono 804 miejsca parkingowe w garażu podziemnym.

Dobrze rozwinięta infrastruktura komunikacji publicznej (linie tramwajowe, autobusowe, kolej podmiejska). W pobliżu znajduje się lotnisko Okęcie oraz autostrada A2.

Ogromnym atutem jest lokalizacja i dobrze rozwinięta infrastruktura komunikacji miejskiej. Na przylegających ulicach znajdują się przystanki autobusowe oraz tramwajowe. Ponadto, dla pracowników firm uruchomiony został dedykowany autobus.

Lokalizacja

Lokalizacja nieruchomości na mapie może być przybliżona

Plan

Zapraszamy do kontaktu

Yurii Bukhtii

Specjalista ds. Nieruchomości

Zadzwoń:

Zainteresowała Cię nasza oferta lub szukasz podobnej nieruchomości? Zapraszamy do kontaktu!



Oferty w pobliżu

0%
Biuro na Mokotowie. Dobra komunikacja miejska.
Warszawa, Mokotów , ul. Domaniewska
54 956 zł

61 zł/m2

896 m2

0%
Powierzchnia biurowa na Mokotowie.
Warszawa, Mokotów , ul. Domaniewska
164 847 zł

62 zł/m2

2 675 m2

0%
Pokój biurowy na Mokotowie gotowy do wejścia.
Warszawa, Mokotów , Domaniewska
1 900 zł

50 zł/m2

38 m2

Open-space gotowy do wejścia
Warszawa, Mokotów , ul. Domaniewska
67 574 zł

53 zł/m2

1 278 m2

Duży open-space + sale konferencyjne
Warszawa, Mokotów , ul. Domaniewska
24 058 zł

53 zł/m2

455 m2

1/9