Biuro -m 3 pokoje 75 m2 z recepcją - Służewiec

Warszawa, Mokotów, Cybernetyki

2 914 zł

39 zł/m2

0% PROWIZJI

Powierzchnia biurowa na wynajem

Podstawowe

Powierzchnia
75,00 m2
Piętro
2
Numer oferty
25342/PBW/MAX

Warunki handlowe

Koszty eksploatacyjne m2
29,00
Czynsz m2
38,85 PLN
Min. okres najmu (lata)
1
Parking naziemny - miejsce
330 PLN
Parking podziemny - miejsce
330 PLN

Standard

Klimatyzacja
Wentylacja wymuszona
Otwierane okna
Podwieszane sufity
Podnoszone podłogi
Światłowód
Okablowanie komputer.
Okablowanie elektryczne
Okablowanie telefoniczne

Bezpieczeństwo

Recepcja
Monitoring
Czujniki dymu
Kontrola dostępu
Tryskacze
Alarm
Ochrona

Informacje o budynku

Rok budowy
2006
Pow. biurowa netto
8 900 m2
Pow. typowego piętra
600 m2
Współ. pow. wspól. (%)
10,00 %
Kondygnacje naziemne
5
Kondygnacje podziemne
1
Winda
Dostępne w budynku
kantyna
Współ. miejsc parking.
60,00

Budynek

Rodzaj budynku
Biurowiec

Opis

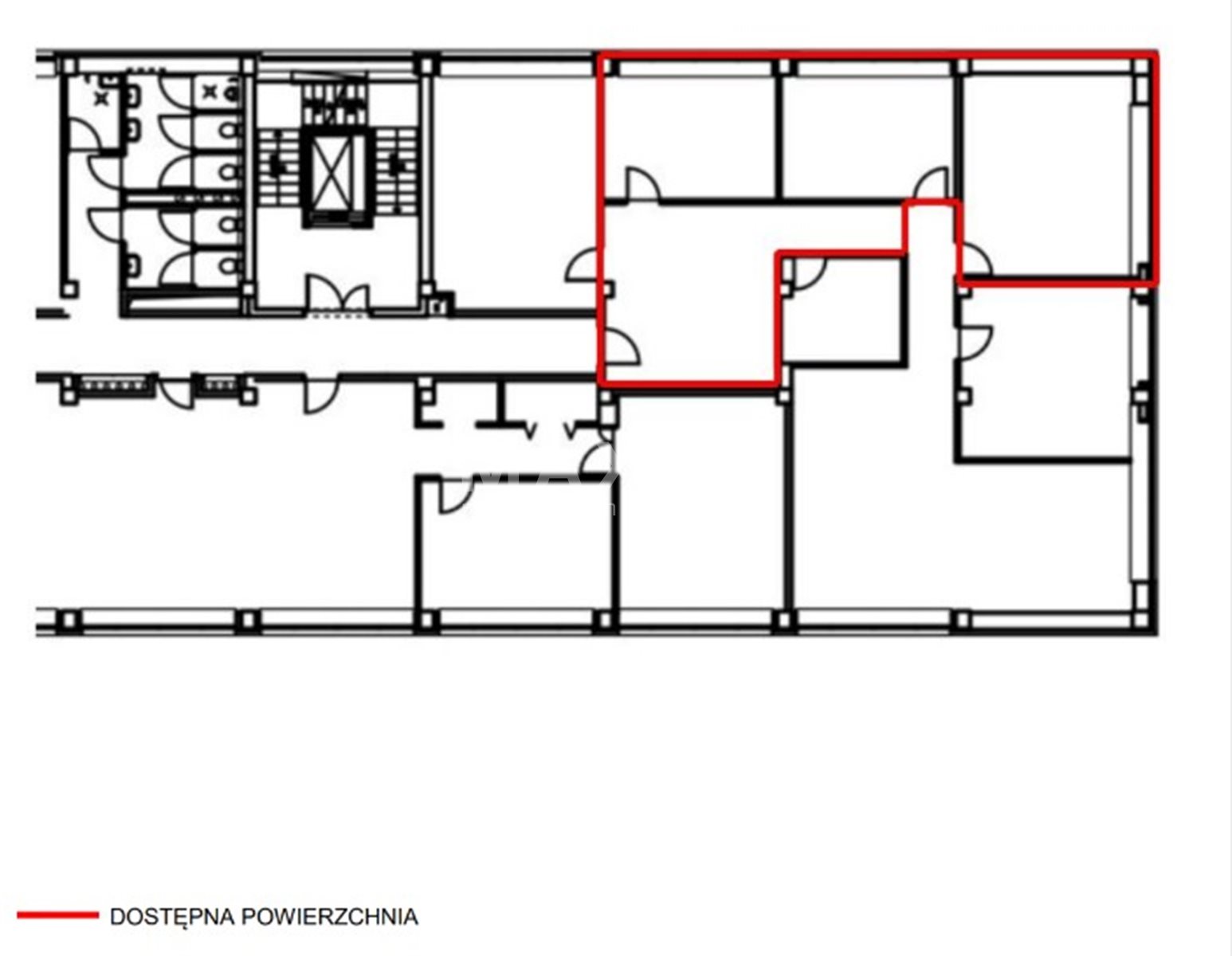
Do wynajęcia powierzchnia biurowa 75 m2 składająca się z 3 pokoi biurowych oraz holu z recepcją.

Toalety oraz kuchnia znajdują się na powierzchni wspólnej.

Biuro zlokalizowane jest na II piętrze biurowca przy ul. Cybernetyki.

Budynek

Budynek biurowy klasy B usytuowany na Mokotowie, tuż przy węźle komunikacyjnym i obwodnicy, około 2 km od lotniska Okęcie i ok. 8 km od centrum Warszawy, w dynamicznie rozwijającym się obszarze biurowo-handlowym. Budynek zmodernizowany po obiekcie magazynowym, o nowoczesnej architekturze i rozwiązaniach technicznych. Powierzchnie biurowe można kształtować dowolnie i funkcjonalnie pod potrzeby najemcy. W pomieszczeniach wykładzina, sufity podwieszane i podnoszone podłogi. Obiekt mieści się w niewielkiej odległości od Galerii Mokotów oraz  różnych punktów usługowych i gastronomicznych. Miejsce w którym znajduje się budynek stanowi bardzo dobry punkt komunikacyjny z dostępem do trasy S79, stacji kolei podmiejskiej oraz linii tramwajowych i autobusowych. 

Lokalizacja

Lokalizacja nieruchomości na mapie może być przybliżona

Zapraszamy do kontaktu

Izabella Gramburg

Doradca ds. nieruchomości komercyjnych

Zadzwoń:

Zainteresowała Cię nasza oferta lub szukasz podobnej nieruchomości? Zapraszamy do kontaktu!



Oferty w pobliżu

0%
biuro na Mokotowie
Warszawa, Mokotów , Cybernetyki
4 688 zł

38 zł/m2

125 m2

0%
4 pokoje biurowe 168 m2 na ul.Cybernetyki
Warszawa, Mokotów , Cybernetyki
6 527 zł

39 zł/m2

168 m2

0%
Pokój biurowy o powierzchni 32 m2 na Służewcu
Warszawa, Mokotów , ul. Cybernetyki
1 200 zł

38 zł/m2

32 m2

0%
Pokój biurowy z salką konferencyjną 43 m2
Warszawa, Mokotów , ul. Cybernetyki
1 613 zł

38 zł/m2

43 m2

0%
Biuro w biurowcu - nieka cena
Warszawa, Mokotów , ul. Cybernetyki
2 914 zł

39 zł/m2

75 m2

1/3