Biuro gabinetowe Metro Wilanowska

Warszawa, Mokotów, Bukowińska

3 564 eur

14 eur/m2

Powierzchnia biurowa na wynajem

Podstawowe

Powierzchnia
264,00 m2
Piętro
10
Numer oferty
25175/PBW/MAX

Warunki handlowe

Koszty eksploatacyjne m2
30,00
Czynsz m2
13,50 EUR
Min. okres najmu (lata)
5
Parking podziemny - miejsce
100 EUR

Standard

Klimatyzacja
Wentylacja wymuszona
Otwierane okna
Podwieszane sufity
Podnoszone podłogi
Światłowód
Okablowanie komputer.
Okablowanie elektryczne
Okablowanie telefoniczne

Bezpieczeństwo

Recepcja
Monitoring
Czujniki dymu
Kontrola dostępu
Tryskacze
Alarm
Ochrona

Informacje o budynku

Rok budowy
2004
Pow. biurowa netto
6 152 m2
Pow. typowego piętra
517 m2
Współ. pow. wspól. (%)
2,00 %
Kondygnacje naziemne
12
Kondygnacje podziemne
2
Winda
Współ. miejsc parking.
95,00

Budynek

Rodzaj budynku
Biurowiec

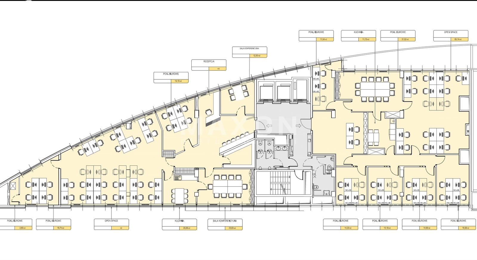
Opis

Gabinetowy moduł biurowy z widokiem.

  • 263,96 m² netto | 269,24 m² brutto
  • biuro dostępne od zaraz

Obecny układ: 

  • pokoje biurowe (4-5)
  • sala spotkań
  • open space ok 65 m²
  • aneks kuchenny
  • pomieszczenie techniczne na serwerownię
  • toalety w częściach wspólnych

Wynajmujący pokrywa koszty odświeżenia biura (malowanie, wykładziny, drobne naprawy)

Oferta cenowa:

  • czynsz: 13,5 € / 1 mkw
  • opłaty eksploatacyjne 30 zł / 1 mkw
  • miejsce parkingowe 100 €  za miejsce podziemne, możliwość wynajęcia 3 miejsc
  • całkowity koszt najmu z miejscami parkingowymi: 24 375 zł (przy 1 € = 4,25 z)

Dodatkowe przy bud. biur. KLIWER 

  • 20 - bezpośrednio przy Budynku, wzdłuż ul. Bukowińskiej [nie objęte strefą płatnego parkowania]
  • 120 - przy sąsiednim markecie FRAC [bezpłatne do 90 minut parkowania]
  • 290 - w garażu wielopoziomowym przy stacji M1 Wilanowska Park&Ride

Budynek

Kameralny budynek biurowy mieszczący się na Mokotowie, tuż przy stacji Metro Wilanowska.  

Powierzchnia typowego piętra wynosi około 550 m2 jest podzielona na 2 moduły każdy ok 220-280m2. Wyposażony jest w klimatyzację, uchylne okna oraz nowoczesne kable światłowodowe i bezpieczeństwa. Wnętrza doskonale doświetlone światłem dziennym, powierzchnie biurowe dobrze dzielą się na gabinety oraz open space. Każdy moduł posiada własną kuchnię. Toalety na powierzchniach wspólnych. W bliskim sąsiedztwie budynku znajdują się sklepy, restauracje, liczne punkty usługowe.

Lokalizacja tuż przy dużym węźle komunikacyjnym - tramwaje, autobusy miejskie i linie podmiejskie. 5 min od biurowca ogólnodostępny parking wielopoziomowy a obok biurowca parking dla klientów - 1,5 godz. parkowania gratis. Do głównego PKP Warszawa Centralna o około 15 minut jazdy samochodem. Do międzynarodowego Portu Lotniczego im. Fryderyka Chopina odległość około 17 minut.

Lokalizacja

Lokalizacja tuż przy dużym węźle komunikacyjnym - tramwaje, autobusy miejskie i linie podmiejskie. Do głównego PKP Warszawa Centralna o około 15 minut jazdy samochodem. Do międzynarodowego Portu Lotniczego im. Fryderyka Chopina odległość około 17 minut.

 

Lokalizacja nieruchomości na mapie może być przybliżona

Zapraszamy do kontaktu

Yurii Bukhtii

Specjalista ds. Nieruchomości

Zadzwoń:

Zainteresowała Cię nasza oferta lub szukasz podobnej nieruchomości? Zapraszamy do kontaktu!



Oferty w pobliżu

Piętro dla jednego najemcy. St. metra Wilanowska.
Warszawa, Mokotów , ul. Bukowińska
30 078 zł

58 zł/m2

523 m2

0%
Biuro przy stacji metra linii M1
Warszawa, Mokotów , Bukowińska
16 890 zł

58 zł/m2

293 m2

0%
Biuro na wysokim piętrze blisko stacji metra.
Warszawa, Mokotów , Bukowińska
14 768 zł

57 zł/m2

258 m2

89 302 zł

83 zł/m2

1 070 m2

Gotowe biuro, budynek tuż przy stacji metra
Warszawa, Mokotów , Puławska
86 547 zł

76 zł/m2

1 134 m2

1/6