70 mkw lokal handlowo-usługowy ul. Obozowa

Warszawa, Wola

7 500 zł

107 zł/m2

Lokal handlowy na wynajem

Podstawowe

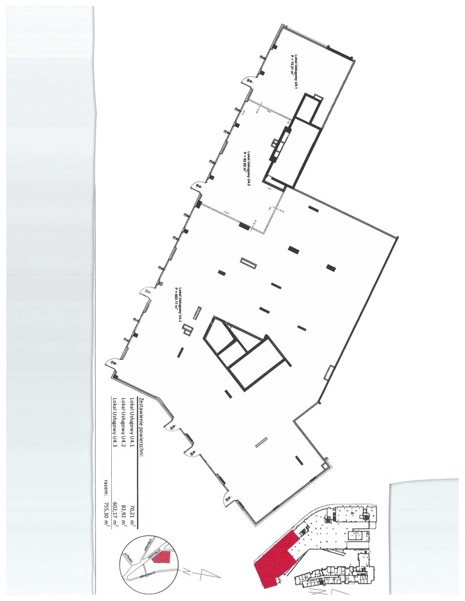
Powierzchnia
70,21 m2
Liczba pomieszczeń
2
Koszty eksploatacyjne m2
9,50
Stan lokalu
Do odświeżenia
Liczba pięter
6
Witryna
Wejście
Z ulicy
Piętro
0
Numer oferty
5185/LHW/MAX
Min. okres najmu (lata)
5

Standard

Klimatyzacja
Wentylacja wymuszona
Otwierane okna
Podwieszane sufity
Podnoszone podłogi
Światłowód

Bezpieczeństwo

Czujniki dymu
Kontrola dostępu
Tryskacze
Alarm

Media i wyposażenie

Ogrzewanie
CO miejskie
Ciepła woda
Wodociąg miejski
Gaz
Siła
Liczba osobnych toalet
1
Wysokość pomieszczeń
350 cm

Miejsca parkingowe

Parking naziemny
1

Budynek

Rok budowy
2019
Rodzaj budynku
Apartamentowiec
Stan budynku
Idealny
Winda

Bezpieczeństwo budynku

Monitoring
Ochrona
Recepcja
Domofon

Czynsz zawiera:

Woda
Ogrzewanie

Opis

Na wynajem atrakcyjny, wykończony lokal usługowy przy ul. Obozowej w Warszawie.
Lokal idealny pod działalność handlową, usługową, biurową lub gastronomiczną typu grab & go.
Gotowy do rozpoczęcia działalności od zaraz lub przystosowania do działalności Najemcy
Standard lokalu:
Lokal wykończony – ścianki działowe, drzwi wewnętrzne, podłogi, sufit podwieszany
Duże, przeszklone witryny od strony ulicy – świetna ekspozycja i widoczność
Wejście bezpośrednio z chodnika przy ul. Obozowej – w sąsiedztwie sklepów spożywczych i usług
Media rozprowadzone: instalacja elektryczna, wodno-kanalizacyjna, klimatyzacyjna, grzewcza
Wysokość lokalu: ponad 3,5 m
Pas żaluzji w obrębie witryn
Całodobowy monitoring budynku
Wakacje czynszowe – do uzgodnienia

 Lokalizacja:
Doskonała komunikacja – w pobliżu przystanki tramwajowe, pętla autobusowa i druga linia metra
Tylko 1 km do obwodnicy Warszawy – dogodny dojazd i transport
W bezpośrednim sąsiedztwie nowoczesne osiedla mieszkaniowe z lokalami usługowymi w parterze
Potencjał ok. 2000 gospodarstw domowych w promieniu kilku minut pieszo


Lokalizacja

Lokalizacja nieruchomości na mapie może być przybliżona

Zapraszamy do kontaktu

Agnieszka Dzięciołowska

Starszy Doradca ds. nieruchomości komercyjnych

Zadzwoń:

Zainteresowała Cię nasza oferta lub szukasz podobnej nieruchomości? Zapraszamy do kontaktu!



Oferty w pobliżu

17 000 zł

63 zł/m2

270 m2

5 pokoi

Lokal handlowo usługowy na Woli
Warszawa, Wola , Al. Solidarności
3 300 zł

80 zł/m2

41 m2

2 pokoje

lokal handlowo - usługowy na Woli
Warszawa, Wola , Al. Solidarności
6 500 zł

79 zł/m2

82 m2

2 pokoje

18 000 zł

100 zł/m2

180 m2

2 pokoje

3 000 zł

56 zł/m2

53 m2

2 pokoje

1/6