Parter, narożny, idealny na gabinet dentystyczny!

Warszawa, Włochy, ul. Szczęsna

7 904 zł

48 zł/m2

TYLKO U NAS 0% PROWIZJI

Lokal handlowy na wynajem

Podstawowe

Powierzchnia
163,00 m2
Liczba pomieszczeń
10
Koszty eksploatacyjne m2
11,00
Stan lokalu
Deweloperski
Liczba pięter
2
Witryna
Wejście
Z ulicy
Piętro
0
Numer oferty
5176/LHW/MAX
Min. okres najmu (lata)
5

Standard

Klimatyzacja
Wentylacja wymuszona
Otwierane okna
Podwieszane sufity
Podnoszone podłogi
Światłowód

Bezpieczeństwo

Czujniki dymu
Kontrola dostępu
Tryskacze
Alarm

Media i wyposażenie

Ogrzewanie
CO miejskie
Ciepła woda
Wodociąg miejski
Gaz
Siła
Liczba osobnych toalet
1
Wysokość pomieszczeń
300 cm

Miejsca parkingowe

Parking naziemny
5

Budynek

Rok budowy
2020
Rodzaj budynku
Apartamentowiec
Stan budynku
Idealny
Winda

Bezpieczeństwo budynku

Monitoring
Ochrona
Recepcja
Domofon

Czynsz zawiera:

Woda
Ogrzewanie

Opis

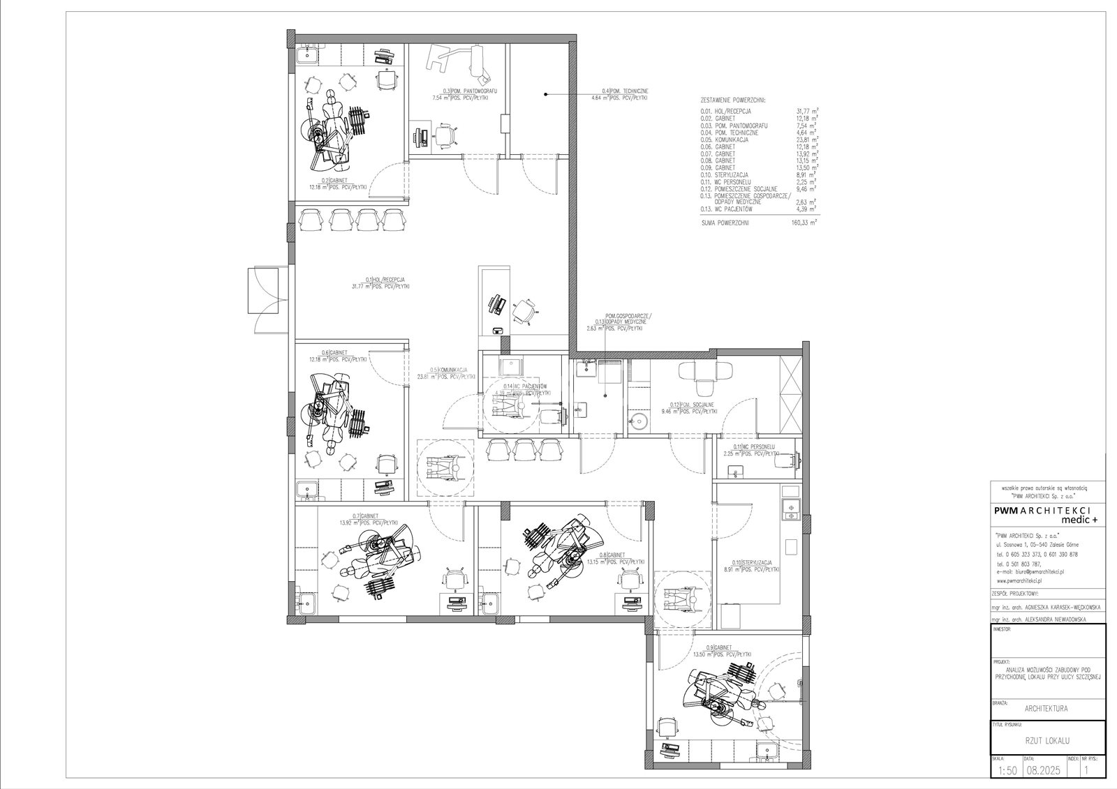
Lokal na wynajem – parter, narożny, idealny na gabinet dentystyczny! Warszawa Włochy.

Na wynajem lokal użytkowy w nowoczesnym budynku mieszkalnym, położony w sercu dynamicznie rozwijającej się dzielnicy Warszawy – Włochy. Narożny lokal na parterze z dużymi witrynami to idealna przestrzeń na gabinet dentystyczny, medyczny, kosmetyczny, jak również inne usługi czy gastronomię.
🦷 Dlaczego ten lokal idealnie sprawdzi się jako gabinet dentystyczny?
Doskonała ekspozycja – narożny lokal z dużymi witrynami zapewnia widoczność i łatwy dostęp dla pacjentów
Niezależne wejście z poziomu ulicy – wygodne i profesjonalne wrażenie
Stan deweloperski – możliwość dowolnej aranżacji wnętrza pod potrzeby gabinetu dentystycznego
Wysokość powyżej 3 m – komfortowa przestrzeń dla specjalistycznych urządzeń i wentylacji
Miejsca parkingowe tuż przy lokalu – wygoda dla pacjentów
Możliwość prowadzenia działalności medycznej – lokal dostosowany do wymagań usług zdrowotnych
🏢 Lokal sprawdzi się również jako:
gabinet lekarski, weterynaryjny
salon kosmetyczny, fryzjerski
biuro, sklep, showroom
piekarnia, kawiarnia, restauracja
klub fitness, studio jogi
📄 Warunki najmu:
Brak prowizji od Najemcy!
Możliwość partycypacji właściciela w kosztach wykończenia
Niski czynsz administracyjny
Umowa najmu bezpośrednio z deweloperem – bezpieczeństwo i elastyczne warunki
📍 Lokalizacja:
900 m do stacji PKP/SKM Warszawa Włochy – szybki dojazd do centrum (15 minut)
W sąsiedztwie: przychodnia NFZ, zabudowa szeregowa, tereny zielone, place zabaw
Otoczenie to nowe osiedla mieszkaniowe – łącznie niemal 800 mieszkań w bezpośrednim sąsiedztwie
📞 Zapraszam do kontaktu telefonicznego w celu umówienia prezentacji lokalu i omówienia szczegółów współpracy.


Lokalizacja

Lokalizacja nieruchomości na mapie może być przybliżona

Zapraszamy do kontaktu

Beata Cieślak

Specjalista ds. Nieruchomości

Zadzwoń:

Zainteresowała Cię nasza oferta lub szukasz podobnej nieruchomości? Zapraszamy do kontaktu!



Oferty w pobliżu

Tylko u nas
0%
Nowoczesny lokal usługowy parter gastronomia
Warszawa, Włochy , ul. Szczęsna
5 217 zł

57 zł/m2

91 m2

1 pokój

Tylko u nas
0%
Lokal na parterze z parkingiem
Warszawa, Włochy , ul. Szczęsna
3 809 zł

71 zł/m2

54 m2

1 pokój

Tylko u nas
0%
Lokal na nowoczesnym osiedlu, parking
Warszawa, Włochy , ul. Szczęsna
3 832 zł

62 zł/m2

62 m2

1 pokój

Tylko u nas
0%
Nowoczesny lokal parter z parkingiem
Warszawa, Włochy , ul. Szczęsna
3 034 zł

71 zł/m2

43 m2

1 pokój

Tylko u nas
0%
Narożny lokall na gastronomię/medycynę parking
Warszawa, Włochy , ul. Szczęsna
4 330 zł

58 zł/m2

75 m2

1 pokój

1/5