Lokal w śródmieściu.

Warszawa, Śródmieście, Muranów, al. Aleja Jana Pawła II

6 500 000 zł

15 869 zł/m2

0% PROWIZJI

Lokal handlowy na sprzedaż

Podstawowe

Powierzchnia
409,60 m2
Liczba pomieszczeń
5
Cena m2
15 869,14 PLN
Rynek Pierwotny
Stan lokalu
Do odświeżenia
Piętro
0
Liczba pięter
28
Witryna
Wejście
Z ulicy
Numer oferty
1714/LHS/MAX

Standard

Klimatyzacja
Wentylacja wymuszona
Otwierane okna
Podwieszane sufity
Podnoszone podłogi
Światłowód

Bezpieczeństwo

Czujniki dymu
Kontrola dostępu
Tryskacze
Alarm

Media i wyposażenie

Ogrzewanie
CO miejskie
Ciepła woda
Wodociąg miejski
Gaz
Siła
Liczba osobnych toalet
2

Miejsca parkingowe

Parking podziemny
2

Budynek

Rok budowy
2000
Rodzaj budynku
Apartamentowiec
Stan budynku
Istniejący
Winda

Bezpieczeństwo budynku

Monitoring
Ochrona
Recepcja
Domofon

Opis

Na sprzedaż wynajęty lokal, położony w dzielnicy Śródmieście w budynku apartamentowym z funkcją biurowo-usługową.
Lokal jest widoczny od ul. Jana Pawła II w kierunku Ronda Radosława.
Wejście do lokalu z chodnika.

Lokal posiada duże witryny na poziomie parteru oraz antresoli.

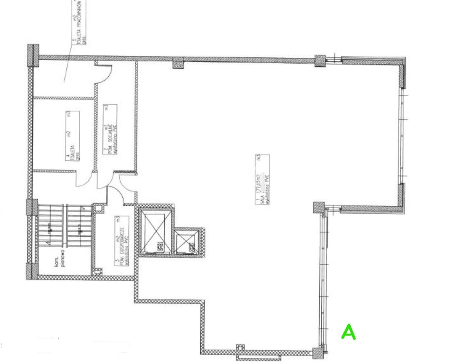
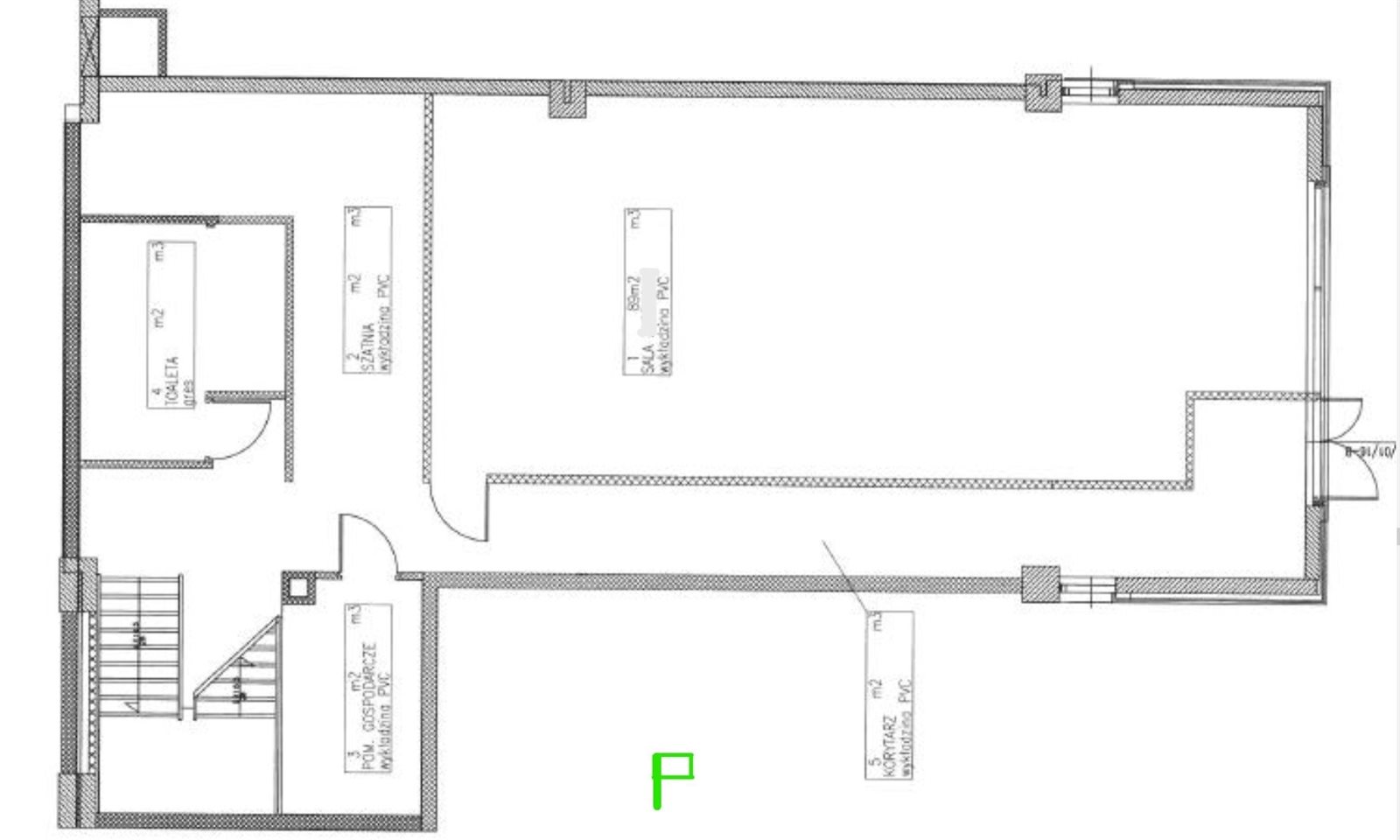
Układ pokoi zgodnie załączonych rzutów do oferty.

Lokal można połączyć z sąsiadującym lokalem, poprzez antresolę, drugi lokal przedstawia lustrzane odbicie.

Zapraszam do obejrzenia lokalu.

Budynek

Babka Tower to jeden z najbardziej charakterystycznych budynków mieszkalno-biurowych w Warszawie, stanowi powszechnie rozpoznawalny punkt orientacyjny tej części miasta. Na jego prestiż złożyła się zarówno jakość projektu architektonicznego pracowni Jems Architekci jak i wysoka jakość materiałów użytych do wykończenia.

Wewnętrzna część obiektu posiada zielone, ciche patio z kaskadą wodną i miejscem do odpoczynku. W budynku funkcjonuje recepcja obsługi Najemców i gości oraz system ochrony i monitoringu. W podziemiu znajduje się czterokondygnacyjny garaż, parter zajmują lokale usługowe i gastronomiczne .

Doskonała pod względem komunikacyjnym lokalizacja pomiędzy Al. Jana Pawła i Rondem Radosława, pobliska stacja metra Dworzec Gdański jak i bezpośrednie sąsiedztwo popularnego centrum handlowego Arkadia odczuwalnie wpływa na komfort jego Najemców. W bliskim sąsiedztwie Stare Miasto i liczne parki.

Lokalizacja

Lokalizacja nieruchomości na mapie może być przybliżona

Zapraszamy do kontaktu

Yurii Bukhtii

Specjalista ds. Nieruchomości

Zadzwoń:

Zainteresowała Cię nasza oferta lub szukasz podobnej nieruchomości? Zapraszamy do kontaktu!



Oferty w pobliżu

0%
Lokal z witrynami od ul. Jana Pawła II.
Warszawa, Śródmieście , al. Aleja Jana Pawła II
8 400 000 zł

20 173 zł/m2

416 m2

5 pokoi

Lokal ścisłe centrum, ul. Złota
Warszawa, Wola , ul. Złota
4 500 000 zł

36 000 zł/m2

125 m2

4 pokoje

LOKAL PRZY JEDNEJ Z GŁÓWNYCH ULIC W ŚRÓDMIEŚCIU!
Warszawa, Śródmieście , Śródmieście
21 000 000 zł

27 021 zł/m2

777 m2

12 pokoi

Lokal z najemcą Metro Księcia Janusza
Warszawa, Wola , ul. Danuty Siedzikówny "Inki"
1 222 752 zł

14 577 zł/m2

84 m2

2 pokoje

Lokal z Najemcą - klinika dentystyczna
Warszawa, Wola , ul. Danuty Siedzikówny "Inki"
3 070 491 zł

13 971 zł/m2

220 m2

1 pokój

1/8